Vila duplex/Constructie noua/Toate utilitatile

299.900 €

Otopeni, Județul Ilfov

Nr. cam.:
5
Sup. utilă:
162 mp
Sup. teren:
270 mp
Tip prop.:
Duplex
  • • Comision 0%
  • • Locație exactă

Descriere casă

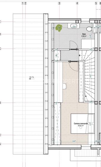
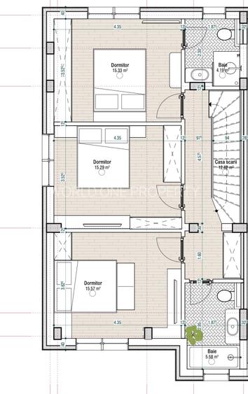
Otopeni-str Mesteacănului, casa tip duplex 162mp utili,teren 270 mp, 5 camere, toate utilitatile. 300000€ (nu se adauga TVA) COMISION 0 Descoperă confortul unei locuințe bine gândite, situată într-o zonă liniștită cu acces facil către DN1,Băneasa și Centura Bucureștiului. Construcția este una nouă si modernă cu finisaje de foarte buna calitate pentru a asigura confortul si economii pe termen lung și aici enumerăm:fațadă ventilată, încălzire pardoseala, tâmplărie tripan Salamander Blue Evolution 7 camere,mansardă thermoizolata, parchet radiant. Suprafata utila este de 162 mp iar suprafata terenului de 270 mp din care 195 mp liberi. Dispusă pe parter, etaj și mansardă are un interior bine compartimentat astfel: Parter-hol de acces, living, bucătărie, grup sanitar și camera tehnică Etaj. -dormitor matrimonial cu dresin și baie două dormitoare deservite de o baie hol Mansardă-camera și baie (regăsiți compartimentările și suprafețele anexate la fotografiile de prezentare). Toate utilitățile-gaz, curent, apă, canalizare. Pentru detalii suplimentare și vizionare vă stăm la dispoziție. Colaborăm cu brokeri de încredere care te pot îndruma către cele mai bune oferte de finanțare disponibile-zero comision
Citește mai mult Citește mai puțin
Nemobilat Grădină Curte Centrală proprie Încălzire prin pardoseală 4 Parcări Renovat

Detalii casă

ID anunț: XD1O0100M Copiat! 275388497 Copiat!
Actualizat în: 01 Aprilie 2026
Tip tranzacție: De vânzare prin agent
Suprafață construită: 88 mp
Suprafață desfășurată: 245 mp
Nr. bucătării: 1
Nr. băi: 4
Nr. terase: 1
Suprafață terase: 20 mp
Nr. fronturi stradale: 1
Front stradal: 9 m
Învelitoare acoperiș: Tabla
An construcție: 2026 (Finalizată)
Structură rezistență: Beton
Regim înălțime: P+1E+M
Modalitate de plată: Cash sau Credit

Utilități

Destinație
Rezidențial
Pereți
Faianță Vinarom Vopsea lavabilă
Podele
Parchet Gresie
Ușă intrare
Metal
Uși interior
Celulare
Izolații termice
Exterior Interior
Ferestre cu geam termopan
PVC
Contorizare
Contor gaz Apometre
Alte spații utile
WC Serviciu
Utilități
Gaze Curent Canalizare Curent trifazic Apă
Internet
Fibră optică
Amenajare străzi
Asfaltate
Comision
0%

Puncte de interes

Mijloace transport
airport
Aeroportul International Henri Coanda (OTP)
Aeroporturi aprox. 1855 m
train-station
Gara Otopeni
Stații tren aprox. 1892 m
airport
Aeroportul Internațional Henri Coandă București (Otopeni)
Aeroporturi aprox. 1945 m
Școală
kindergarten
Gradinita numarul 1
Gradinițe aprox. 1414 m
Recreere
supermarket
Mega Image Otopeni-Tunari
Supermarket aprox. 311 m
sports-ground
Teren sportiv
Terenuri sport aprox. 1544 m
park
La Tarcuri
Parcuri aprox. 1857 m
park
Rond Primaria Otopeni
Parcuri aprox. 1873 m

Detalii despre preț și costuri

Costuri cu achiziția

Fără credit
Credit ipotecar
Noua casă

i

Costuri adiționale mai puțin știute la achiziție: taxe notariale, comisioane etc.

Acces la informații premium după autentificare
Login Gratuit

Proprietăți similare

Duplex cu 4 camere în Nord
272.250 €
Județul Ilfov, Otopeni
4 camere
115 mp
250 mp teren
Duplex cu 4 camere în Nord
272.250 €
Județul Ilfov, Otopeni
4 camere
130 mp
250 mp teren
Duplex cu 5 camere în Nord
314.600 €
Județul Ilfov, Otopeni
5 camere
130 mp
300 mp teren

Detalii de contact

Abonează-te la newsletter să fii primul care primește cele mai noi recomandări de proprietăți și sfaturi de la experți.

CONTACT

Creează alertă

Salvează căutarea ca să primești pe email ultimele anunțuri publicate

Duplexuri cu 4+ camere de vânzare în Otopeni, Județul Ilfov