3

Vila moderna, Popesti-Leordeni, Strada Pavlicheni, acces rapid metrou

247.000 €

Popești-Leordeni, Județul Ilfov

Nr. cam.:
4
Sup. utilă:
199 mp
Sup. teren:
256 mp
Tip prop.:
Duplex
  • • Exclusivitate
  • • Locație aproximativă

Descriere casă

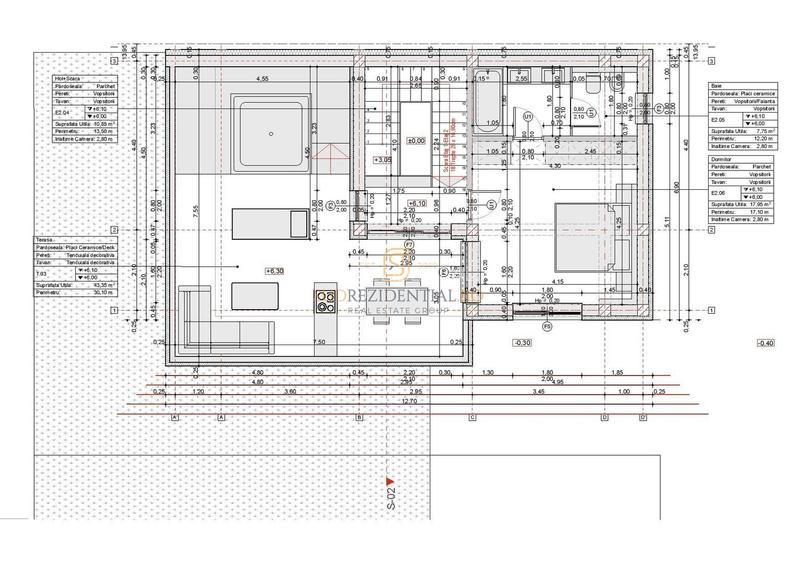
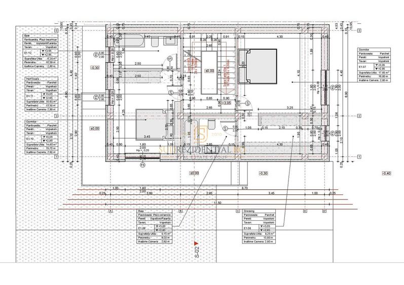
De vanzare: Vila tip duplex, 4 camere, Popesti-Leordeni, Ilfov Oferim spre vanzare o vila tip duplex moderna, amplasata intr-o zona rezidentiala linistita din orasul Popesti-Leordeni, judetul Ilfov. Proprietatea beneficiaza de o locatie strategica, cu acces rapid catre Soseaua Oltenitei si Soseaua Berceni, si este situata in apropierea statiilor de metrou Berceni si Tudor Arghezi. Caracteristici principale: - Suprafata totala utila: 199.10 mp - Regim de inaltime: Parter + 2 Etaje + Terasa - Teren aferent: 256 mp - Curte libera: 200 mp - Numar camere: 4 (3 dormitoare matrimoniale si un living spatios) Proprietatea impresioneaza prin designul sau modern, suprafetele generoase si functionalitatea excelenta, si este ideala pentru familiile care cauta un camin confortabil si bine amplasat. Distributia interioara: - Parter: Living generos: 26.00 mp, cu acces direct la terasa si curtea privata, bucatarie spatioasa: 14.00 mp, baie: 4.17 mp, camara: 4.00 mp, perfecta pentru depozitare. - Etajul 1: Dormitor matrimonial 1: 31.05 mp, dotat cu baie proprie si dressing, dormitor matrimonial 2: 20.80 mp, de asemenea cu baie inclusa, casa scarii: 10.65 mp. - Etajul 2: Dormitor matrimonial 3: 25.70 mp, cu baie proprie, terasa deschisa: 43.85 mp, ideala pentru momente de relaxare, casa scarii: 10.85 mp. Finisaje si dotari premium: - Centrala termica in condensare. - Incalzire prin pardoseala. - Ferestre PVC cu geamuri tripan pentru izolare termica si fonica de top. - Materiale de finisaj de inalta calitate si obiecte sanitare moderne. Aceasta proprietate beneficiaza de o locatie excelenta si se afla la doar 500 de metri de Sos. Oltenitei, pe Strada Pavlicheni, in Orasul Popesti – Leordeni, Ilfov. Zona este usor accesibila datorita infrastructurii moderne, inclusiv pasajul rutier peste DNCB (Soseaua de Centura) si proximitatii fata de autostrada A0, care asigura legaturi rapide catre A1, A2 si A3. De asemenea, statiile de metrou Tudor Arghezi, Berceni, Dimitrie Leonida sau Aparatorii Patriei se afla la doar cateva minute de mers cu masina si ofera o conexiune rapida catre centrul Bucurestiului. Vecinatati si puncte de interes: In imediata apropiere a proprietatii se gasesc multiple facilitati care contribuie la confortul si utilitatea zonei: - Centre comerciale: Mega Image, Penny si Lidl - Institutii de invatamant: scoli, gradinite, after-school-uri si parcuri de agrement - Spatii comerciale si servicii: farmacii, magazine diverse cu specific comercial mixt - Institutii publice: primaria si alte sedii administrative - La strada Mall : centru comercial amplu dedicat cumparatorilor cotidiene - Parcul Copiilor (din Drumul Fermei) sau Parcul Laurentiu Raiciu
Citește mai mult Citește mai puțin
Nemobilat Grădină Curte Aer condiționat Încălzire prin pardoseală 2 Parcări

Detalii casă

ID anunț: XFQP11028 Copiat! 271424064 Copiat!
Actualizat în: 05 Februarie 2026
Suprafață construită: 56 mp
Suprafață desfășurată: 199 mp
Nr. bucătării: 1
Nr. băi: 4
Nr. terase: 2
Suprafață terase: 50 mp
Front stradal: 14.0 m
An construcție: 2025 (Finalizată)
Structură rezistență: BCA
Regim înălțime: P+2E

Utilități

Destinație
Rezidențial
Pereți
Faianță Vopsea lavabilă
Podele
Gresie Parchet
Ușă intrare
Metal
Uși interior
Celulare
Izolații termice
Exterior
Ferestre cu geam termopan
PVC
Contorizare
Apometre Contor gaz
Diverse
Senzor de fum
Utilități
Curent Apă Canalizare CATV Gaze Telefon
Acces internet
Cablu
Amenajare străzi
Iluminat stradal Mijloace de transport în comun Asfaltate

Disponibilitate proprietate:

Imediat

Puncte de interes

Mijloace transport
bus-station
Prestige
Stații autobuz aprox. 826 m
bus-station
Viilor
Stații autobuz aprox. 1150 m
metro-station
Dimitrie Leonida (M2)
Stații metrou aprox. 1434 m
tram-station
ROMPRIM
Stații tramvai aprox. 1527 m
Școală
school
Scoala nr. 2
Școli aprox. 816 m
school
Scoala cu clasele I-VIII nr. 2
Școli aprox. 816 m
school
Scoala nr. 1
Școli aprox. 1312 m
school
Liceul Teoretic Radu Popescu
Școli aprox. 1364 m
Recreere
sports-ground
Teren sportiv
Terenuri sport aprox. 457 m
park
Parc
Parcuri aprox. 522 m
supermarket
Caro Mega Expres
Supermarket aprox. 549 m
restaurant
Parau Rece Restaurant (en)
Restaurant aprox. 656 m

Detalii despre preț și costuri

Costuri cu achiziția

Fără credit
11.379 RON
Credit ipotecar
13.540 RON
Noua casă
1.398 RON+ taxe notariale

i

Costuri adiționale mai puțin știute la achiziție: taxe notariale, comisioane etc.

Proprietăți recomandate

Detalii de contact

SUDREZIDENTIAL.

Cristi Farcas Consilier imobiliar

SUDREZIDENTIAL.
PRO

Abonează-te la newsletter să fii primul care primește cele mai noi recomandări de proprietăți și sfaturi de la experți.

CONTACT

Creează alertă

Salvează căutarea ca să primești pe email ultimele anunțuri publicate

Duplexuri cu 4+ camere de vânzare în Popești-Leordeni, Județul Ilfov