4

Duplex cu 3 camere, pe parter, de vanzare, in Sacalaz

135.000 €

Săcălaz, Județul Timiș

Nr. cam.:
3
Sup. utilă:
80 mp
Sup. teren:
315 mp
Tip prop.:
Duplex
  • • Locație aproximativă
  • • Vizionare prin apel video

Descriere casă

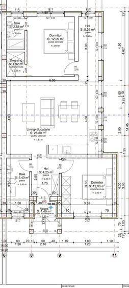
Apostu Estate vă propune spre vânzare un duplex modern și eficient, aflat în dezvoltare într-o zonă liniștită din Sacalaz, la doar 200 m de drumul asfaltat, ideal pentru cei care își doresc liniște, dar și acces rapid către oraș. Finalizare estimată: toamna 2025 Predare la alb, cu buget alocat pentru finisaje, astfel încât să puteți personaliza interiorul după propriul stil și preferințe. Detalii proprietate: • Teren: 315 mp • Suprafață utilă generoasă • Construcție integral din cărămidă, cu perete despărțitor de 30 cm între unități, pentru intimitate sporită • Toate utilitățile sunt deja trase: apă, curent electric, canalizare Parter: • Living spațios cu bucătărie open space, ideal pentru socializare • Dormitor confortabil • Baie de serviciu • Loc de parcare interior, pavat • Acces la pod cu înălțime de 2,6 m, perfect pentru depozitare sau amenajare ulterioară • Dormitor matrimonial • Baie completă Alte beneficii: • Încălzire în pardoseală • Acces facil la oraș, dar cu avantajul unui cadru liniștit și aerisit Va asteptam la vizionare! ID Intern: CP2556098!
Citește mai mult Citește mai puțin

Detalii casă

ID anunț: XBAF1144N Copiat! 274297076 Copiat!
Actualizat în: 25 Martie 2026
Suprafață desfășurată: 96 mp
Nr. bucătării: 1
An construcție: 2025 (La roșu)

Utilități

Utilități
Curent Apă Canalizare CATV Gaze Telefon
Internet
Cablu
Amenajare străzi
Iluminat stradal Mijloace de transport în comun Asfaltate
Comision
standard

Disponibilitate proprietate:

Imediat

Puncte de interes

Mijloace transport
bus-station
Sacalaz
Stații autobuz aprox. 1036 m
Școală
school
Scoala Gimnaziala Sacalaz
Școli aprox. 124 m
Recreere
supermarket
Profi Loco
Supermarket aprox. 246 m
sports-ground
Teren sportiv
Terenuri sport aprox. 800 m
park
Parc
Parcuri aprox. 1278 m
sports-ground
Teren sportiv
Terenuri sport aprox. 1316 m

Detalii despre preț și costuri

Costuri cu achiziția

Fără credit
Credit ipotecar
Noua casă

i

Costuri adiționale mai puțin știute la achiziție: taxe notariale, comisioane etc.

Insight premium disponibil după login

Proprietăți similare

Duplex cu 5 camere în Săcălaz
133.000 € + TVA
Județul Timiș, Săcălaz
5 camere
97,51 mp
300 mp teren
Duplex cu 3 camere în Săcălaz
136.000 €
Județul Timiș, Săcălaz
3 camere
90 mp
250 mp teren
Duplex cu 4 camere în Săcălaz
139.999 €
Județul Timiș, Săcălaz
4 camere
110 mp
330 mp teren

Detalii de contact

APOSTU ESTATE

Michelle Pava Broker

APOSTU ESTATE
PRO

Abonează-te la newsletter să fii primul care primește cele mai noi recomandări de proprietăți și sfaturi de la experți.

Feedback apel

CONTACT

Creează alertă

Salvează căutarea ca să primești pe email ultimele anunțuri publicate

Duplexuri cu 3 camere de vânzare în Săcălaz, Județul Timiș