Detalii RELEVANTE oferta :
- 1/2 duplex in Sacalaz,cu regim de inaltime Parter + Mansarda,Termen de finalizare Mai 2026
- suprafata construita / utila de 135/94mp plus terasa acoperita de 10mp.
- teren de 375 mp, cu front stradal de 10 m.
- detalii constructive : ziduri exterioare si interioare din caramida porotherm /, termoizolata exterior, acoperis de tigla.
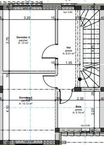
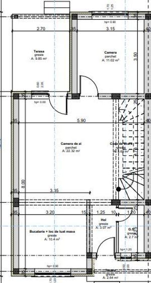
- compartimentare:
- parter : hol acces, bucatarie, loc de luat masa, camera de zi, dormitor/birou, baie, terasa,
-etaj : hol acces, 2 dormitoare, baie;
- detalii AMENAJARE interioara : parchet laminat ,gresie, faianta, ferestre cu tamplarie PVC si geam Tripan,Izolatie Fonica, Usa PVC la intrare, usi interioare noi, vopsea lavabila, corpuri sanitare noi, incalzire pardosea
- CENTRALA termica PROPRIE
Detalii suplimentare : teren imprejmuit, poarta acces auto si poarta acces pietonal,
Terasa este spatioasa,acoperis din tigla
- dispune de toate utilitatile (apa, gaz, fosa septica, curent), drumul de acces fiind pietruit
Detalii pret :
Pretul solicitat de proprietar este de 165.000 Euro la Cheie
Se accepta si varianta de achizitionare prin intermediul unui credit bancar.
Time for Investment a luat nastere din dorinta de a te ajuta sa-ti gasesti locuinta mult dorita si pentru ati fi alaturi pe tot parcursul de achizitie. Suntem o echipa tanara, dinamica dar si eficienta.
Experienta ne permite sa facem lucrurile putin altfel oferind servicii complete, si ne ajuta sa ne regasim in cele sase criterii care ne definesc munca
1.Promptitudine
Stim cat de important este timpul, suntem la dispozitia ta in cel mai scurt timp.
2.Atentia la detalii
-Suntem atenti la criteriile clientului si le comparam cu piata actuala
3.Eficienta
-Vizionam doar proprietatiile pliabile clientului
4.Baza de date Completa
-Informam constant clientul in legatura cu ofertele din baza de date proprie si actualizata
5.Profesionalism
- Oferim consultanta juridica, financiar bancara si va punem la dispozitie toate elementele tehnice
6.Suntem alaturi pana la final
-Va impunem la primarie cat si la utilitati (gaz,curent)
If youre planing to Invest,
Call us…
And we’ll do the rest !!!
Distanta pana la intrare in Timisoara 4 Km
Localitatea este pentru prima dată atestată documentar într-o diplomă din 29 decembrie 1392, care delimita hotarul satului Zakalhaza, denumire pe care a păstrat-o până în anul 1520
În 1765 sosește aici primul val de colonizatori germani svabi, din ordinul Mariei Tereza. Aceasta a emis "Patenta de colonizare" din 25 februarie 1763 și mai apoi Decretul pe care l-a înaintat la "Oficiul de Colonizare bănățean.
In ultimii ani ca fiecare localitate periurbana populatia este in ascensiune mai accentuat in ultimul an. Avand toate utilitatiile si fiind la doar 3 km de Timisoara localitatea este foarte atractiva.
Astazi comuna se dezvolta local , dar cu un potential urias. Fiind vorba de constructii locale puteti alege dintr-o gama de cladiri diversificata.
Citește mai mult
Citește mai puțin
Nemobilat
Grădină
Curte
Centrală proprie
Încălzire prin pardoseală
3 Parcări
Sediul central - Timișoara
Bulevardul Victor Babeș nr. 2, 300230, Timișoara, România
Tel: +40.374.40.44.98 / Fax: +40.256.401.179
Email: suport@imobiliare.ro
Luni - Vineri 08:00 - 20:00
Punct de lucru - București: Iride Business Park, Bld. Dimitrie
Pompeiu 9-9A, Clădirea B2B,
020335, Sector 2, București, România
CONTACT
Sediul central - Timișoara
Bulevardul Victor Babeș nr. 2, 300230, Timișoara, România
Tel: +40.374.40.44.98 / Fax: +40.256.401.179
Email: suport@imobiliare.ro
Luni - Vineri 08:00 - 20:00
Punct de lucru - București: Iride Business Park, Bld. Dimitrie
Pompeiu 9-9A, Clădirea B2B,
020335, Sector 2, București, România
Sună acum și cere detalii sau programează o vizionare.
Cere detalii prin email
*
*
*
*
Înainte să pleci...
Ești sigur că ai văzut și aceste proprietăți?
155.000 €
Județul Timiș, Săcălaz
4 camere
110 mp
350 mp teren
179.000 €
Județul Timiș, Săcălaz
4 camere
108 mp
375 mp teren
165.000 €
Județul Timiș, Săcălaz
4 camere
110 mp
300 mp teren
150.000 €
Județul Timiș, Săcălaz
4 camere
110 mp
300 mp teren
175.000 €
Județul Timiș, Săcălaz
4 camere
86 mp
330 mp teren
149.900 €
Județul Timiș, Săcălaz
4 camere
119 mp
247 mp teren
Creează alertă
Salvează căutarea ca să primești pe email ultimele anunțuri publicate
Duplexuri cu 4+ camere de vânzare în Săcălaz, Județul Timiș
Cere detalii prin email
*
*
*
*
Detaliile tale de contact vor fi partajate cu Time For Investment
Preț total849.423 RON (166.681 €)
Costuri cu achiziția8.567 RON
Preț de achiziție840.856 RON
Costuri cu achiziția8.567 RON
Comision agenție Întreabă agenţia
Onorariu notarial7.306 RON
Taxă înscriere OCPI1.261 RON
Preț de achiziție840.856 RON
Preț locuință840.856 RON
TVA 0%Inclus în prețul cerut
Cost total139.131 RON (27.301 €)
Avans (15%)126.128 RON
Cost achitat în prima lună2.623 RON
Costuri cu achiziția10.380 RON
Cost achitat în prima lună2.623 RON
Comision analiză dosar
400 RON - 900 RON
Taxă evaluare imobil(până la)
900 RON
Rata lunară (variabilă)3.746 RON
Asigurare anuală imobil841 RON
Arhivă electronică102 RON
Poliță PAD130 RON
Asigurare de viață/lună Costul este variabil. În funcție de banca aleasă, procentul variază între 0.0259% și 0.035% din soldul creditului.
Costuri cu achiziția10.380 RON
Comision agenție Întreabă agenţia
Onorariu notarial7.306 RON
Taxă întabulare OCPI1.261 RON
Autentificare contract credit1.813 RON
Preț de achiziție840.856 RON
Preț locuință840.856 RON
TVA 0%Inclus în prețul cerut
Preț de achiziție840.856 RON
Preț locuință840.856 RON
TVA 0%
Inclus în prețul cerut
Avans minim234.421 RON
Credit pe 30 de ani606.436 RON
Cost achitat în prima lună
Taxa evaluare imobil(până la)
900 RON
Rata lunară (variabilă)4.261 RON
Depozit colateral12.783 RON
Comision de garantare FNGCIMM70 RON
Asigurare anuală imobil841 RON
Poliță PAD130 RON
Tarif arhivă electronică102 RON
Costuri adiționale981 RON + taxe notariale
Asigurare viață și complexă (opțională)Costul este variabil. În funcție de banca aleasă, procentul variază între 0.0259% și 0.035% din soldul creditului
Onorariu notarialconform tarif notarial
Taxă întabulare OCPI981 RON
i
Toate valorile de mai sus sunt estimative și nu reprezintă în mod obligatoriu costurile exacte pe care le veți primi de la companiile/instituțiile prin care veți încheia tranzacția.