Detalii RELEVANTE oferta
Proprietatea se vinde la ALB ( fara gresie,faianță,parchet și corpuri sanitare în bai)
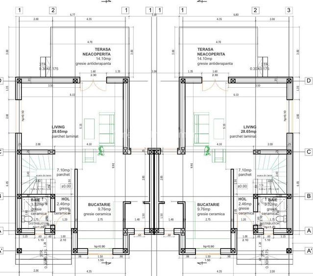
- Duplex cu perete dublu in Sanandrei ,cu regim de inaltime P + 1, finalizata in Decembrie 2025
- suprafata construita / utila de 135/105mp plus terasa de 15mp.
- teren de 350 mp, cu front stradal de 10m.
- detalii constructive : ziduri exterioare si interioare din caramida porotherm, termoizolata exterior, acoperis tip Terasa
- compartimentare:
parter : hol acces, bucatarie, loc de luat masa, camera de zi, baie, terasa,
Etaj :3 camere, baie,.balcon
- detalii AMENAJARE interioara : ferestre cu tamplarie PVC si geam Tripan, usa PVC la intrare, usi interioare noi, vopsea lavabila, incalzire Pardosea jos iar la etaj calorifere
- CENTRALA termica PROPRIE
Detalii suplimentare : teren imprejmuit, poarta acces auto si poarta acces pietonal,
- dispune de toate utilitatile (apa, gaz, canalizare, curent), drumul de acces fiind asfaltat cablu tv, internet fibra
Detalii pret :
Pretul solicitat de proprietar este de 135.000Eur, negociabil LA Alb ( fara gresie faianță,parchet și corpuri sanitare în bai)
Se accepta si varianta de achizitionare prin intermediul unui credit bancar.
Time for Investment a luat nastere din dorinta de a te ajuta sa-ti gasesti locuinta mult dorita si pentru ati fi alaturi pe tot parcursul de achizitie. Suntem o echipa tanara, dinamica dar si eficienta.
Experienta ne permite sa facem lucrurile putin altfel oferind servicii complete, si ne ajuta sa ne regasim in cele sase criterii care ne definesc munca
1.Promptitudine
Stim cat de important este timpul, suntem la dispozitia ta in cel mai scurt timp.
2.Atentia la detalii
-Suntem atenti la criteriile clientului si le comparam cu piata actuala
3.Eficienta
-Vizionam doar proprietatiile pliabile clientului
4.Baza de date Completa
-Informam constant clientul in legatura cu ofertele din baza de date proprie si actualizata
5.Profesionalism
- Oferim consultanta juridica, financiar bancara si va punem la dispozitie toate elementele tehnice
6.Suntem alaturi pana la final
-Va impunem la primarie cat si la utilitati (gaz,curent)
If youre planing to Invest,
Call us…
And we’ll do the rest !!!
Vecina in partea de N cu Dumbravita , partea de est cu Timisoara fiind una din cele mai vechi asezari din Banat, comuna se afla la 8 km de intrarea in oras , in partea de N-V fiind aliatul cetatii Timisoara inca de la inceput.
In ultimii ani ca fiecare localitate periurbana populatia este in ascensiune mai accentuat in ultimul an. Utilitatiile nu au intraziat sa apara iar comuna se mandreste cu toate utilitatiile mai putin canalizarea care este montata in o parte mare din sat urmand si racordarea.
Complex sportiv, restaurante, cabinete medicale , veterinare si accesul relativ rapid in oras sunt plusurile cu care se mandreste comuna momentan.
Citește mai mult
Citește mai puțin
Nemobilat
Centrală proprie
Încălzire prin pardoseală
3 Parcări
Zonă rurală
Sediul central - Timișoara
Bulevardul Victor Babeș nr. 2, 300230, Timișoara, România
Tel: +40.374.40.44.98 / Fax: +40.256.401.179
Email: suport@imobiliare.ro
Luni - Vineri 08:00 - 20:00
Punct de lucru - București: Iride Business Park, Bld. Dimitrie
Pompeiu 9-9A, Clădirea B2B,
020335, Sector 2, București, România
CONTACT
Sediul central - Timișoara
Bulevardul Victor Babeș nr. 2, 300230, Timișoara, România
Tel: +40.374.40.44.98 / Fax: +40.256.401.179
Email: suport@imobiliare.ro
Luni - Vineri 08:00 - 20:00
Punct de lucru - București: Iride Business Park, Bld. Dimitrie
Pompeiu 9-9A, Clădirea B2B,
020335, Sector 2, București, România
Sună acum și cere detalii sau programează o vizionare.
Cere detalii prin email
*
*
*
*
Înainte să pleci...
Ești sigur că ai văzut și aceste proprietăți?
142.000 €
Județul Timiș, Sânandrei
4 camere
97,08 mp
250 mp teren
144.990 €
Județul Timiș, Sânandrei
4 camere
90 mp
340 mp teren
134.999 €
Județul Timiș, Sânandrei
4 camere
110 mp
350 mp teren
154.990 €
Județul Timiș, Sânandrei
4 camere
105 mp
375 mp teren
135.000 €
Județul Timiș, Sânandrei
4 camere
95 mp
260 mp teren
150.000 €
Județul Timiș, Sânandrei
4 camere
110 mp
250 mp teren
Creează alertă
Salvează căutarea ca să primești pe email ultimele anunțuri publicate
Duplexuri cu 4+ camere de vânzare în Sânandrei, Județul Timiș
Cere detalii prin email
*
*
*
*
Detaliile tale de contact vor fi partajate cu Time For Investment
Preț total695.184 RON (136.479 €)
Costuri cu achiziția7.535 RON
Preț de achiziție687.649 RON
Costuri cu achiziția7.535 RON
Comision agenție Întreabă agenţia
Onorariu notarial6.504 RON
Taxă înscriere OCPI1.031 RON
Preț de achiziție687.649 RON
Preț locuință687.649 RON
TVA 0%Inclus în prețul cerut
Cost total114.837 RON (22.544 €)
Avans (15%)103.147 RON
Cost achitat în prima lună2.470 RON
Costuri cu achiziția9.220 RON
Cost achitat în prima lună2.470 RON
Comision analiză dosar
400 RON - 900 RON
Taxă evaluare imobil(până la)
900 RON
Rata lunară (variabilă)3.063 RON
Asigurare anuală imobil688 RON
Arhivă electronică102 RON
Poliță PAD130 RON
Asigurare de viață/lună Costul este variabil. În funcție de banca aleasă, procentul variază între 0.0259% și 0.035% din soldul creditului.
Costuri cu achiziția9.220 RON
Comision agenție Întreabă agenţia
Onorariu notarial6.504 RON
Taxă întabulare OCPI1.031 RON
Autentificare contract credit1.685 RON
Preț de achiziție687.649 RON
Preț locuință687.649 RON
TVA 0%Inclus în prețul cerut
Preț de achiziție687.649 RON
Preț locuință687.649 RON
TVA 0%
Inclus în prețul cerut
Avans minim81.499 RON
Credit pe 30 de ani606.150 RON
Cost achitat în prima lună
Taxa evaluare imobil(până la)
900 RON
Rata lunară (variabilă)4.259 RON
Depozit colateral12.777 RON
Comision de garantare FNGCIMM57 RON
Asigurare anuală imobil688 RON
Poliță PAD130 RON
Tarif arhivă electronică102 RON
Costuri adiționale828 RON + taxe notariale
Asigurare viață și complexă (opțională)Costul este variabil. În funcție de banca aleasă, procentul variază între 0.0259% și 0.035% din soldul creditului
Onorariu notarialconform tarif notarial
Taxă întabulare OCPI828 RON
i
Toate valorile de mai sus sunt estimative și nu reprezintă în mod obligatoriu costurile exacte pe care le veți primi de la companiile/instituțiile prin care veți încheia tranzacția.