2

Oportunitate! Duplex 129 mp, teren 240 mp, la 10km de Cluj / TVA INCLUS

176.000 €

Sânnicoară, Județul Cluj

Nr. cam.:
4
Sup. utilă:
129 mp
Sup. teren:
240 mp
Tip prop.:
Duplex
  • • Locație aproximativă

Descriere casă

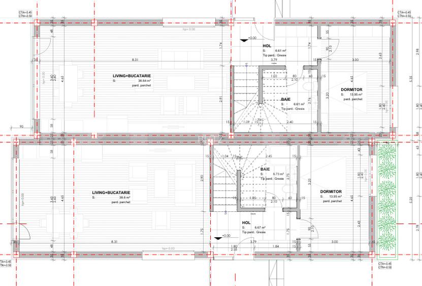
Descriere anunț: Blitz propune spre vânzare un duplex modern, cu suprafața utilă de 129 mp, amplasat pe un teren de 240 mp, situat la o distanță de 10km de Cluj; Proprietatea este inteligent compartimentată astfel: Parter: living cu bucătărie open-space de 38 mp, dormitor, baie și hol. Etaj: dormitor matrimonial cu baie proprie, dressing și terasă, al doilea dormitor cu baie proprie și hol. Casa se predă la stadiul de semifinisat avansat , cu următoarele lucrări realizate: pereții gletuiți și vopsiți cu lavabil, izolație exterioară cu vată bazaltică de 10 cm și tencuială decorativă Sto, tâmplărie PVC cu geam tripan Veka și glafuri din granit, acoperiș izolat cu celuloză de 20 cm. O proprietate ideală pentru cei care caută confort, spațiu și un cadru rezidențial de calitate, aproape de oraș, dar ferit de aglomerație. Pentru mai multe detalii și programarea unei vizionări, nu ezitați să ne contactați! Proiect finalizat pana in mai 2026 Cod ofertă / ID BLITZ: P155270
Citește mai mult Citește mai puțin
Nemobilat Încălzire prin pardoseală 2 Parcări Bine întreținut (Bună)

Detalii casă

ID anunț: XFTI1141I Copiat! 270958904 Copiat!
Actualizat în: 21 Mai 2026
Tip tranzacție: De vânzare prin agent
Nr. bucătării: 1
Nr. băi: 3
Nr. balcoane / Terase / Logii: 3
An construcție: 2025 (La gri)
Structură rezistență: Cărămidă
Regim înălțime: P+1E
Modalitate de plată: Cash sau Credit

Utilități

Utilități
Curent Apă Canalizare Gaze
Comision
2.5%

Istoricul prețurilor

Acces la informații premium după autentificare
Login Gratuit

Detalii despre preț și costuri

Costuri cu achiziția

Fără credit
Credit ipotecar
Noua casă

i

Costuri adiționale mai puțin știute la achiziție: taxe notariale, comisioane etc.

Acces la informații premium după autentificare
Login Gratuit

Proprietăți similare

Duplex cu 4 camere în Florești
180.000 €
Județul Cluj, Florești
4 camere
130 mp
275 mp teren
Duplex cu 4 camere în Chinteni
190.000 €
Județul Cluj, Chinteni
4 camere
120 mp
400 mp teren
Duplex cu 4 camere în Tureni
182.000 €
Județul Cluj, Tureni
4 camere
120 mp
340 mp teren

Detalii de contact

BLITZ

BLITZ ROMANIA

4.64(113 review-uri)

BLITZ
PRO

Abonează-te la newsletter să fii primul care primește cele mai noi recomandări de proprietăți și sfaturi de la experți.

CONTACT

Creează alertă

Salvează căutarea ca să primești pe email ultimele anunțuri publicate

Duplexuri cu 4+ camere de vânzare în Sânnicoară, Județul Cluj