Sunteti in căutarea unei clădiri multifuncționale de 725 mp (amprenta la sol 185 mp) cu teren de 520 mp, situată în zona exclusivistă de nord a capitalei Baneasa-Sisesti, cu vedere la lacul Grivita și cu un preț fără concurență?
DACĂ DA, AȚI GĂSIT-O!
Această clădire spațioasă poate fi o rezidentă luxoasă pentru minimum doua familii, un office spațios, o grădiniță, un after school, orice doriți dvs să fie.
De ce? Pentru ca are un număr mare de camere (12) si de grupuri sanitare (10), are open space la demisol și etajul doi mansardat. Suprafața construită desfășurată este super generoasă, de 725 mp dispuși pe patru niveluri cu două intrări separate. De aceea este relativ ușor de amenajat pentru specificul dorit de dv, deoarece există deja structura necesară.
Vila este compusă din două duplexuri în oglindă, cu intrări separate și nivel de înălțime D+P+1E+2E mansardat.
Cele două duplexuri care alcătuiesc aceast spațiu locativ pot funcționa independent deoarece au intrări separate dar și ca un tot unitar deoarece pot comunica la nivelul parterului și al mansardei.
Vila face parte dintr -un complex de trei vile situat pe malul lacului Grivita (în planul doi, cu vedere la lac dar fără ieșire directă), cu intrare prin porți automatizate si cu o deschidere la strada principală de 25 ml. Terenul liber din curtea privată în suprafață de 335 mp este folosit pe părțile laterale ale vilei pentru șase parcări iar partea frontală pentru spațiu verde și recreativ. Ca flux se poate intra cu masina pe poarta unei case si iesi pe poarta celeilalte
Stradă pe care se află proprietatea are imobile de înălțime mică, construite recent, cu arhitectură modernă și spații verzi deosebite, inclusiv complexul Nordis care are gard comun cu această vilă. Stradă racordată la canalizare cu contracte legale la ApaNova.
Clădirea compusă din două duplexuri cu amprentă la sol de 92 și respectiv 93 mp este construită pe un teren privat de 520 mp și ieșire la drum de 25 ml.
Duplexul C1 are amprenta la sol de 93 mp, suprafata utila 268,9 mp și suprafata construită desfășurată 365 mp.
Duplexul C2 are amprenta la sol de 92 mp, suprafata utila 269,5 mp și suprafata construită desfășurată 360 mp.
Concluzie: suprafata utila 528,4 mp, suprafață utilă totală 586,9 mp, suprafață construită desfășurată 725 mp, teren curte interioară privata 520 mp.
Atasez planurile cadastrale recente care va oferă în detaliu dimensiunile suprafețelor utile și utile totale precum și planurile pe arhitectură cu detaliile suprafețelor construite desfășurate.
Proprietatea are 12 camere (plus demisolul și etajul doi mansardat care este open space), 10 bai, (cate 5 in fiecare duplex), două camere tehnice, două camere de refugiu (una la fiecare demisol, proiectul a fost făcut de o firmă din Israel) și numeroase spații de depozitare.
În fiecare duplex se află aparate de aer condiționat pe poziție.
Fiecare duplex are branșament individual la curent și gaze, avand propriul contor pentru fiecare utilitate. Bransamentul la apa este comun.
Vila beneficiază de un sistem interior de alarmă la incendii care poate fi actualizat dacă doriți.
Proprietatea are acces facil la mijloacele de transport și noul supermarket Kaufland se află la cinci minute de mers pe jos.
Cele două duplexuri se vând numai împreună chiar dacă au acte de proprietate individuale.
Din punct de vedere juridic proprietatea este intabulata, are Carte Funciară de Informare și Act de Vanzare-Cumparare conform legislației.
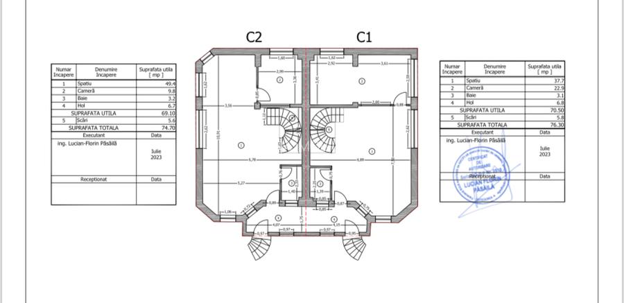
Va rog regasiti mai jos detalii despre compartimentare si suprafetele camerelor.
Demisol C1=suprafata utila: 69 mp,
Suprafata utila totala: 72.10 mp,
Demisol C2=suprafata utila: 73.4 mp,
Suprafata utila totala: 76.3 mp,
Parter C1=suprafata utila: 70.5 mp,
Suprafata utila totala: 76. 30 mp,
Compartimentarea parterului este urmatoarea:
Camera: 37.7 mp
Camera: 22.9 mp
Baie: 3.1 mp
Hol: 6.8 mp
Parter C2=suprafata utila: 69.10 mp,
Suprafata utila totala: 74.7 mp,
Compartimentarea parterului este urmatoarea:
Camera: 49.4 mp
Camera: 9.8 mp
Baie: 3.2 mp
Hol: 6.7 mp
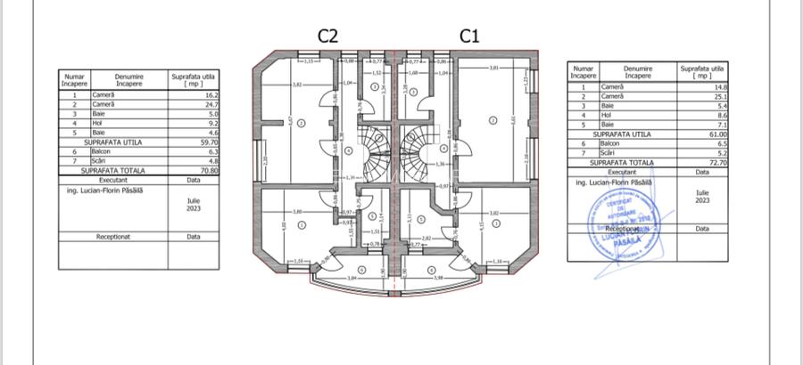
Etaj C1=suprafata utila: 61 mp,
Suprafata utila totala: 72. 70 mp,
Compartimentarea etajului 1 este urmatoarea:
Camera: 14.8 mp
Camera: 25.1 mp
Baie: 5.4 mp
Baie: 7.1 mp
Hol: 8.6 mp
Balcon: 6.8 mp
Etaj C2=suprafata utila: 59.7 mp,
Suprafata utila totala: 70.8 mp,
Compartimentarea etajului 1 este urmatoarea:
Camera: 24.7 mp
Camera: 16.2 mp
Baie: 5 mp
Baie: 4.6 mp
Hol: 9.2 mp
Balcon: 6.3 mp
Etaj 2 (mansardat) C1=suprafata utila: 68.4 mp,
Suprafata utila totala: 73. 2 mp,
Compartimentarea este urmatoarea:
Camera: 62.3 mp
Camera: 6.1 mp
Etaj 2 (mansardat) C2=suprafata utila: 67.3 mp,
Suprafata utila totala: 72.1 mp,
Compartimentarea este urmatoarea:
Camera: 61.5 mp
Camera: 6.8 mp
Sediul central - Timișoara
Bulevardul Victor Babeș nr. 2, 300230, Timișoara, România
Tel: +40.374.40.44.98 / Fax: +40.256.401.179
Email: suport@imobiliare.ro
Luni - Vineri 08:00 - 20:00
Punct de lucru - București: Iride Business Park, Bld. Dimitrie
Pompeiu 9-9A, Clădirea B2B,
020335, Sector 2, București, România
CONTACT
Sediul central - Timișoara
Bulevardul Victor Babeș nr. 2, 300230, Timișoara, România
Tel: +40.374.40.44.98 / Fax: +40.256.401.179
Email: suport@imobiliare.ro
Luni - Vineri 08:00 - 20:00
Punct de lucru - București: Iride Business Park, Bld. Dimitrie
Pompeiu 9-9A, Clădirea B2B,
020335, Sector 2, București, România
Sună acum și cere detalii sau programează o vizionare.
Nu rata ocazia să afli mai multe!
Sună acum și cere detalii sau programează o vizionare.
Cere detalii prin email
*
*
*
*
Stații autobuz
Stații tramvai
Universități
Școli
Gradinițe
Supermarket
Parcări
Terenuri sport
Parcuri
Spital
Farmacie
Restaurant
Bar
Cafenea
Bancă
Statia Bulevardul Apicultorilor linii : 205,261
aprox.
250 m
Statia Oaspetilor, linia 261
aprox.
346 m
Statia Darmanesti, linia 205
aprox.
505 m
Statia Atlasului, linia 261
aprox.
620 m
Statie Coralilor 148, 149, 112
aprox.
754 m
Statia Drumul Regimentului linii : 205
aprox.
783 m
Statia Jandarmeriei, linia 261
aprox.
983 m
Statie Nuferilor 148, 149, 112
aprox.
1098 m
Nuferilor
aprox.
1117 m
Brodina statie 205, 148, 149, 261, 112
aprox.
1144 m
Statia Grigore Alexandru Ghica, linia 261
aprox.
1254 m
Statia Piscul Radului, linia 205
aprox.
1293 m
Statie Foradex 148, 149, 112
aprox.
1351 m
Autogara Baneasa
aprox.
1469 m
Statia G-ral Ion Bunoaica, linia 261
aprox.
1488 m
Cartier Damaroaia
aprox.
1511 m
Statie Cartier Damaroaia Tv24
aprox.
1512 m
Statie RATB 5
aprox.
1682 m
Aeroport Baneasa
aprox.
1701 m
Aeroport Baneasa
aprox.
1748 m
Statie RATB 5
aprox.
1816 m
Universitatea Biotera
aprox.
139 m
Universitatea Bioterra
aprox.
139 m
Bioterra (en)
aprox.
400 m
Școala Superioară de Aviație Civilă - S.S.Av.C.
aprox.
1801 m
Universitatea Biotera
aprox.
381 m
International School for Primary Education
aprox.
480 m
International School for Primary Education, Bucharest (en)
aprox.
489 m
Scoala Generala Nr. 8
aprox.
501 m
Scoala Genesis
aprox.
627 m
Gradinita de stat nr. 115 (en)
aprox.
923 m
Scoala Nr. 6
aprox.
1254 m
Scoala Generala nr. 6
aprox.
1254 m
Scoala Generala nr 6
aprox.
1254 m
Scoala Gimnaziala Nicolae Grigorescu Nr. 177
aprox.
1410 m
Scoala Nr. 177 Nicolae Grigorescu
aprox.
1430 m
Scoala Speciala Nr. 8
aprox.
1516 m
Scoala Speciala Sfantu Gavril Nr. 8
aprox.
1519 m
Școală specială pentru persoane (tineri) cu handicap psihic
aprox.
1546 m
Colegiul Tehnic "Media"
aprox.
1606 m
Gradinita
aprox.
1813 m
Gradinita nr. 121
aprox.
1825 m
Gradinita de copii nr.122
aprox.
1830 m
Gradinita Rosemary
aprox.
1928 m
SELGROS Baneasa
aprox.
1458 m
Crystal System S.R.L.
aprox.
1692 m
Mega Image Baneasa
aprox.
1707 m
Gulliver
aprox.
1744 m
Auto Boca
aprox.
1848 m
Parcare
aprox.
437 m
Parcare
aprox.
986 m
Parcare
aprox.
1096 m
Parcare
aprox.
1491 m
Parcare
aprox.
1597 m
Parcare
aprox.
1628 m
Parcare
aprox.
1640 m
Parcare
aprox.
1715 m
Parcare
aprox.
1756 m
Parcare
aprox.
1772 m
Parcare
aprox.
1781 m
Parcare
aprox.
1827 m
Parcare
aprox.
1834 m
Parcare
aprox.
1835 m
Parcare
aprox.
1918 m
Teren sportiv
aprox.
1056 m
Teren sportiv
aprox.
1181 m
Teren sportiv
aprox.
1496 m
Teren sportiv
aprox.
1755 m
Teren sportiv
aprox.
1782 m
Biruinta
aprox.
1818 m
Teren sportiv
aprox.
1874 m
Teren sportiv
aprox.
1882 m
Loc de joaca
aprox.
1259 m
Parc
aprox.
1387 m
Parc
aprox.
1404 m
Loc de Joaca
aprox.
1459 m
Parc
aprox.
1859 m
Parc
aprox.
1859 m
Maternitatea Regina Maria
aprox.
1136 m
Spitalul "Regina Maria" - Baneasa
aprox.
1155 m
Centrul Medical Unirea - CMU Baneasa
aprox.
1162 m
Centrul de Dializa Fresenius Bucuresti
aprox.
1798 m
Centrul de Dializa dr.Carol Davila
aprox.
1807 m
Dispensarul Baneasa
aprox.
1943 m
Policlinica Pajura
aprox.
1978 m
Farmacia M
aprox.
1552 m
Help Net Farma
aprox.
1842 m
Dridu Farm
aprox.
1846 m
Farmacie
aprox.
1881 m
Ircom Impex
aprox.
1885 m
Farmacia naturista
aprox.
1933 m
Vatra Noua
aprox.
327 m
Bella Tratoria
aprox.
646 m
Arcade Events
aprox.
1341 m
Baneasa Parc Hotel
aprox.
1362 m
Restaurant Capricciosa
aprox.
1424 m
Restaurant Hostel Baneasa Parc
aprox.
1434 m
Selgros Pauza Mica
aprox.
1505 m
La Jar
aprox.
1523 m
Cris Garden
aprox.
1595 m
Yummy Chicken
aprox.
1702 m
Hora
aprox.
1831 m
Hotel Diplomat ****
aprox.
1842 m
La Cocosatu'
aprox.
1872 m
Restaurant Del Ponte Pizza (en)
aprox.
1873 m
Voievodal Baneasa
aprox.
1880 m
Pizzeria STAR Selgros Baneasa
aprox.
1518 m
Banca Transilvania
aprox.
1548 m
La Boeru
aprox.
1665 m
Caffe Glamour
aprox.
1708 m
Raiffeisen Bank - Agentia Baneasa
aprox.
1504 m
Banca Transilvania - Centru regional
aprox.
1547 m
Banca Transilvania - Suc. Baneasa
aprox.
1563 m
BCR
aprox.
1686 m
Bancpost
aprox.
1696 m
CR Firenze
aprox.
1718 m
Piraeus
aprox.
1733 m
Volksbank
aprox.
1744 m
ING Baneasa
aprox.
1753 m
Millenium Bank
aprox.
1759 m
CEC
aprox.
1771 m
BRD
aprox.
1775 m
Western Union
aprox.
1781 m
Emporiki Bank
aprox.
1793 m
OTP
aprox.
1799 m
Înainte să pleci...
Ești sigur că ai văzut și aceste proprietăți?
900.000 €
București, Băneasa
7 camere
410 mp
652 mp teren
559.100 € + TVA
București, Pipera
5 camere
159,5 mp
243 mp teren
1.310.000 € + TVA
București, Băneasa
12 camere
440 mp
500 mp teren
900.000 €
București, Băneasa
10 camere
350 mp
807 mp teren
597.000 €
București, Băneasa
4 camere
156 mp
472 mp teren
599.000 €
București, Sisești
8 camere
272 mp
383 mp teren
Creează alertă
Salvează căutarea ca să primești pe email ultimele anunțuri publicate
Duplexuri cu 4+ camere de vânzare în zona Băneasa, Sector 1
Cere detalii prin email
*
*
*
*
Detaliile tale de contact vor fi partajate cu Edna Imobiliare
Preț total4.054.986 RON (795.891 €)
Costuri cu achiziția30.015 RON
Preț de achiziție4.024.971 RON
Costuri cu achiziția30.015 RON
Comision agenție Întreabă agenţia
Onorariu notarial23.978 RON
Taxă înscriere OCPI6.037 RON
Preț de achiziție4.024.971 RON
Preț locuință4.024.971 RON
TVA 0%Inclus în prețul cerut
Cost total644.033 RON (126.407 €)
Avans (15%)603.746 RON
Cost achitat în prima lună5.807 RON
Costuri cu achiziția34.480 RON
Cost achitat în prima lună5.807 RON
Comision analiză dosar
400 RON - 900 RON
Taxă evaluare imobil(până la)
900 RON
Rata lunară (variabilă)17.929 RON
Asigurare anuală imobil4.025 RON
Arhivă electronică102 RON
Poliță PAD130 RON
Asigurare de viață/lună Costul este variabil. În funcție de banca aleasă, procentul variază între 0.0259% și 0.035% din soldul creditului.
Costuri cu achiziția34.480 RON
Comision agenție Întreabă agenţia
Onorariu notarial23.978 RON
Taxă întabulare OCPI6.037 RON
Autentificare contract credit4.465 RON
Preț de achiziție4.024.971 RON
Preț locuință4.024.971 RON
TVA 0%Inclus în prețul cerut
Preț de achiziție4.024.971 RON
Preț locuință4.024.971 RON
TVA 0%
Inclus în prețul cerut
Avans minim3.418.678 RON
Credit pe 30 de ani606.293 RON
Cost achitat în prima lună
Taxa evaluare imobil(până la)
900 RON
Rata lunară (variabilă)4.260 RON
Depozit colateral12.780 RON
Comision de garantare FNGCIMM335 RON
Asigurare anuală imobil4.025 RON
Poliță PAD130 RON
Tarif arhivă electronică102 RON
Costuri adiționale4.165 RON + taxe notariale
Asigurare viață și complexă (opțională)Costul este variabil. În funcție de banca aleasă, procentul variază între 0.0259% și 0.035% din soldul creditului
Onorariu notarialconform tarif notarial
Taxă întabulare OCPI4.165 RON
i
Toate valorile de mai sus sunt estimative și nu reprezintă în mod obligatoriu costurile exacte pe care le veți primi de la companiile/instituțiile prin care veți încheia tranzacția.