Agentia BrizaLand propune spre vanzare casa cuplata Parter +Etaj+Pod, situata in Bucurestii Noi, zona AFICity, constructie an 2024, suprafata desfasurata totala 173mp ( 133mp P+E + 40mp Pod ), suprafata utila totala de 150mp ( 113.8mp P+E si 36mp Pod ), amprenta la sol de 66mp, compusa din 4 camere decomandate, 2 bai, teren propriu in suprafata totala de 99mp + 21mp cota 1/2 alee comuna de acces.
Compartimentare pe niveluri :
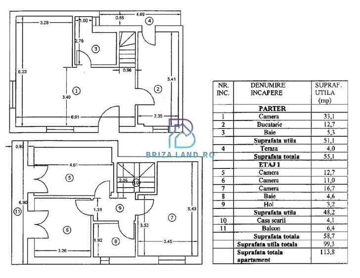
- Parter ( s. utila totala 55.1mp ) : living cu dinning, bucatarie mare inchisa, baie, terasa;
- Etaj ( s. utila totala 58,7mp ) : hol, 3 camere, baie, balcon.
- Pod inalt ( s. utila totala 36mp ): nefinisat, mansardabil.
Structura de rezistenta :
pe cadre de beton armat si pereti din caramida poroterm de 30cm, fundatie inalta, pod cu placa de beton.
Finisaje:
gresie, faianta, parchet, usi interioare, obiecte sanitare, usa de acces metalica, centrala termica Ariston si calorifere, scara placata cu granit, geamuri termopan tripan bicolor Salamander, exterior izolat cu polistiren de 10cm Caparol, tencuiala decorativa, acoperis tigla metalica, gard perimetral din placi si confectii metalice, curte amenajata, alei cu beton amprentat.
Transport:
imobilul este situat la 10 minute de mers pe jos fata de statia stb si metrou Laminorului, calculat prin Google Maps.
Puncte de interes:
magazin Mega-Image si zona comerciala AfiCity la 10 minute de mers pe jos;
magazin Lidl si parcul Basilescu la 16 minute de mers pe jos, respectiv la 4 minute cu masina;
piata 16 Februarie la 5 minute cu masina;
zona comerciala si Mall Coloseum la 7 minute cu masina;
Gradinita nr. 47 la 6 minute de mers pe jos;
Gradinita nr. 251 la 12 minute de mers pe jos sau 2 minute cu masina,
Școala Gimnazială Nr. 179 la 17 minute de mers pe jos, respectiv la 4 minute cu masina;
in apropiere mai puteti gasi restaurante, cabinet stomatologic si veterinar, farmacii, bancomate, sali de sport, service/spalatorii auto, benzinarii, frizerii si altele.
Situatie juridica :
cadastru si intabulare.
extras de carte funciara liber de sarcini.
Alte detalii:
pozitie catre sud, bransata la toate utilitatile,
parcare la strada sau in curte;
se accepta credit ipotecar.
casa este locuita de un an.
Pret : 270.000euro
Vizionarea acestui imobil se face doar în baza semnării unui acord de vizionare conform codului civil art. 2.096-2.102. Se percepe comision conventional. Se acorda consultanta in vederea acordarii unui credit bancar.
Sediul central - Timișoara
Bulevardul Victor Babeș nr. 2, 300230, Timișoara, România
Tel: +40.374.40.44.98 / Fax: +40.256.401.179
Email: suport@imobiliare.ro
Luni - Vineri 08:00 - 20:00
Punct de lucru - București: Iride Business Park, Bld. Dimitrie
Pompeiu 9-9A, Clădirea B2B,
020335, Sector 2, București, România
CONTACT
Sediul central - Timișoara
Bulevardul Victor Babeș nr. 2, 300230, Timișoara, România
Tel: +40.374.40.44.98 / Fax: +40.256.401.179
Email: suport@imobiliare.ro
Luni - Vineri 08:00 - 20:00
Punct de lucru - București: Iride Business Park, Bld. Dimitrie
Pompeiu 9-9A, Clădirea B2B,
020335, Sector 2, București, România
Salvează căutarea ca să primești pe email ultimele anunțuri publicate
Duplexuri cu 4+ camere de vânzare în zona Bucureștii Noi, Sector 1
Cere detalii prin email
*
*
*
*
Detaliile tale de contact vor fi partajate cu Briza Land Srl
Preț total1.388.065 RON (272.388 €)
Costuri cu achiziția12.172 RON
Preț de achiziție1.375.893 RON
Costuri cu achiziția12.172 RON
Comision agenție Întreabă agenţia
Onorariu notarial10.108 RON
Taxă înscriere OCPI2.064 RON
Preț de achiziție1.375.893 RON
Preț locuință1.375.893 RON
TVA 0%Inclus în prețul cerut
Cost total223.973 RON (43.951 €)
Avans (15%)206.384 RON
Cost achitat în prima lună3.158 RON
Costuri cu achiziția14.431 RON
Cost achitat în prima lună3.158 RON
Comision analiză dosar
400 RON - 900 RON
Taxă evaluare imobil(până la)
900 RON
Rata lunară (variabilă)6.129 RON
Asigurare anuală imobil1.376 RON
Arhivă electronică102 RON
Poliță PAD130 RON
Asigurare de viață/lună Costul este variabil. În funcție de banca aleasă, procentul variază între 0.0259% și 0.035% din soldul creditului.
Costuri cu achiziția14.431 RON
Comision agenție Întreabă agenţia
Onorariu notarial10.108 RON
Taxă întabulare OCPI2.064 RON
Autentificare contract credit2.259 RON
Preț de achiziție1.375.893 RON
Preț locuință1.375.893 RON
TVA 0%Inclus în prețul cerut
Preț de achiziție1.375.893 RON
Preț locuință1.375.893 RON
TVA 0%
Inclus în prețul cerut
Avans minim769.481 RON
Credit pe 30 de ani606.412 RON
Cost achitat în prima lună
Taxa evaluare imobil(până la)
900 RON
Rata lunară (variabilă)4.261 RON
Depozit colateral12.783 RON
Comision de garantare FNGCIMM115 RON
Asigurare anuală imobil1.376 RON
Poliță PAD130 RON
Tarif arhivă electronică102 RON
Costuri adiționale1.516 RON + taxe notariale
Asigurare viață și complexă (opțională)Costul este variabil. În funcție de banca aleasă, procentul variază între 0.0259% și 0.035% din soldul creditului
Onorariu notarialconform tarif notarial
Taxă întabulare OCPI1.516 RON
i
Toate valorile de mai sus sunt estimative și nu reprezintă în mod obligatoriu costurile exacte pe care le veți primi de la companiile/instituțiile prin care veți încheia tranzacția.