Locuința face parte dintr-un duplex contemporan, organizat pe patru niveluri – subsol comun cu garaj, parter, etaj și mansardă – fiecare unitate fiind complet independentă, cu acces dedicat și compartimentare optimizată si foarte asemanatoare. Configurația asigură intimitate, funcționalitate și utilizarea eficientă a fiecărui spațiu.
Subsol – garaj comun și accese individuale
Subsolul servește ca zonă de parcare și spațiu tehnic al ansamblului. Accesul auto se face prin rampă, către un garaj comun în care fiecare unitate dispune de locuri de parcare proprii. Circulațiile sunt organizate astfel încât fiecare locuință să aibă intrare directă în casă prin scară interioară separată. Subsolul include saptii de depozitare, spatiu de lucru, cameră tehnică și o incapere care poate acomoda o sala de sport individuala de 40 mp.
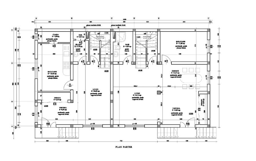
Parter – zona de zi, orientată către confort
Parterul reprezintă spațiul principal de locuire diurnă. Intrarea se face in livingul generos care reuneste zona de living room cu zona de dinning. Zona de dining este poziționată pentru a conecta natural livingul cu bucătăria, facilitând fluxul ergonomic, bucataria fiind inchisa. Nivelul include o baie de serviciu și spațiu de depozitare.
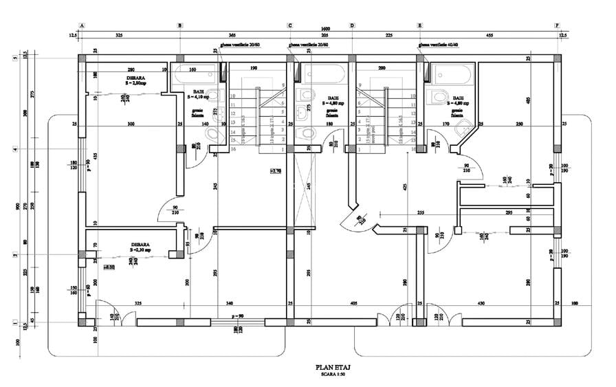
Etaj – zona de noapte, definită prin confort și intimidate
Etajul este destinat dormitoarelor. Dormitorul matrimonial beneficiaza de baie proprie și dressing, iar celelalte camere sunt organizate cu dressing propriu cu o baie comuna pe nivel. Distribuția încăperilor permite optimizarea intimității, a luminozității și a liniștii. Holul central este foarte generos, ar putea deservi inclusiv ca spatiu tip salon de asteptare. Fiecare incapere beneficiaza de acces la balconul circular al imobilului.
Mansardă – spațiu versatil, adaptabil nevoilor fiecărei familii
Mansarda reprezintă un nivel flexibil, care a fost configurat ca cameră suplimentară deservind ca spațiu de recreere, birou si hobby room. Înălțimile variabile și iluminarea prin ferestre de acoperiș conferă un caracter distinct, transformând acest nivel într-o zonă perfecta pentru amenajarea unei zone de relaxare si meditatie.
Concept arhitectural
Configurația duplexului permite independență între unități, prin accese separate, cu structure configurate sa acomodeze 2 familii. Proprietatea beneficiaza de 70 mp de curte comuna, care asigura intimatate nefiind in raza directa a campului vizual al celorlati locuitori. Prezența subsolului comun cu garaj aduce un avantaj semnificativ în utilizarea terenului și protecția autovehiculelor. Nivelurile superioare sunt gândite pentru confort actual, eficiență energetică și integrarea armonioasă a luminii naturale. Mansarda adaugă valoare locuinței prin flexibilitate și suprafață suplimentară, transformând ansamblul într-o opțiune completă pentru familii cu nevoi diverse.
Locație
- adresa este bine situată — acces bun la transport public (autobuz, tramvai, metrou), apropiere de un parc semnificativ, iar conexiunile auto și infrastructura zonei sunt favorabile.
- Transport
- Linii de autobuz accesibile: 112, 331, 476, 95, N-113 etc. — accesibile de la stațiile Mezeș / Crinului — 430 m ( 6 minute pe jos)
- Linia de tramvai apropiată — Tramvai 53
- Metroul pe Metroul M4: stația Parc Bazilescu oferă acces rapid spre zona central — 950 m ( 13 minute pe jos)
- Parcul Bazilescu, la 950 m — la 10 minute de mers pe jos — oferă o zonă de recreere semnificativă, cu suprafață de 13,5 ha.
- Zona face parte din cartierul Bucureștii Noi, cu acces la arterele din nord-vestul orașului — ușor de ieșit spre Șoseaua Chitilei sau alte ieșiri către periferie/centru.
Dotări & Finisaje
Echipare: mobilat, utilat si cu electrocasnice
Pereți: lavabil
Pardoseli: predominant parchet si gresie-faianta in bai
Tâmplărie: PVC
Băi: echipate cu cabina dus sau cada si ventilate
Bucătărie: mobilată si utilată
HVAC: Imobilul dispune de unitati AC in majoritatea incaperilor
Sediul central - Timișoara
Bulevardul Victor Babeș nr. 2, 300230, Timișoara, România
Tel: +40.374.40.44.98 / Fax: +40.256.401.179
Email: suport@imobiliare.ro
Luni - Vineri 08:00 - 20:00
Punct de lucru - București: Iride Business Park, Bld. Dimitrie
Pompeiu 9-9A, Clădirea B2B,
020335, Sector 2, București, România
CONTACT
Sediul central - Timișoara
Bulevardul Victor Babeș nr. 2, 300230, Timișoara, România
Tel: +40.374.40.44.98 / Fax: +40.256.401.179
Email: suport@imobiliare.ro
Luni - Vineri 08:00 - 20:00
Punct de lucru - București: Iride Business Park, Bld. Dimitrie
Pompeiu 9-9A, Clădirea B2B,
020335, Sector 2, București, România
Salvează căutarea ca să primești pe email ultimele anunțuri publicate
Duplexuri cu 4+ camere de vânzare în zona Bucureștii Noi, Sector 1
Cere detalii prin email
*
*
*
*
Detaliile tale de contact vor fi partajate cu -
Preț total1.797.918 RON (352.927 €)
Costuri cu achiziția14.914 RON
Preț de achiziție1.783.004 RON
Costuri cu achiziția14.914 RON
Comision agenție Întreabă agenţia
Onorariu notarial12.239 RON
Taxă înscriere OCPI2.675 RON
Preț de achiziție1.783.004 RON
Preț locuință1.783.004 RON
TVA 0%Inclus în prețul cerut
Cost total288.528 RON (56.637 €)
Avans (15%)267.451 RON
Cost achitat în prima lună3.565 RON
Costuri cu achiziția17.512 RON
Cost achitat în prima lună3.565 RON
Comision analiză dosar
400 RON - 900 RON
Taxă evaluare imobil(până la)
900 RON
Rata lunară (variabilă)7.942 RON
Asigurare anuală imobil1.783 RON
Arhivă electronică102 RON
Poliță PAD130 RON
Asigurare de viață/lună Costul este variabil. În funcție de banca aleasă, procentul variază între 0.0259% și 0.035% din soldul creditului.
Costuri cu achiziția17.512 RON
Comision agenție Întreabă agenţia
Onorariu notarial12.239 RON
Taxă întabulare OCPI2.675 RON
Autentificare contract credit2.598 RON
Preț de achiziție1.783.004 RON
Preț locuință1.783.004 RON
TVA 0%Inclus în prețul cerut
Preț de achiziție1.783.004 RON
Preț locuință1.783.004 RON
TVA 0%
Inclus în prețul cerut
Avans minim1.176.783 RON
Credit pe 30 de ani606.222 RON
Cost achitat în prima lună
Taxa evaluare imobil(până la)
900 RON
Rata lunară (variabilă)4.260 RON
Depozit colateral12.780 RON
Comision de garantare FNGCIMM149 RON
Asigurare anuală imobil1.783 RON
Poliță PAD130 RON
Tarif arhivă electronică102 RON
Costuri adiționale1.923 RON + taxe notariale
Asigurare viață și complexă (opțională)Costul este variabil. În funcție de banca aleasă, procentul variază între 0.0259% și 0.035% din soldul creditului
Onorariu notarialconform tarif notarial
Taxă întabulare OCPI1.923 RON
i
Toate valorile de mai sus sunt estimative și nu reprezintă în mod obligatoriu costurile exacte pe care le veți primi de la companiile/instituțiile prin care veți încheia tranzacția.