1

Casă cu arhitectura contemporana în Bucureștii Noi – 2 apartamente independente

790.000 €

Chitila, București

Nr. cam.:
5
Sup. utilă:
217 mp
Sup. teren:
250 mp
Tip prop.:
Duplex
  • • Comision 0%
  • • Locație exactă

Descriere casă

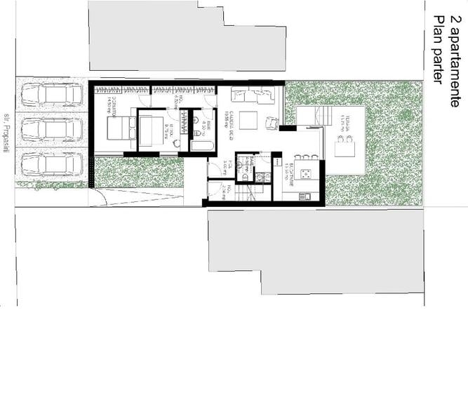
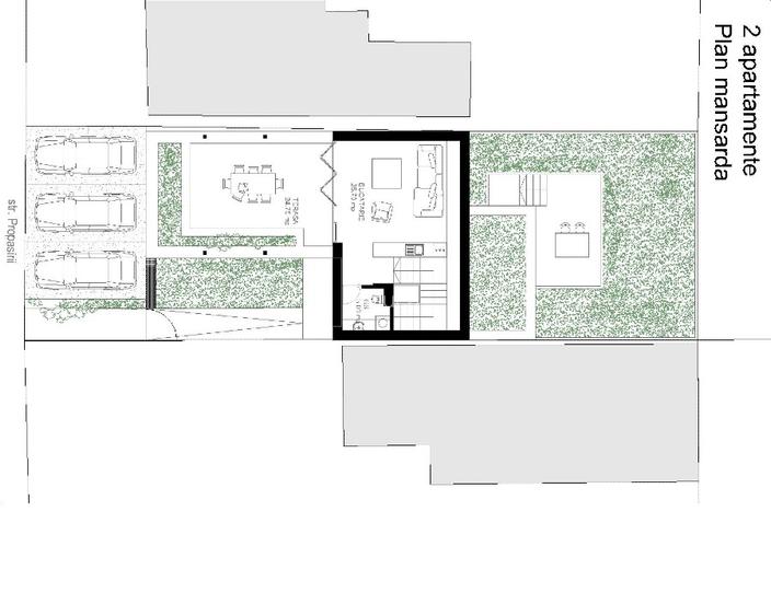
O proprietate rară în zona Bucureștii Noi, concepută pentru a oferi două unități locative complet independente, fiecare cu spații generoase și intimitate proprie. Situată într-o zonă liniștită de case, în apropiere de Bd. Laminorului, la doar câteva minute de metrou, parc și zone comerciale. ________________________________________ Detalii generale: • Suprafață utilă: 217 mp • Suprafață construită: 262 mp • Teren: 250 mp • Regim: Parter + Etaj + Mansardă • An construcție: 2026 (în curs de finalizare) ________________________________________ Compartimentare inteligentă – 2 apartamente reale Parter – apartament independent + curte proprie • Dormitor • Birou • Living • Bucătărie • 2 băi • Curte proprie de 65 mp Ideal pentru: • părinți / familie extinsă • închiriere separată • birou + locuință ________________________________________ Etaj + Mansardă – apartament spațios • 3 dormitoare • 3 băi • Living cu bucătărie open space • Terasă de 25 mp Perfect pentru o familie numeroasă sau locuire premium ________________________________________ Parcare • 3 locuri de parcare ________________________________________ Locație excelentă: • 5–10 min mers pe jos până la: o Metrou Laminorului o Parcul Bazilescu o Colosseum Mall • Stație autobuz la 200 m • Zonă de case, liniștită, cu multă vegetație ________________________________________ Construcție & dotări: • Structură în cadre de beton armat • Pereți exteriori din BCA • Pompă de căldură • Încălzire în pardoseală • Finisaje la alegerea clientului ________________________________________ Concept & avantaje: • Două locuințe complet funcționale într-o singură proprietate • Ideal pentru locuire + venit pasiv • Potrivit pentru două familii sau familie extinsa • Costuri reduse de întreținere (eficiență energetică ridicată)
Citește mai mult Citește mai puțin
Nemobilat Aer condiționat Pompă caldură

Detalii casă

ID anunț: XV1001414 Copiat! 275328069 Copiat!
Actualizat în: 21 Martie 2026
Nr. băi: 4
An construcție: 2026
Regim înălțime: P+2E+M

Utilități

Utilități
Canalizare Electricitate Gaze
Comision
0%

Puncte de interes

Mijloace transport
tram-station
Statia Mezes linia 45
Stații tramvai aprox. 255 m
bus-station
Capat Mezes linii : 45,112.
Stații autobuz aprox. 265 m
train-station
Gara - Halta Pajura - zisa si Triaj
Stații tren aprox. 926 m
metro-station
Laminorului (M4)
Stații metrou aprox. 1004 m
Școală
school
Scoala Nr. 184
Școli aprox. 282 m
school
Scoala Generala nr 183 Bucuresti
Școli aprox. 585 m
kindergarten
Gradinita Nr. 47
Gradinițe aprox. 705 m
kindergarten
Gradinita de copii nr.47
Gradinițe aprox. 713 m
Recreere
park
Parc
Parcuri aprox. 163 m
supermarket
City Shop Non-Stop
Supermarket aprox. 270 m
sports-ground
Teren sportiv
Terenuri sport aprox. 783 m
cafe
Cafe Bar
Cafenea aprox. 951 m

Detalii despre preț și costuri

Costuri cu achiziția

Fără credit
Credit ipotecar
Noua casă

i

Costuri adiționale mai puțin știute la achiziție: taxe notariale, comisioane etc.

Insight premium disponibil după login

Proprietăți similare

Duplex cu 5 camere în Pipera
750.000 €
București, Pipera
5 camere
223 mp
300 mp teren
Duplex cu 4 camere în Dorobanți
790.000 €
București, Dorobanți
4 camere
132,3 mp
165 mp teren
Duplex cu 5 camere în Iancu Nicolae
750.000 € + TVA
București, Iancu Nicolae
5 camere
242 mp
400 mp teren

Detalii de contact

Raluca

Raluca

Abonează-te la newsletter să fii primul care primește cele mai noi recomandări de proprietăți și sfaturi de la experți.

CONTACT

Creează alertă

Salvează căutarea ca să primești pe email ultimele anunțuri publicate

Duplexuri cu 4+ camere de vânzare în zona Chitila, Sector 1