7

Vila mobilata si utilata in Pipera

695.000 €

Pipera, București

Nr. cam.:
8
Sup. utilă:
218 mp
Sup. teren:
400 mp
Tip prop.:
Duplex
  • • Locație aproximativă

Descriere casă

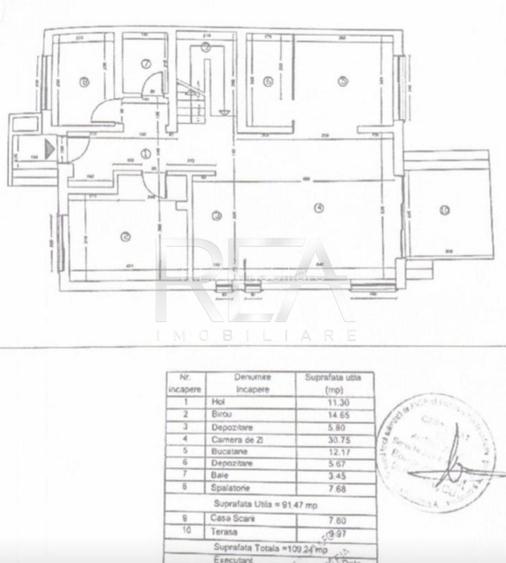
R.E.A. Imobiliare Vila tip duplex, ansamblu rezidential de lux in spatele Scolii Americane, P+2, mobilata si utilata in anul 2025. Suprafata totala de 296 mp: 220 mp utili + 55 mp terasele. Curte libera 250 mp. Incalzire prin pardosela. Configuratie: - Parter: living, bucatarie, birou, baie, spalatorie, debara, hol, scara; - Etaj 1: 4 dormitoare (dintre care doua cu baie proprie, si doua cu o baie comuna), 3 bai, hol, scara, terasa; - Etaj 2: 2 camere, baie, scara, terasa 33 mp. Dispune de doua locuri de parcare in curtea din fata a imobilului. Pentru detalii si vizionari, contactati-ne specificand codul de identificare P9686.
Citește mai mult Citește mai puțin
Aer condiționat Centrală proprie Încălzire prin pardoseală 2 Parcări

Detalii casă

ID anunț: XDKS110DO Copiat! 273304267 Copiat!
Actualizat în: 17 Decembrie 2025
Tip tranzacție: De vânzare prin agent
Suprafață construită: 350 mp
Nr. bucătării: 1
Nr. băi: 5
Nr. balcoane / Terase / Logii: 1
Nr. terase: 1
An construcție: 2020 (Finalizată)
Structură rezistență: Beton
Regim înălțime: P+2E
Modalitate de plată: Cash sau Credit

Utilități

Utilități
Curent Apă Canalizare
Comision
standard

Certificat energetic:

Clasa energetică: A

Disponibilitate proprietate:

imediat

Puncte de interes

Școală
school
Happy Children Academy
Școli aprox. 440 m
school
Scoala Americana
Școli aprox. 592 m
university
School American Bucharest-Voluntari
Universități aprox. 657 m
kindergarten
Kindergarden
Gradinițe aprox. 958 m
Recreere
supermarket
Mega Image Pipera Liziera
Supermarket aprox. 260 m
sports-ground
Teren sportiv
Terenuri sport aprox. 436 m
park
Parc
Parcuri aprox. 924 m
cafe
Doncafe Brasserie
Cafenea aprox. 1559 m

Detalii despre preț și costuri

Costuri cu achiziția

Fără credit
Credit ipotecar
Noua casă

i

Costuri adiționale mai puțin știute la achiziție: taxe notariale, comisioane etc.

Acces la informații premium după autentificare
Login Gratuit

Proprietăți similare

Duplex cu 7 camere în Pipera
664.290 €
București, Pipera
7 camere
327 mp
279 mp teren
Duplex cu 5 camere în Pipera
756.250 €
București, Pipera
5 camere
285 mp
240 mp teren
Duplex cu 7 camere în Pipera
664.290 €
București, Pipera
7 camere
323 mp
279 mp teren

Detalii de contact

R.E.A. Imobiliare

Radu Chirev Manager

R.E.A. Imobiliare
PRO

Abonează-te la newsletter să fii primul care primește cele mai noi recomandări de proprietăți și sfaturi de la experți.

CONTACT

Creează alertă

Salvează căutarea ca să primești pe email ultimele anunțuri publicate

Duplexuri cu 4+ camere de vânzare în zona Pipera, Sector 1