6

CASA P+1+ROOFTOP | 103MP + 70MP TERASE | BRAGADIRU | COMISION 0%!!

217.800 €

Alexandriei, București

Nr. cam.:
3
Sup. utilă:
103 mp
Sup. teren:
80 mp
Tip prop.:
Duplex
  • • Comision 0%
  • • Locație exactă
  • • Vizionare prin apel video

Descriere casă

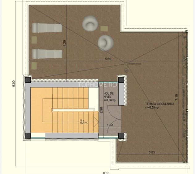
Casă P+1+RoofTop în Bragadiru – ansamblul TZU RESIDENCE Descoperă o locuință modernă și spațioasă, situată într-o zonă liniștită din Bragadiru, cu acces rapid la Șoseaua Alexandriei. Suprafață utilă: 103 mp Terase: 70 mp RoofTop: 47 mp cu vedere panoramică Curte proprie: 80 mp – ideală pentru relaxare sau grătar în familie Preț promoțional: 180.000 € + TVA Compartimentare: Parter: living luminos cu acces pe terasă, bucătărie open/închisă (la alegere), baie, garderobă și spații de depozitare Etaj: 2 dormitoare generoase și 2 băi RoofTop: terasă spectaculoasă de 47 mp, cu priveliște deschisă – perfectă pentru lounge privat sau petreceri cu prietenii Dotări și finisaje: Încălzire în pardoseală la parter Calorifere la etaj Finisaje moderne: gresie, faianță, parchet, uși interioare, băi complet utilate Se vinde la cheie, gata pentru mutare Locuri de parcare disponibile în cadrul ansamblului. Această casă îmbină confortul urban cu liniștea unei zone rezidențiale, fiind alegerea ideală pentru familii care caută spațiu, intimitate și acces facil către București. Programează o vizionare și profită acum de promoția limitată: 180.000 € + TVA.
Citește mai mult Citește mai puțin
Grădină Curte Calorifere Centrală proprie Încălzire prin pardoseală

Detalii casă

ID anunț: X78O0102T Copiat! 270530639 Copiat!
Actualizat în: 12 Ianuarie 2026
Tip tranzacție: De vânzare prin agent
Nr. bucătării: 1
Nr. băi: 3
Nr. balcoane / Terase / Logii: 2
An construcție: 2025 (În construcție)
Structură rezistență: Beton
Regim înălțime: P+1E
Modalitate de plată: Cash sau Credit

Utilități

Destinație
Rezidențial
Pereți
Faianță Vopsea lavabilă
Podele
Parchet Gresie
Ușă intrare
Metal
Uși interior
Lemn
Izolații termice
Exterior
Ferestre cu geam termopan
PVC
Contorizare
Apometre Contor gaz
Alte spații utile
Spațiu depozitare Dressing WC Serviciu
Utilități
Curent Apă Canalizare Gaze CATV
Amenajare străzi
Asfaltate Betonate Iluminat stradal

Certificat energetic:

Clasa energetică: A

Puncte de interes

Mijloace transport
bus-station
Statia Cartier Fortuna, linia 302
Stații autobuz aprox. 435 m
bus-station
Campului
Stații autobuz aprox. 675 m
bus-station
Independentei
Stații autobuz aprox. 724 m
bus-station
Statia Campului, linia 302
Stații autobuz aprox. 730 m
Recreere
restaurant
Casa Luca
Restaurant aprox. 550 m
supermarket
Penny
Supermarket aprox. 652 m
restaurant
Restaurant Centura Bragadiru
Restaurant aprox. 1031 m
restaurant
Green Restaurant
Restaurant aprox. 1640 m

Detalii despre preț și costuri

Costuri cu achiziția

Fără credit
Credit ipotecar
Noua casă

i

Costuri adiționale mai puțin știute la achiziție: taxe notariale, comisioane etc.

Acces la informații premium după autentificare
Login Gratuit

Proprietăți similare

Duplex cu 4 camere în Prelungirea Ghencea
169.900 €
București, Prelungirea Ghencea
4 camere
100 mp
210 mp teren
Duplex cu 3 camere în Ghencea
170.000 €
București, Ghencea
3 camere
61,7 mp
55 mp teren
Duplex cu 4 camere în Prelungirea Ghencea
169.900 €
București, Prelungirea Ghencea
4 camere
100 mp
210 mp teren

Detalii de contact

TOPHOME.RO

Vladimir Alexandru Tataru Consilier vanzari

5.00(34 review-uri)

TOPHOME.RO
PRO

Abonează-te la newsletter să fii primul care primește cele mai noi recomandări de proprietăți și sfaturi de la experți.

CONTACT

Creează alertă

Salvează căutarea ca să primești pe email ultimele anunțuri publicate

Duplexuri cu 3 camere de vânzare în zona Alexandriei, Sector 5