Agentia Taboo va propune spre vanzare o casa tip duplex, moderna si spatioasa, construita in anul 2025, amplasata intr-o zona exclusivista din Selimbar, Sibiu. Proprietatea dispune de un teren de 230 mp, cu o suprafata construita de 150 mp si o suprafata utila de 120 mp, fiind conceputa pentru a oferi confort, eleganta si functionalitate.
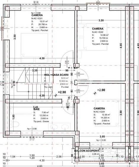
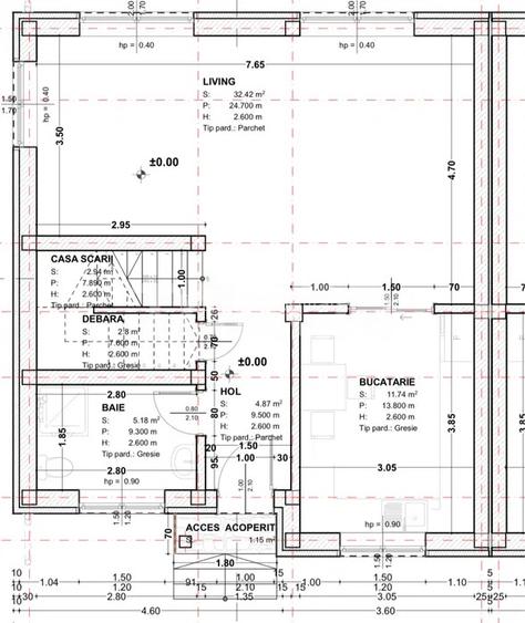
Locuinta este structurata pe parter, etaj si pod pentru depozitare, iar accesul intre niveluri se realizeaza prin scara interioara din beton. La parter se afla un living generos si luminos, bucatarie, baie si o terasa ce face legatura directa cu curtea, creand un spatiu ideal pentru relaxare si petrecerea timpului in aer liber. Etajul cuprinde trei dormitoare, un hol spatios, o baie moderna si 2 balcoane cu priveliste.
Curtea libera de 152 mp este atent gandita, fiind prevazuta cu locuri de parcare, o zona destinata copiilor, terasa si spatiu pentru depozitare. Casa este dotata cu centrala proprie, incalzire prin pardoseala si sistem de climatizare, iar structura solida din caramida garanteaza siguranta si durabilitate. Finisajele interioare sunt in stadiu de semifinisat, cu pereti zugraviti in vopsea lavabila, tamplarie PVC cu geam termopan si podele nefinisate, oferind viitorilor proprietari libertatea de a-si personaliza locuinta dupa propriul stil.
Amplasata intr-o zona linistita si selecta, casa beneficiaza de acces facil catre scoli, gradinite, facultati, institutii publice, bancare si statii pentru mijloace de transport in comun, ceea ce o transforma intr-o alegere excelenta pentru familiile care isi doresc confort, siguranta si apropiere de punctele de interes ale orasului Sibiu.
Aceasta proprietate imbina perfect avantajele unei locuinte moderne cu beneficiile unei zone exclusiviste si reprezinta o oportunitate ideala pentru cei care cauta o casa bine compartimentata, spatioasa si cu potential de personalizare.
Pret: 235.000€
Cod ofertă / ID: P24957
Sună-ne acum la numarul din anunt și află detalii despre această proprietate de vanzare din Sibiu, dar și despre alte proprietăți potrivite pentru tine.
Citește mai mult
Citește mai puțin
Nemobilat
Centrală proprie
Încălzire prin pardoseală
Bine întreținut (Bună)
Sediul central - Timișoara
Bulevardul Victor Babeș nr. 2, 300230, Timișoara, România
Tel: +40.374.40.44.98 / Fax: +40.256.401.179
Email: suport@imobiliare.ro
Luni - Vineri 08:00 - 20:00
Punct de lucru - București: Iride Business Park, Bld. Dimitrie
Pompeiu 9-9A, Clădirea B2B,
020335, Sector 2, București, România
CONTACT
Sediul central - Timișoara
Bulevardul Victor Babeș nr. 2, 300230, Timișoara, România
Tel: +40.374.40.44.98 / Fax: +40.256.401.179
Email: suport@imobiliare.ro
Luni - Vineri 08:00 - 20:00
Punct de lucru - București: Iride Business Park, Bld. Dimitrie
Pompeiu 9-9A, Clădirea B2B,
020335, Sector 2, București, România
Sună acum și cere detalii sau programează o vizionare.
Cere detalii prin email
*
*
*
*
Stații autobuz
Parcări
Terenuri sport
Statia Sibiu Grupa Selimbar
aprox.
397 m
Sibiu-Triaj (Sud)
aprox.
1243 m
Irmes 2
aprox.
1975 m
Parcare
aprox.
1171 m
Parcare
aprox.
1193 m
Parcare
aprox.
1378 m
Parcare
aprox.
1791 m
Parcare
aprox.
1964 m
Parcare
aprox.
1984 m
Parcare
aprox.
1999 m
Teren sportiv
aprox.
1953 m
Înainte să pleci...
Ești sigur că ai văzut și aceste proprietăți?
225.000 €
Județul Sibiu, Șelimbăr
4 camere
115 mp
200 mp teren
235.000 €
Județul Sibiu, Șelimbăr
4 camere
118 mp
200 mp teren
220.000 €
Județul Sibiu, Șelimbăr
4 camere
91 mp
220 mp teren
279.900 €
Județul Sibiu, Șelimbăr
4 camere
120 mp
250 mp teren
235.000 €
Județul Sibiu, Șelimbăr
4 camere
120 mp
235 mp teren
220.000 €
Județul Sibiu, Șelimbăr
4 camere
120 mp
275 mp teren
Creează alertă
Salvează căutarea ca să primești pe email ultimele anunțuri publicate
Duplexuri cu 4+ camere de vânzare în Șelimbăr, Județul Sibiu
Cere detalii prin email
*
*
*
*
Detaliile tale de contact vor fi partajate cu Taboo Imobiliare
Preț total1.208.081 RON (237.153 €)
Costuri cu achiziția10.968 RON
Preț de achiziție1.197.113 RON
Costuri cu achiziția10.968 RON
Comision agenție Întreabă agenţia
Onorariu notarial9.172 RON
Taxă înscriere OCPI1.796 RON
Preț de achiziție1.197.113 RON
Preț locuință1.197.113 RON
TVA 0%Inclus în prețul cerut
Cost total195.624 RON (38.402 €)
Avans (15%)179.567 RON
Cost achitat în prima lună2.979 RON
Costuri cu achiziția13.078 RON
Cost achitat în prima lună2.979 RON
Comision analiză dosar
400 RON - 900 RON
Taxă evaluare imobil(până la)
900 RON
Rata lunară (variabilă)5.333 RON
Asigurare anuală imobil1.197 RON
Arhivă electronică102 RON
Poliță PAD130 RON
Asigurare de viață/lună Costul este variabil. În funcție de banca aleasă, procentul variază între 0.0259% și 0.035% din soldul creditului.
Costuri cu achiziția13.078 RON
Comision agenție Întreabă agenţia
Onorariu notarial9.172 RON
Taxă întabulare OCPI1.796 RON
Autentificare contract credit2.110 RON
Preț de achiziție1.197.113 RON
Preț locuință1.197.113 RON
TVA 0%Inclus în prețul cerut
Preț de achiziție1.197.113 RON
Preț locuință1.197.113 RON
TVA 0%
Inclus în prețul cerut
Avans minim590.916 RON
Credit pe 30 de ani606.198 RON
Cost achitat în prima lună
Taxa evaluare imobil(până la)
900 RON
Rata lunară (variabilă)4.259 RON
Depozit colateral12.777 RON
Comision de garantare FNGCIMM100 RON
Asigurare anuală imobil1.197 RON
Poliță PAD130 RON
Tarif arhivă electronică102 RON
Costuri adiționale1.337 RON + taxe notariale
Asigurare viață și complexă (opțională)Costul este variabil. În funcție de banca aleasă, procentul variază între 0.0259% și 0.035% din soldul creditului
Onorariu notarialconform tarif notarial
Taxă întabulare OCPI1.337 RON
i
Toate valorile de mai sus sunt estimative și nu reprezintă în mod obligatoriu costurile exacte pe care le veți primi de la companiile/instituțiile prin care veți încheia tranzacția.