8

Duplex modern cu 4 camere si carport, in Cartierul Arhitectilor

180.000 €

Arhitecților - Calea Cisnădiei, Sibiu

Nr. cam.:
4
Sup. utilă:
120 mp
Sup. teren:
180 mp
Tip prop.:
Duplex
  • • Locație aproximativă

Descriere casă

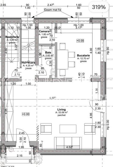
Casa Tip Duplex cu 4 camere, Calea Cisnadiei- Comision 0% Casa Moderna in Calea Cisnadiei, cu un regim de inaltime P+1+P, casa dispune de mp de teren de 180. din care 80 mp curte libera amenjata ,o terasa/carport de 16.5 mp, iar la interior dispune de o suprafata utila de 118 mp structurata astfel: -La parter un living de 33 mp, o bucatarie de 12,7 mp cu o camara ,o baie de 3 mp,debara/spalatorie 4 mp si hol 4 mp; -La etaj de 3 dormitoare de 16 mp+balcon de 6.56, 14 mp si 11 mp, o baie de 5 mp, dressing de 2,5 mp, hol de 8 m si un balcon de 6.56 mp; -Podul poate fi folosit ca si spatiu de depozitare. -Casele Se predau la stadiul 'ALB' la interior astfel: peretii complet finisati inclusiv lavabila alba, sape elicopterizate, instalatie de incalzire prin pardoseala la etaj si parter,centrala termica in condensare, instalatie electricae,instalatie sanitara pe pozitie,toate utilitatiile cu contoare montate, scara pod. -La exterior acestea se predau 'LA CHEIE' astfel: lemn termotratat la terasa/carport,a lei pietonale si loc de parcare in curte amenajate cu dale de beton,zona verde amenajata cu gazon,gard de imprejmuire,poarta acces auto si portita de intrare. -La cerere casele Se pot preda si la stadiul 'LA CHEIE' la interior. Pret: 180.000 Euro Telefon: - Mariana
Citește mai mult Citește mai puțin
Centrală proprie 2 Parcări

Detalii casă

ID anunț: XBM4110BH Copiat! 265740372 Copiat!
Actualizat în: 15 Aprilie 2026
Suprafață construită: 100 mp
Suprafață desfășurată: 140 mp
Nr. bucătării: 1
Nr. băi: 2
Nr. balcoane / Terase / Logii: 1
Nr. terase: 1
Suprafață terase: 20 mp
Front stradal: 13.7 m
Învelitoare acoperiș: Țiglă
An construcție: 2025 (Finalizată)
Structură rezistență: Cărămidă
Regim înălțime: P+1E

Utilități

Pereți
Vopsea lavabilă
Ușă intrare
PVC
Izolații termice
Exterior
Contorizare
Apometre Contor căldură Contor gaz
Facilități imobil
Acoperiș
Utilități
Curent Apă Canalizare CATV Gaze Telefon
Internet
Cablu
Amenajare străzi
Iluminat stradal Mijloace de transport în comun Asfaltate
Comision
standard

Disponibilitate proprietate:

Imediat

Puncte de interes

Mijloace transport
bus-station
Cimitirul Eroilor 1
Stații autobuz aprox. 1888 m
bus-station
Cimitirul Eroilor 2
Stații autobuz aprox. 1893 m
bus-station
Dumbrava 1
Stații autobuz aprox. 1992 m
bus-station
Dumbrava 2
Stații autobuz aprox. 1993 m
Recreere
park
Georgescu Parc
Parcuri aprox. 415 m
sports-ground
Teren sportiv
Terenuri sport aprox. 1863 m
restaurant
Varsailles
Restaurant aprox. 1960 m

Detalii despre preț și costuri

Costuri cu achiziția

Fără credit
Credit ipotecar
Noua casă

i

Costuri adiționale mai puțin știute la achiziție: taxe notariale, comisioane etc.

Insight premium disponibil după login

Proprietăți recomandate

Detalii de contact

Ideal Imobiliare Sibiu

Mariana Bozesan Broker imobiliar

Ideal Imobiliare Sibiu
PRO

Abonează-te la newsletter să fii primul care primește cele mai noi recomandări de proprietăți și sfaturi de la experți.

CONTACT

Creează alertă

Salvează căutarea ca să primești pe email ultimele anunțuri publicate

Duplexuri cu 4+ camere de vânzare în zona Arhitecților - Calea Cisnădiei, Sibiu