Casa noua la pret bun Sibiu Calea Cisnadiei

199.900 €

Arhitecților - Calea Cisnădiei, Sibiu

Nr. cam.:
4
Sup. utilă:
140 mp
Sup. teren:
300 mp
Tip prop.:
Duplex
  • • Locație aproximativă

Descriere casă

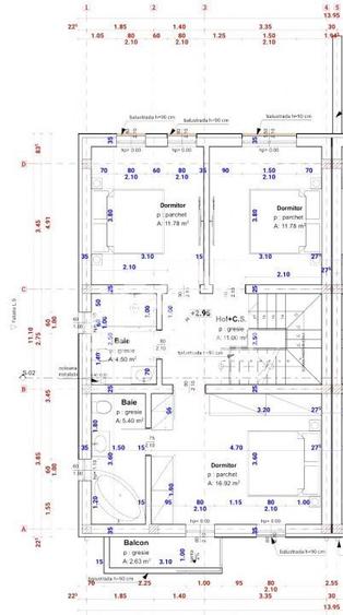
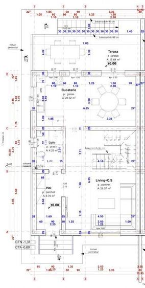
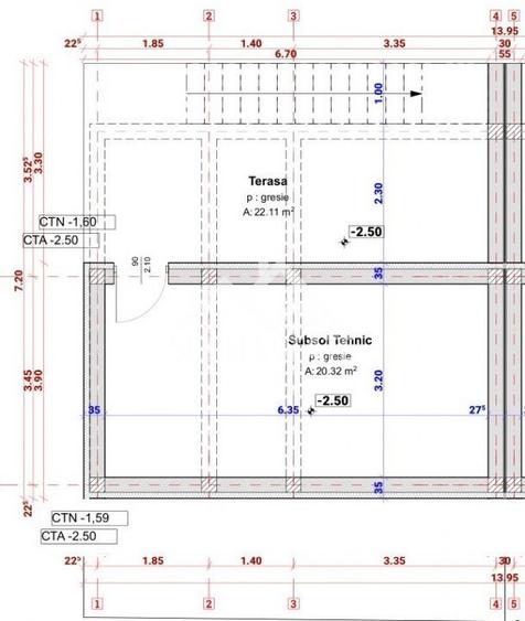
CASA noua, intabulata - pivnita si terasa - Sibiu, Calea Cisnadiei La 10 minute de Kaufland Arhitectilor, sau Lidl Cisnadie - noua zona rezidentiala - doar case Parter si etaj 120 mp + 2 terase si pivnita, teren 300 mp Parter - hol, baie, living, bucatarie cu dinning - acces terasa -16 mp Etaj - dormitor cu dressing si balcon, hol, 2 dormitoare secundare si o baie Pod depozitare - scara batanta Demisol - pivnita 20 mp + terasa acoperita 20 mp - acces din curte Curtea are alei pavate si zona verde - intra lejer 2 masini Casa are racoduri utilitati - apa, canal, curent - pompa de caldura si incalzire in pardoseala, geamuri termopan 3 foi sticla = confort si eficienta buna Acasa poate incepe aici .... Pret vanzare 199.900 - semifinisat ALB
Citește mai mult Citește mai puțin
Curte Centrală proprie Încălzire prin pardoseală Beci 2 Parcări

Detalii casă

ID anunț: XFOU1108U Copiat! 275431049 Copiat!
Actualizat în: 14 Aprilie 2026
Suprafață construită: 80 mp
Suprafață desfășurată: 200 mp
Nr. bucătării: 1
Nr. băi: 3
Nr. balcoane / Terase / Logii: 1
Nr. terase: 2
Suprafață terase: 36 mp
Front stradal: 14.0 m
An construcție: 2025 (Finalizată)
Structură rezistență: Cărămidă
Regim înălțime: S+P+1E

Utilități

Ușă intrare
PVC
Izolații termice
Exterior
Ferestre cu geam termopan
PVC
Contorizare
Apometre Contor căldură Contor gaz
Facilități imobil
Acoperiș
Utilități
Curent Apă Canalizare
Amenajare străzi
Iluminat stradal Mijloace de transport în comun Asfaltate Pietruite

Disponibilitate proprietate:

Imediat

Puncte de interes

Mijloace transport
airport
Aerodrom Magura
Aeroporturi aprox. 1396 m
Școală
school
Scoala nr. 1
Școli aprox. 1931 m
Recreere
sports-ground
Teren sportiv
Terenuri sport aprox. 1942 m
supermarket
Penny Market
Supermarket aprox. 1965 m

Detalii despre preț și costuri

Costuri cu achiziția

Fără credit
Credit ipotecar
Noua casă

i

Costuri adiționale mai puțin știute la achiziție: taxe notariale, comisioane etc.

Insight premium disponibil după login

Proprietăți similare

Duplex cu 4 camere în Arhitecților - Calea Cisnădiei
212.000 €
Sibiu, Arhitecților - Calea Cisnădiei
4 camere
120 mp
300 mp teren
Duplex cu 4 camere în Arhitecților - Calea Cisnădiei
182.000 €
Sibiu, Arhitecților - Calea Cisnădiei
4 camere
110 mp
135 mp teren
Duplex cu 4 camere în Arhitecților - Calea Cisnădiei
215.000 €
Sibiu, Arhitecților - Calea Cisnădiei
4 camere
107,65 mp
259 mp teren

Detalii de contact

Sibiu Estate

Diana Zicu Consilier Imobiliar

Sibiu Estate
PRO

Abonează-te la newsletter să fii primul care primește cele mai noi recomandări de proprietăți și sfaturi de la experți.

CONTACT

Creează alertă

Salvează căutarea ca să primești pe email ultimele anunțuri publicate

Duplexuri cu 4+ camere de vânzare în zona Arhitecților - Calea Cisnădiei, Sibiu