1

Casa cu 5 camere, 233mp utili, garaj, pod (80mp), Calea Poplacii

455.000 €

Valea Aurie, Sibiu

Nr. cam.:
5
Sup. utilă:
233 mp
Sup. teren:
223 mp
Tip prop.:
Duplex
  • • Locație aproximativă

Descriere casă

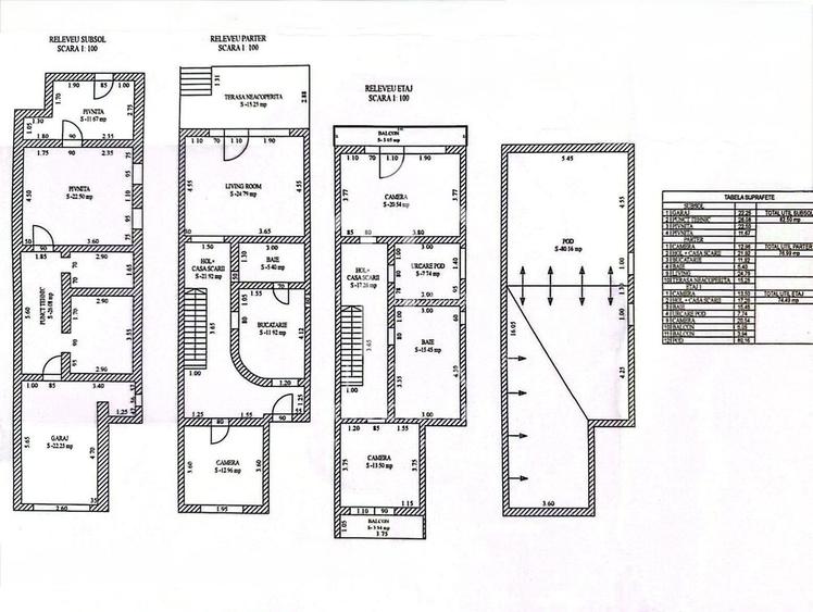
Casa tip duplex, recent renovata, cu 5 camere, mobilata, regim de inaltime S+P+E+Pod, aer conditionat in toate camerele inclusiv pod. Avantaje: -casa recent renovata -sistem de supraveghere video -aer conditionat in toate camerele -zona de barbecue -terasa acoperita -acoperis recent refacut -se preda mobilata si utilata -bai cu geam pentru aerisire -curte pavata -calea de acces asfaltata -in apropiere: Lidl, Profi, transport in comun, gradinita, scoala, Parcul Belvedere. Detalii tehnice: -izolata termic cu polistiren de 10cm -geamuri tripan (3 foi de sticla) -curent 220v si trifazic -parchet SPC -incalzire in pardoseala la parter si etaj -incalzire cu calorifere la subsol si pod -centrala pe gaz + boiler -instalatia electrica si sanitara refacuta complet Compartimetare: Subsol: -hol de acces -garaj -camera tehnica -baie -living cu bucatarie open-space (izolata fonic) Parter: -hol de acces -dormitor -bucatarie -baie -living -terasa Etaj: -hol -dormitor cu dressing si baie proprie -baie -dormitor -2 balcoane Pod: -camera open-space (80mp) Locatia: Sibiu - zona Calea Poplacii.
Citește mai mult Citește mai puțin
Mobilat Curte Aer condiționat Calorifere Centrală proprie Încălzire prin pardoseală Beci 1 Parcare 1 Garaj

Detalii casă

ID anunț: XDQ4110IR Copiat! 275290669 Copiat!
Actualizat în: 14 Mai 2026
Tip tranzacție: De vânzare prin agent
Nr. bucătării: 2
Nr. băi: 4
Nr. balcoane / Terase / Logii: 2
Nr. terase: 1
Suprafață terase: 15 mp
An construcție: 1994
Regim înălțime: S+P+1E
Modalitate de plată: Cash sau Credit

Utilități

Pereți
Faianță
Podele
Gresie Parchet
Izolații termice
Exterior
Bucătărie
Mobilată Utilată
Electrocasnice
Aragaz Frigider Hotă Mașină de spălat Mașină spălat vase TV
Alte spații utile
Dressing
Facilități imobil
Interfon
Utilități
Curent Apă Canalizare CATV Gaze Telefon
Internet
Cablu
Amenajare străzi
Iluminat stradal Mijloace de transport în comun Asfaltate
Comision
standard

Disponibilitate proprietate:

Imediat

Puncte de interes

Mijloace transport
bus-station
Cimitirul Eroilor 2
Stații autobuz aprox. 328 m
bus-station
Cimitirul Eroilor 1
Stații autobuz aprox. 348 m
bus-station
Cimitir 1
Stații autobuz aprox. 506 m
bus-station
Cimitir 2
Stații autobuz aprox. 528 m
Școală
school
Scoala Genenerala Nr. 25
Școli aprox. 357 m
kindergarten
FasTracKids
Gradinițe aprox. 677 m
kindergarten
Gradinita Nr. 5
Gradinițe aprox. 824 m
school
Scoala Gimnaziala nr. 16
Școli aprox. 1131 m
Recreere
park
Parc
Parcuri aprox. 242 m
sports-ground
Teren sportiv
Terenuri sport aprox. 243 m
restaurant
Restaurant Cesar
Restaurant aprox. 461 m
supermarket
Alcomsib
Supermarket aprox. 517 m

Istoricul prețurilor

Acces la informații premium după autentificare
Login Gratuit

Detalii despre preț și costuri

Costuri cu achiziția

Fără credit
Credit ipotecar
Noua casă

i

Costuri adiționale mai puțin știute la achiziție: taxe notariale, comisioane etc.

Acces la informații premium după autentificare
Login Gratuit

Proprietăți similare

Duplex cu 8 camere în Șelimbăr
459.000 €
Județul Sibiu, Șelimbăr
8 camere
308 mp
500 mp teren

Detalii de contact

Virtual Imobiliare

Petru Caburgan Consultant Imobiliar

Virtual Imobiliare

Abonează-te la newsletter să fii primul care primește cele mai noi recomandări de proprietăți și sfaturi de la experți.

CONTACT

Creează alertă

Salvează căutarea ca să primești pe email ultimele anunțuri publicate

Duplexuri cu 4+ camere de vânzare în zona Valea Aurie, Sibiu