2

Casă modernă | 3 dormitoare | 140 mp curte | 120 mp utili | Preț avantajos

129.700 €

Șura Mică, Județul Sibiu

Nr. cam.:
4
Sup. utilă:
114,8 mp
Sup. teren:
240 mp
Tip prop.:
Duplex
  • • Locație aproximativă
  • • Vizionare prin apel video

Descriere casă

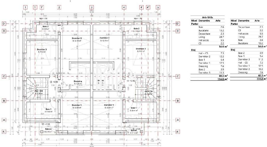
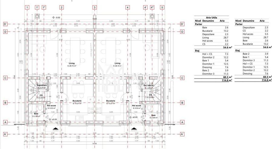
Maac Imobiliare prezintă o casă spațioasă, perfectă pentru o familie, situată într-o zonă liniștită. Aceasta este disponibilă în două variante de achiziție: 129.700€ – la roșu interior, finisată exterior 107.300€ – dacă achiziția se face pe firmă (fără TVA) Suprafață și compartimentare: Suprafață utilă: 114.8 mp Curte: 140 mp Parter: Living generos (28.7 mp) Bucătărie spațioasă (13.2 mp) Baie (2.6 mp) Hol acces și spațiu de depozitare Etaj: Dormitor matrimonial cu dressing (12.5 mp) și baie proprie (5.4 mp) Dormitor 2: 12.2 mp Dormitor 3: 11.3 mp Baie secundară: 3.9 mp Hol și casa scării Locuința oferă o compartimentare inteligentă, cu spații bine optimizate și lumină naturală din abundență. Pentru mai multe detalii precizati telefonic ca ati vazut anuntul ID: CP2739480
Citește mai mult Citește mai puțin
Centrală proprie Bine întreținut (Bună)

Detalii casă

ID anunț: XCSI111BV Copiat! 270178543 Copiat!
Actualizat în: 23 Decembrie 2025
Suprafață construită: 58 mp
Suprafață desfășurată: 150 mp
Nr. bucătării: 1
Nr. băi: 2
Nr. balcoane / Terase / Logii: 1
An construcție: 2024 (Finalizată)
Structură rezistență: Cărămidă
Regim înălțime: P+1E

Utilități

Destinație
Rezidențial
Ușă intrare
Metal
Uși interior
PVC
Izolații termice
Exterior
Contorizare
Apometre Contor gaz
Utilități
Curent Apă Canalizare CATV Gaze Telefon
Internet
Cablu
Amenajare străzi
Iluminat stradal Mijloace de transport în comun Asfaltate
Comision
standard

Disponibilitate proprietate:

Imediat

Detalii despre preț și costuri

Costuri cu achiziția

Fără credit
Credit ipotecar
Noua casă

i

Costuri adiționale mai puțin știute la achiziție: taxe notariale, comisioane etc.

Insight premium disponibil după login

Proprietăți recomandate

Detalii de contact

MAAC Imobiliare

Marian Marcu Consultant imobiliar

3.75(3 review-uri)

MAAC Imobiliare
PRO

Abonează-te la newsletter să fii primul care primește cele mai noi recomandări de proprietăți și sfaturi de la experți.

CONTACT

Creează alertă

Salvează căutarea ca să primești pe email ultimele anunțuri publicate

Duplexuri cu 4+ camere de vânzare în Șura Mică, Județul Sibiu