COMISION 0%. Duplex in Braytim. Asfalt. Langa Musicescu.

189.900 €

Braytim, Timișoara

Nr. cam.:
4
Sup. utilă:
101 mp
Sup. teren:
250 mp
Tip prop.:
Duplex
  • • Locație aproximativă

Descriere casă

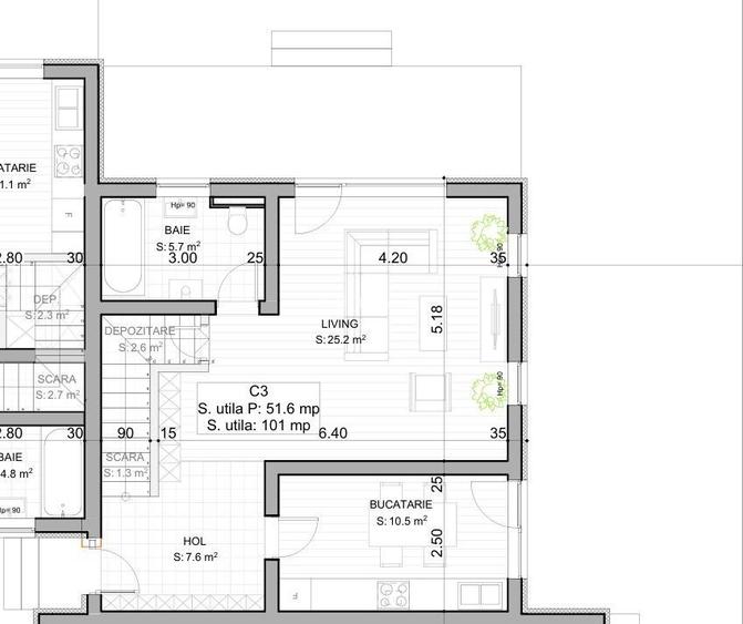
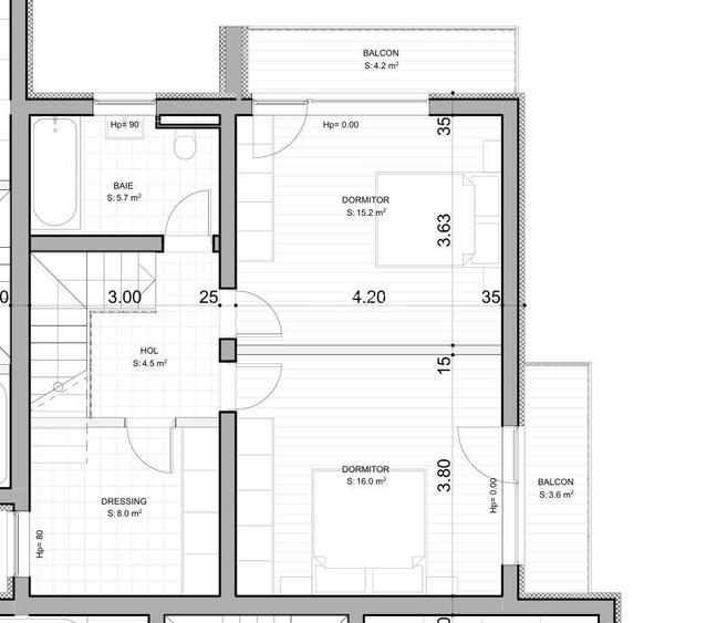
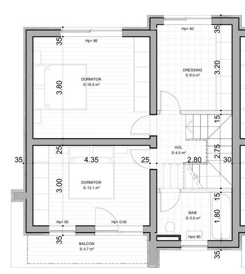
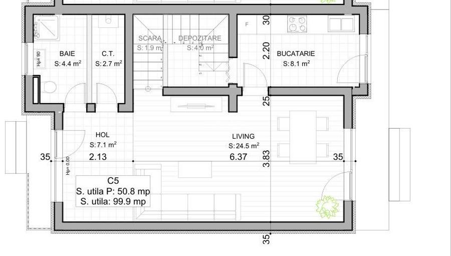
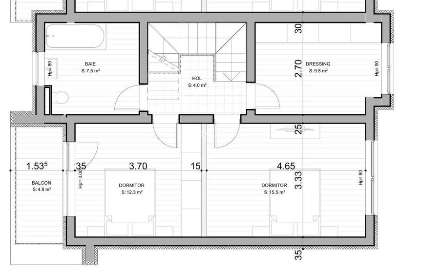
Detalii RELEVANTE oferta : - DUPLEX in zona Braytim, cu regim de inaltime Parter + Etaj. - suprafata utila de 101 mp plus terasa de 15 mp, si 2 balcoane. - teren de 250 mp, cu front stradal de 12 m. - detalii constructie : ziduri exterioare si interioare din caramida porotherm, termoizolata exterior, acoperis terasat. - compartimentare: - parter : hol acces, bucatarie + camara, camera de zi, baie, camera tehnica, terasa; - etaj : hol acces, 3 dormitoare, baie, 2 balcoane. - detalii AMENAJARE interioara : parchet laminat, gresie, faianta, ferestre cu tamplarie PVC si geam tripan, usa PVC la intrare, usi interioare noi, vopsea lavabila, corpuri sanitare noi. SE POT ALEGE FINISAJELE. - CENTRALA termica PROPRIE cu incalzire prin pardoseala - 2 locuri de parcare inscrise in CF Detalii suplimentare : teren imprejmuit, drum asfaltat. - dispune de toate utilitatile (apa, gaz, canal, curent), drumul de acces fiind asfaltat. Detalii pret : Pretul solicitat este in functie de model si incepe de la 189.900 Eur, negociabil. In pret sunt incluse locurile de parcare. Se accepta si varianta de achizitionare prin intermediul unui credit bancar. Informatii Certificat Energetic: - Clasa energetica : A .
Citește mai mult Citește mai puțin
Grădină Centrală proprie Încălzire prin pardoseală 2 Parcări

Detalii casă

ID anunț: XDF111023 Copiat! 269921253 Copiat!
Actualizat în: 18 Februarie 2026
Suprafață construită: 65 mp
Suprafață desfășurată: 132 mp
Nr. bucătării: 1
Nr. băi: 2
Nr. balcoane / Terase / Logii: 2
Nr. terase: 1
Suprafață terase: 15 mp
An construcție: 2026 (În construcție)
Structură rezistență: Beton
Regim înălțime: P+1E

Utilități

Destinație
Rezidențial
Pereți
Faianță Vopsea lavabilă
Podele
Gresie Parchet
Ușă intrare
PVC
Izolații termice
Exterior
Ferestre cu geam termopan
PVC
Contorizare
Apometre Contor gaz
Alte spații utile
WC Serviciu
Utilități
Curent Apă Canalizare CATV Gaze Telefon
Internet
Cablu
Amenajare străzi
Iluminat stradal Mijloace de transport în comun Asfaltate
Comision
standard

Certificat energetic:

Clasa energetică: A

Vecinătăți:

.
Shopping :
- Hipermarketuri : Lidl, Carrefour Market,
Kaufland
- Magazine alimentare : Profi, Mega image

Educatie :
- Neghinita Kindergarten Club
- Gradinita lui Goghita
- Scoala Generala Nr. 25
- Grup Scolar de Chimie si Protectia
Mediului Azur
- Liceul Teoretic Iris

Spatii recreere :
- Parcul Jecza

Mijloace de transport:
- Autobuze : Linia E3, Linia 15, Linia 16,
Giroceana
.

Disponibilitate proprietate:

Imediat

Puncte de interes

Mijloace transport
bus-station
Apicultorilor
Stații autobuz aprox. 901 m
trolleybus-station
Statie Sudului bucla T16
Stații troleibuz aprox. 1493 m
train-station
Halta Giroc hc
Stații tren aprox. 1605 m
tram-station
Statie P. Pavlov Tv7
Stații tramvai aprox. 1716 m
Școală
university
CENTRU REGIONALDE PREGATIRE PROFESIONALA PENTRU MAGISTRATI, GIROC, tIMISOARA
Universități aprox. 820 m
university
Institutul de Cercetari pentru Energii Regenerabile
Universități aprox. 1228 m
kindergarten
Gradinita Goghita
Gradinițe aprox. 1235 m
school
Școala generală nr. 14
Școli aprox. 1672 m
Recreere
park
Viitor Parc Braytim
Parcuri aprox. 814 m
restaurant
Arizona
Restaurant aprox. 886 m
supermarket
Lidl
Supermarket aprox. 1433 m
sports-ground
Arena Ciarda Rosie
Terenuri sport aprox. 1582 m

Detalii despre preț și costuri

Costuri cu achiziția

Fără credit
9.423 RON
Credit ipotecar
11.342 RON
Noua casă
1.108 RON+ taxe notariale

i

Costuri adiționale mai puțin știute la achiziție: taxe notariale, comisioane etc.

Proprietăți recomandate

Detalii de contact

MIOCASA

Vlad Mioc Consultant imobiliar

MIOCASA
PRO

Abonează-te la newsletter să fii primul care primește cele mai noi recomandări de proprietăți și sfaturi de la experți.

CONTACT

Creează alertă

Salvează căutarea ca să primești pe email ultimele anunțuri publicate

Duplexuri cu 4+ camere de vânzare în zona Braytim, Timișoara