Duplex cu 5 camere la rosu in zona Calea Urseni

183.000 €

Calea Urseni, Timișoara

Nr. cam.:
5
Sup. utilă:
118 mp
Sup. teren:
300 mp
Tip prop.:
Duplex
  • • Locație aproximativă

Descriere casă

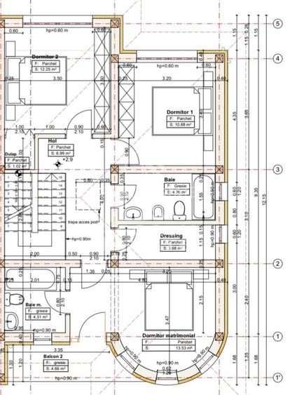
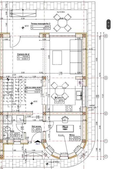
APOSTU ESTATE va ofera spre vanzare un duplex la rosu situat in Calea Urseni. Dispune de o suprafata utila de 118 mp iar terenul aferent imobilului este de 300 mp Pozitionat la aproximativ 50 m de asfalt accesul pana la casa se face foarte usor drumul fiind pietruit. Regimul de inaltime este P+E+pod. Zidaria este din caramida Porotherm de 25 cm cu izolatie de 10 cm. Geamurile sunt tripan de la Kommerling. Casa are placa de beton peste parter dar si peste etaj. Utilitati: apa, gaz, curent, fosa ecologica, fibra optica Termen de finalizare: sfarsitul anului. Compartimentare: parter: - hol acces - dormitor - spatiu depozitare sub scari - living - bucatarie ( open space sau inchisa in functie de preferintele clientulu ) - terasa etaj - hol - dormitor matrimonial cu baie proprie si dressing - alte 2 dormitoare - baie Pretul este 183.000 euro. Va asteptam cu drag la o vizionare CP 1901152
Citește mai mult Citește mai puțin
Nemobilat Centrală proprie Încălzire prin pardoseală

Detalii casă

ID anunț: XBAF11422 Copiat! 274296416 Copiat!
Actualizat în: 29 Ianuarie 2026
Suprafață desfășurată: 130 mp
Nr. bucătării: 1
Nr. băi: 3
Front stradal: 10.0 m
An construcție: 2023 (În construcție)
Etaj: Etaj 1 / 1
Regim înălțime: P+1E

Utilități

Pereți
Faianță Vopsea lavabilă
Podele
Gresie Parchet
Ferestre cu geam termopan
PVC
Diverse
Scară interioară
Facilități imobil
Acoperiș
Utilități
Curent Apă Canalizare Fosa septică Gaze
Amenajare străzi
Pietruite

Disponibilitate proprietate:

Imediat

Puncte de interes

Mijloace transport
tram-station
Statie Ciarda Rosie Tv4
Stații tramvai aprox. 1608 m
bus-station
Semenic
Stații autobuz aprox. 1784 m
tram-station
Statie I.O.T. Tv4
Stații tramvai aprox. 1797 m
train-station
Halta Semenic Hm (en)
Stații tren aprox. 1857 m
Școală
school
Scoala Generala 20
Școli aprox. 1272 m
kindergarten
Gradinita Program Normal Nr. 6
Gradinițe aprox. 1283 m
school
Scoala Gimnaziala nr. 20
Școli aprox. 1283 m
school
Colegiul Tehnic Electrotimis
Școli aprox. 1763 m
Recreere
park
Parcul Ciarda Rosie
Parcuri aprox. 1096 m
park
Parc
Parcuri aprox. 1101 m
sports-ground
Teren sportiv
Terenuri sport aprox. 1716 m
sports-ground
Arena Ciarda Rosie
Terenuri sport aprox. 1719 m

Detalii despre preț și costuri

Costuri cu achiziția

Fără credit
Credit ipotecar
Noua casă

i

Costuri adiționale mai puțin știute la achiziție: taxe notariale, comisioane etc.

Insight premium disponibil după login

Proprietăți similare

Duplex cu 3 camere în Calea Urseni
164.900 €
Timișoara, Calea Urseni
3 camere
76 mp
150 mp teren
Duplex cu 3 camere în Calea Urseni
164.900 €
Timișoara, Calea Urseni
3 camere
76 mp
150 mp teren
Duplex cu 5 camere în Mehala
188.700 €
Timișoara, Mehala
5 camere
97,26 mp
218 mp teren

Detalii de contact

APOSTU ESTATE

Claudiu Jura Senior Broker

APOSTU ESTATE
PRO

Abonează-te la newsletter să fii primul care primește cele mai noi recomandări de proprietăți și sfaturi de la experți.

Feedback apel

CONTACT

Creează alertă

Salvează căutarea ca să primești pe email ultimele anunțuri publicate

Duplexuri cu 4+ camere de vânzare în zona Calea Urseni, Timișoara