De vanzare casa- Ciarda Rosie Timisoara- comision 0

329.000 €

Ciarda Roșie, Timișoara

Nr. cam.:
5
Sup. utilă:
140 mp
Sup. teren:
350 mp
Tip prop.:
Duplex
  • • Locație aproximativă

Descriere casă

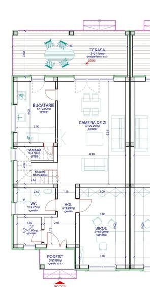
Duplex de vanzare, constructie 2026, situata in zona de Sud a orasului, care beneficiaza de acces facil catre centre comerciale precum: HORBACH, LIDL, AUCHAN, GALERIA BEGA SHOPPING SUD, SALA DE FITNESS, acces la tramvai si autobuz. Spatiul interior are o suprafata utila de 140 mp si prezinta urmatoarea compartimentare PARTER-inaltime 3 m - living open-space cu acces la zona de terasa - dinning open-space - birou/dormitor - bucatarie cu camara la demisol - camera tehnica - baie cu dus walk in - antreu - scara interioara ETAJ:inaltime 2.80 m - dormitor matrimonial baie matrimoniala - 2 dormitoare secundare - dressing - baie cu cada - hol tranzit - acces pod Casa se vine la cheie, exista posibiliatea de a fi personalizata de catre cumparator.
Citește mai mult Citește mai puțin
Grădină Centrală proprie Încălzire prin pardoseală 2 Parcări

Detalii casă

ID anunț: X1BR110UN Copiat! 274337985 Copiat!
Actualizat în: 21 Ianuarie 2026
Nr. bucătării: 1
Nr. băi: 3
Nr. balcoane / Terase / Logii: 1
Nr. terase: 1
Suprafață terase: 22 mp
Învelitoare acoperiș: Țiglă
An construcție: 2026
Structură rezistență: Cărămidă
Regim înălțime: D+P+1E

Utilități

Pereți
Vopsea lavabilă
Izolații termice
Exterior
Ferestre cu geam termopan
PVC
Diverse
Scară interioară
Alte spații utile
Dressing
Facilități imobil
Acoperiș
Utilități
Curent Apă Canalizare CATV Gaze Telefon
Internet
Cablu
Amenajare străzi
Iluminat stradal Mijloace de transport în comun Asfaltate

Vecinătăți:

Birourile Continental Automotive Romania, Saguaro Technology, AEM, Spitalul Judetean Timisoara, Stadionul Dan Paltinisanu, Smartfit Studio, Strandul Sun Beach, Profi, Lidl

Disponibilitate proprietate:

august 2026

Puncte de interes

Mijloace transport
tram-station
Statie Piata Libertatii TV1, TV2, Tv4, Tv5
Stații tramvai aprox. 189 m
bus-station
Piata Iancu Huniade
Stații autobuz aprox. 203 m
trolleybus-station
Statie Piata 700 T11, T13, T14, T17, T18
Stații troleibuz aprox. 280 m
train-station
Gara de Nord
Stații tren aprox. 1508 m
Școală
school
COLEGIUL TEHNIC "ION I.C.BRATIANU" - Grupul Școlar Industrial de Industrie Ușoară
Școli aprox. 141 m
school
Colegiul Tehnic I.C. Bratianu
Școli aprox. 154 m
university
Facultatea de Chimie Industriala si Ingineria Mediului
Universități aprox. 171 m
kindergarten
Gradinita Program Normal Nr. 22 (Lenau)
Gradinițe aprox. 449 m
Recreere
supermarket
Materna-Modern
Supermarket aprox. 124 m
public-square
Piata Mircea Eliade
Piețe publice aprox. 127 m
park
Park (en)
Parcuri aprox. 156 m
mall
Kappa Centrul Comercial
Mall aprox. 1623 m

Detalii despre preț și costuri

Costuri cu achiziția

Fără credit
14.197 RON
Credit ipotecar
16.706 RON
Noua casă
1.816 RON+ taxe notariale

i

Costuri adiționale mai puțin știute la achiziție: taxe notariale, comisioane etc.

Proprietăți recomandate

Detalii de contact

Abonează-te la newsletter să fii primul care primește cele mai noi recomandări de proprietăți și sfaturi de la experți.

CONTACT

Creează alertă

Salvează căutarea ca să primești pe email ultimele anunțuri publicate

Duplexuri cu 4+ camere de vânzare în zona Ciarda Roșie, Timișoara