Pozitie excelenta. 4 Dormitoare. Bucatarie inchisa.

220.000 €

Girocului, Timișoara

Nr. cam.:
5
Sup. utilă:
120 mp
Sup. teren:
270 mp
Tip prop.:
Duplex
  • • Locație aproximativă

Descriere casă

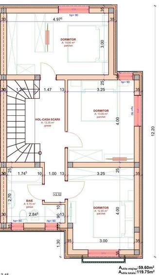
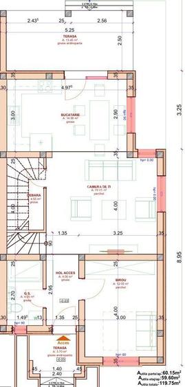
De vanzare duplex intr- o pozitie foarte buna, aproape de str. Mielei - Giroc, cu urmatoarea compartimentare: Parter: hol, baie, birou, debara sub scara, bucatarie inchisa, camera de zi, terasa; Etaj: hol, 3 dormitoare, dressing, baie, balcon; Pod: spatiu depozitare. Duplexul dispune de incalzire in pardoseala, zidarie complet caramida, compartimentare foarte eficienta, terasa. Se preda cu alei acces pavate, curte pregatita pt gazon, teren ingradit. Proiectul este unul deosebit, situat intr-o zona linistita, avand accesul facil catre oras. Pret 220.000 Eur. Tel .
Citește mai mult Citește mai puțin
Grădină Curte Centrală proprie Încălzire prin pardoseală 2 Parcări

Detalii casă

ID anunț: XDF111017 Copiat! 240662688 Copiat!
Actualizat în: 22 Aprilie 2026
Nr. bucătării: 1
Nr. băi: 2
Nr. balcoane / Terase / Logii: 1
Nr. terase: 1
Suprafață terase: 14 mp
Învelitoare acoperiș: Țiglă
An construcție: 2025 (În construcție)
Regim înălțime: P+1E

Utilități

Destinație
Rezidențial
Pereți
Faianță Vopsea lavabilă
Podele
Gresie Parchet
Ușă intrare
PVC
Izolații termice
Exterior
Ferestre cu geam termopan
PVC
Contorizare
Apometre Contor gaz
Alte spații utile
Dressing WC Serviciu
Facilități imobil
Acoperiș
Utilități
Curent Apă Canalizare CATV Fosa septică Gaze Telefon
Internet
Cablu Wireless
Amenajare străzi
Iluminat stradal Mijloace de transport în comun Asfaltate Betonate Pietruite
Comision
standard

Certificat energetic:

Clasa energetică: A

Vecinătăți:

.
Shopping :
- Hipermarketuri : Carrefour Market
- Magazine alimentare : Lidl, Profi
- Magazin de articole casnice: Pepco

Educatie :
- Gradinita Primii Pasi
- Gradinita cu program prelungit Giroc
- Scoala Gimnaziala Giroc
- Liceul teoretic David Voniga

Spatii recreere :
- Parcuri
- Complex Daf Junior
- Culb sportiv Dyadora
- Poligon MAG Tehnica

Mijloace de transport:
- Autobuze : Linia E3, Giroceana
.

Disponibilitate proprietate:

Imediat

Puncte de interes

Mijloace transport
bus-station
Giroceana
Stații autobuz aprox. 722 m
bus-station
Giroceana
Stații autobuz aprox. 779 m
tram-station
Statie P. Pavlov Tv7
Stații tramvai aprox. 950 m
train-station
Halta Giroc hc
Stații tren aprox. 1206 m
Școală
university
CENTRU REGIONALDE PREGATIRE PROFESIONALA PENTRU MAGISTRATI, GIROC, tIMISOARA
Universități aprox. 857 m
school
Școala generală nr. 14
Școli aprox. 884 m
kindergarten
Gradinita Program Prelungit Nr. 1
Gradinițe aprox. 937 m
university
Institutul de Cercetari pentru Energii Regenerabile
Universități aprox. 1181 m
Recreere
park
Parc
Parcuri aprox. 1094 m
restaurant
Restaurant Regent
Restaurant aprox. 1236 m
sports-ground
Teren sportiv
Terenuri sport aprox. 1239 m
supermarket
Carrefour Market
Supermarket aprox. 1283 m

Detalii despre preț și costuri

Costuri cu achiziția

Fără credit
Credit ipotecar
Noua casă

i

Costuri adiționale mai puțin știute la achiziție: taxe notariale, comisioane etc.

Insight premium disponibil după login

Proprietăți recomandate

Detalii de contact

MIOCASA

Mihai-Alin Roman Consultant imobiliar

5.00(7 review-uri)

MIOCASA
PRO

Abonează-te la newsletter să fii primul care primește cele mai noi recomandări de proprietăți și sfaturi de la experți.

Feedback apel

CONTACT

Creează alertă

Salvează căutarea ca să primești pe email ultimele anunțuri publicate

Duplexuri cu 4+ camere de vânzare în zona Girocului, Timișoara