Duplex cu 4 camere de vanzare in localitatea Timisoara, zona Lipovei.
Descopera noul proiect de duplexuri moderne, din zona de nord a orasului.
FOXFORT propune spre vanzare acest ansamblu de duplexuri insiruite, construite in anul 2025, care iti ofera posibilitatea de a-ti achizitiona noua locuinta de vis, la cheie, cu finisaje premium.
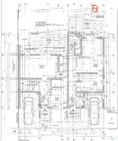
Este vorba despre o casa tip duplex insiruita, cu un regim de inaltime Parter + Etaj + Mansarda si are un numar de 4 camere, 2 bai, balcon, terasa, cu o suprafata utila de 118.68 mp si teren 186 mp. Structura este din beton, material zidarie caramida porotherm, pereti de compartimentare caramida de 15 cm, iar izolatia exterioara cu polistiren expandat de 15 cm. Imobilul dispune de urmatoarele utilitati: curent electric, apa, canalizare, gaz, catv, telefon, acces internet, fibra optica. Terasa imobilului are suprafata de 12 mp. Lungimea frontului stradal este de 8 ml.
Compartimentarea este dispusa dupa cum urmeaza:
- Parter: hol, living, baie, bucatarie, terasa;
- Etaj: hol, 3 dormitoare, baie, balcon;
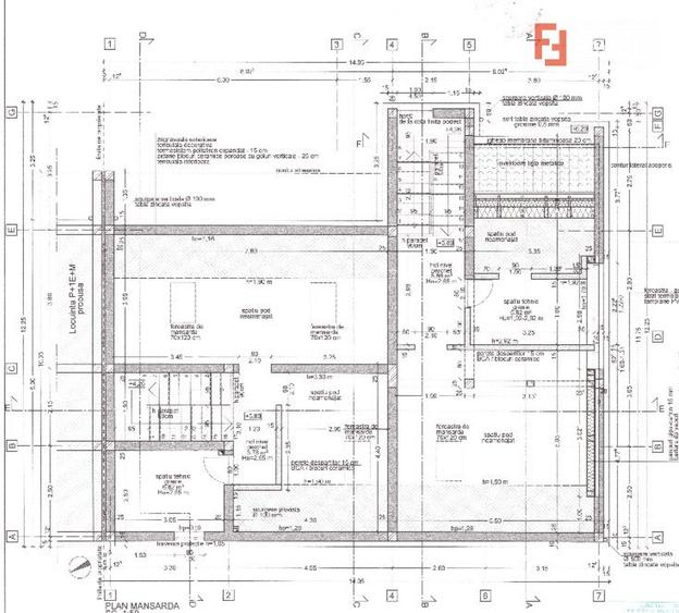
- Mansarda: 1 camera tehnica + spatiu neamenajat.
Finisajele interioare sunt moderne:
- Usa intrare: pvc;
- Usi interioare: celulare, panel;
- Tamplarie ferestre: pvc, tripan strat termoizolant;
- Podele: parchet, gresie.
Duplexul se vinde cu predare la cheie, finisat. Se va preda cu 3 sisteme de climatizare (AC), sistem monitorizare video, sisteme efractie si 1 loc de parcare.
Imobilul dispune de centrala proprie cu incalzire prin pardoseala.
Mansarda nu face parte din suprafata utila a imobilului. Se va preda finisata, la pretul extra de 15.000€.
Pretul este de 272.964€ - COMISION 0%.
Se accepta ca si modalitate de plata surse proprii sau credit bancar, sau rate la dezvoltator.
Daca visezi la o locuinta premium, intr-o zona de top a orasului, acest proiect este alegerea ideala. Contacteaza-ne chiar astazi si programeaza o vizionare.
ID intern: V8152
Sediul central - Timișoara
Bulevardul Victor Babeș nr. 2, 300230, Timișoara, România
Tel: +40.374.40.44.98 / Fax: +40.256.401.179
Email: suport@imobiliare.ro
Luni - Vineri 08:00 - 20:00
Punct de lucru - București: Iride Business Park, Bld. Dimitrie
Pompeiu 9-9A, Clădirea B2B,
020335, Sector 2, București, România
CONTACT
Sediul central - Timișoara
Bulevardul Victor Babeș nr. 2, 300230, Timișoara, România
Tel: +40.374.40.44.98 / Fax: +40.256.401.179
Email: suport@imobiliare.ro
Luni - Vineri 08:00 - 20:00
Punct de lucru - București: Iride Business Park, Bld. Dimitrie
Pompeiu 9-9A, Clădirea B2B,
020335, Sector 2, București, România
Sună acum și cere detalii sau programează o vizionare.
Cere detalii prin email
*
*
*
*
Stații autobuz
Stații troleibuz
Stații tramvai
Stații tren
Gradinițe
Școli
Universități
Supermarket
Mall
Hipermarket
Parcări
Parcuri
Terenuri sport
Piețe publice
Farmacie
Spital
Restaurant
Cafenea
Pub
Bar
Bancă
Statie Pomiculturii A40, T14
aprox.
354 m
Statie Pomiculturii E2, T14
aprox.
369 m
Remus Radulet
aprox.
382 m
Statie Remus Radulet E1, T17, T18
aprox.
388 m
Divizia 9 Cavalerie
aprox.
441 m
Statie Divizia 9 Cavalerie A40, T14
aprox.
447 m
Statie Miresei T17, E1
aprox.
464 m
Liege
aprox.
471 m
Cimitirul Eroilor
aprox.
491 m
Cimitirul Eroilor
aprox.
513 m
Statie Piata Verde T18,E1
aprox.
536 m
Piata Verde
aprox.
543 m
Liege
aprox.
572 m
Statie Divizia 9 Cavalerie/Stuparilor A40
aprox.
577 m
Divizia 9 Cavalerie
aprox.
577 m
Statie Piata Verde/Liege T17
aprox.
483 m
Statie Cimitirul Eroilor T14
aprox.
502 m
Statie Miresei E6
aprox.
693 m
Statie Ion Ionescu de la Brad T14
aprox.
1003 m
Statie Oituz T11, T17
aprox.
1576 m
Statie Bastion T11, T17
aprox.
1714 m
Statie Politia Jud. Timis T11, T17
aprox.
1751 m
Statie Baader T17
aprox.
1769 m
Statie Piata 700 T11, T13, T14, T17, T18
aprox.
1800 m
Statie Piata 700 T11, T14, T18
aprox.
1829 m
Torontalului
aprox.
693 m
Statie Torontal Tv4, Tv6
aprox.
694 m
Statie Matei Basarab Tv4, Tv6
aprox.
973 m
Statie Amforei Tramvai Linia 4,6
aprox.
1375 m
Cetatii
aprox.
1613 m
Statie Cetatii Tv4, Tv6 retur
aprox.
1633 m
Cetatii
aprox.
1707 m
Statie Cetatii Tv4, Tv6
aprox.
1714 m
Statie Piata 700 Tv1, Tv2, Tv4, Tv6
aprox.
1845 m
Statie Piata Libertatii TV1, TV2, Tv4, Tv6
aprox.
1847 m
Statie Piata Libertatii TV1, TV2, Tv4, Tv5
aprox.
1869 m
Statie Piata 700 Tv5
aprox.
1892 m
Spitalul de Copii
aprox.
1904 m
Statie Piata 700 Tv6
aprox.
1906 m
Hotel Continental
aprox.
1914 m
Gara de Est
aprox.
1486 m
Timisoara East Railway station area (en)
aprox.
1716 m
Kids Club Allegria
aprox.
375 m
Gradinita Program Prelungit Nr. 37
aprox.
445 m
Gradinita Program Prelungit Nr. 20
aprox.
453 m
Gradinita cu program prelungit nr. 20
aprox.
550 m
Gradinita Smart
aprox.
703 m
Gradinita Program Normal Nr. 3
aprox.
727 m
Gradinita nr. 27
aprox.
817 m
Gradinita Program Prelungit Nr. 27
aprox.
823 m
Gradinita particulara Children Care Center
aprox.
1100 m
Gradinita Program Prelungit Nr. 36
aprox.
1178 m
Gradinita nr. 36
aprox.
1234 m
Gradinita Program Normal Nr. 27
aprox.
1361 m
Gradinita Program Normal Nr. 4
aprox.
1386 m
Gradinita nr. 26
aprox.
1392 m
Grădinița nr. 26 Timișoara
aprox.
1401 m
Scoala Gimnaziala nr. 24
aprox.
929 m
Scoala Generala 24
aprox.
951 m
Scoala Generala Nr. 7 "Sfanta Maria"
aprox.
1010 m
Scoala Gimnaziala nr. 7 Sfanta Maria
aprox.
1010 m
Scoala Generala 26
aprox.
1073 m
Scoala Gimnaziala nr. 26
aprox.
1076 m
Grup Scolar Agricol "Iulian Dracea" Timisoara
aprox.
1246 m
Grup Scolar Agricol Iulian Dracea
aprox.
1257 m
Scoala Generala Nr. 18
aprox.
1271 m
Scoala Gimnaziala nr. 18
aprox.
1273 m
Clubul Sportiv Scolar Bega
aprox.
1347 m
Facultatea de Agronomie
aprox.
1458 m
Scoala Gimnaziala nr. 16
aprox.
1477 m
Scoala Generala nr 16 (Take Ionescu)
aprox.
1491 m
Colegiul Tehnic "Ion Mincu"
aprox.
1520 m
Biblioteca
aprox.
1369 m
Universitatea de Stiinte Agricole si Medicina Veterinara a Banatului
aprox.
1413 m
Facultatea de Arte Plastice
aprox.
1469 m
Facultatea de Arte
aprox.
1469 m
Universitatea de Stiinte Agricole si Medicina Veterinara a Banatului, Timisoara
aprox.
1606 m
Facultatea de Muzica (UVT)
aprox.
1824 m
Facultatea de Muzica
aprox.
1824 m
Universitatea de Medicina si Farmacie Victor Babes
aprox.
1865 m
U.M.F. Catedra de Farmacologie
aprox.
1874 m
Cladire a UMF Timisoara
aprox.
1884 m
Universitatea de Medicina
aprox.
1886 m
Centrul de Microchirurgie si Chirurgie Laparoscopica 'Pius Branzeu'
aprox.
1887 m
U.M.F. Medicină Dentară
aprox.
1931 m
Universitatea de Medicina si Farmacie Victor Babes
aprox.
1946 m
Profi City
aprox.
351 m
Auchan
aprox.
607 m
Lidl
aprox.
615 m
Penny Market
aprox.
634 m
Galeria 1
aprox.
648 m
Kapa Shopping Center
aprox.
655 m
Lidl Miresei
aprox.
663 m
Iulius Mall
aprox.
687 m
Profi City
aprox.
744 m
Minimarket Noroc
aprox.
950 m
Penny market
aprox.
963 m
Etti
aprox.
974 m
Profi City
aprox.
994 m
Carrefour Market
aprox.
1093 m
Mini-Market
aprox.
1379 m
Kappa Centrul Comercial
aprox.
655 m
Decathlon
aprox.
1829 m
Parcare privata
aprox.
319 m
Parcare privata
aprox.
385 m
Parcare privata
aprox.
430 m
Parcare
aprox.
440 m
Parcare
aprox.
469 m
Parcare
aprox.
482 m
Parcare privata
aprox.
554 m
Parcare
aprox.
574 m
Parcare
aprox.
575 m
Parcare privata
aprox.
588 m
Parcare pentru clienti cu plata
aprox.
588 m
Parcare
aprox.
610 m
Parcare
aprox.
620 m
Intrare parcare subterana Iulius Mall
aprox.
624 m
Parcare pentru clienti cu plata
aprox.
627 m
Parc
aprox.
102 m
Parc de joaca copii
aprox.
110 m
Parc
aprox.
415 m
Parc
aprox.
488 m
Parc pentru copii
aprox.
543 m
Parc
aprox.
553 m
Parc
aprox.
612 m
Parc
aprox.
718 m
Parc de joaca copii
aprox.
737 m
Parc
aprox.
745 m
Loc de joaca Jules Verne
aprox.
778 m
Parc de joaca copii
aprox.
838 m
Parc
aprox.
838 m
Parc
aprox.
871 m
Parcul Matei Basarab
aprox.
881 m
Teren sportiv
aprox.
696 m
Teren sportiv
aprox.
1013 m
Teren sportiv
aprox.
1016 m
Teren sportiv
aprox.
1017 m
Teren sportiv
aprox.
1060 m
Teren sportiv
aprox.
1080 m
Teren sportiv
aprox.
1083 m
Teren sportiv
aprox.
1135 m
Teren sportiv
aprox.
1252 m
Teren sportiv
aprox.
1301 m
Teren sportiv
aprox.
1319 m
Teren sportiv
aprox.
1331 m
Arena Viola
aprox.
1376 m
Teren sportiv
aprox.
1403 m
Teren sportiv
aprox.
1431 m
Piata Unirii
aprox.
1653 m
Piata Tepes Voda
aprox.
1735 m
Piata Libertatii
aprox.
1902 m
Piata Mircea Eliade
aprox.
1963 m
Farmacie
aprox.
334 m
Sensiblu
aprox.
447 m
Sensiblu
aprox.
715 m
Dona
aprox.
775 m
Vlavar Med
aprox.
818 m
Dona
aprox.
1036 m
Catena
aprox.
1067 m
Dacia
aprox.
1074 m
Richter
aprox.
1085 m
Helpnet
aprox.
1103 m
Farmacia Dacia
aprox.
1178 m
Remedio
aprox.
1370 m
Farmacia Dona
aprox.
1586 m
Farmacia Richter
aprox.
1653 m
Farmacie
aprox.
1656 m
Centrul Medical DALMED
aprox.
869 m
Policlinica Garleanu (en)
aprox.
906 m
Sal-Vet
aprox.
980 m
Cabinet Dr. Giurgiu Daniela
aprox.
1021 m
CABINETUL MEDICAL "BUNA VESTIRE"
aprox.
1208 m
BioClinica (en)
aprox.
1247 m
Clinica First Medical
aprox.
1338 m
Clinicile Noi (en)
aprox.
1470 m
Spitalul Municipal Clinicile Noi
aprox.
1480 m
Medcom CBS Hospital
aprox.
1523 m
Medicover
aprox.
1631 m
Municipal Hospital (under construction) (en)
aprox.
1647 m
Clinica de Chirurgie Orala si Maxilo-Faciala
aprox.
1682 m
Spitalul Militar de Urgenta Dr. Victor Popescu
aprox.
1763 m
Spitalul militar
aprox.
1763 m
Pizzeria Al Pacino
aprox.
170 m
Pizzeria Rebecca
aprox.
388 m
Fornetti
aprox.
410 m
Restaurant Tinecz
aprox.
412 m
Pizzeria Amedeea
aprox.
458 m
Filiberto Ristorante e Pizzeria
aprox.
503 m
Pizzaiolo
aprox.
510 m
NEON
aprox.
550 m
Restaurant Chinezesc Song Du
aprox.
585 m
Restaurant Casa Voastra
aprox.
605 m
Subway
aprox.
635 m
Almondo Food Court
aprox.
639 m
Restaurant Zorile
aprox.
644 m
3F
aprox.
656 m
KFC
aprox.
669 m
Lounge Cafe Dielli
aprox.
453 m
Starbucks
aprox.
713 m
Millenium Cafe
aprox.
733 m
Papillon
aprox.
1533 m
Van Graf KFe
aprox.
1542 m
Reciproc
aprox.
1604 m
Cuib d'Arte
aprox.
1604 m
1740 Music Cafe
aprox.
1680 m
Tucano Coffee Mexico
aprox.
1780 m
WellPlayed Gaming Lounge
aprox.
1791 m
Musetti
aprox.
1796 m
Spirit
aprox.
1817 m
Orlovi
aprox.
1905 m
Old House
aprox.
646 m
Club Bordeaux
aprox.
1019 m
Bierhaus
aprox.
1569 m
Jarvis
aprox.
1591 m
Drunken Rat
aprox.
1607 m
Rock House
aprox.
1626 m
Casino El Dorado
aprox.
1629 m
Grinette
aprox.
1670 m
Molly Malone's
aprox.
1691 m
Bibliotheka 2
aprox.
1760 m
Irish Pub
aprox.
1765 m
Beraria 700
aprox.
1831 m
Orlovi
aprox.
1902 m
Wake Up
aprox.
1905 m
Capsali
aprox.
1151 m
Bunker
aprox.
1569 m
D'arc
aprox.
1592 m
Mode
aprox.
1604 m
Cafe Colt
aprox.
1669 m
Nouveau
aprox.
1681 m
Eclipse
aprox.
1695 m
Arqa
aprox.
1759 m
Enoteca de Savoya
aprox.
1782 m
Art Club Cafe
aprox.
1817 m
MGM Bastion
aprox.
1831 m
Freshious
aprox.
1839 m
Curtea Berarilor
aprox.
1897 m
Alt Club
aprox.
1947 m
BCR
aprox.
372 m
Raiffeisen Bank
aprox.
414 m
Piraeus Bank
aprox.
426 m
Alpha Bank
aprox.
430 m
ING
aprox.
435 m
Banca Transilvania
aprox.
441 m
BRD
aprox.
453 m
Alpha Bank
aprox.
523 m
Raiffeisen Bank
aprox.
593 m
BRD
aprox.
606 m
UniCredit Bank
aprox.
614 m
BCR
aprox.
725 m
Banca Transilvania
aprox.
748 m
BCR
aprox.
818 m
BCR
aprox.
835 m
În ceea ce privește rețeaua de transport în comun, de menționat ar fi linia de autobuz 40, care face legătura cu centrul orașului, dar și linia autobuzului de tip expres 2, care ajunge și în Aradului, străbătând capitala Banatului de la nord la sud. Pasionații de ciclism nu au la dispoziție o rețea compactă de piste amenajate (așa ceva există, totuși, pe Calea Sever Bocu), dar pot folosi și traseele destinate șoferilor (sau chiar pietonilor).
În ceea ce privește învățământul preșcolar, de menționat ar fi, totuși, grădinițele "Giminni" (de pe Strada Carol Davila) și "Buburuza Veselă" (de pe Strada Ion Roată), precum și Școala Gimnazială Nr. 7 "Sfânta Maria" (de pe Strada Ion Ionescu de la Brad). La capitolul învățământ superior, Lipovei nu oferă, practic, oportunități pentru cei care ar dori să studieze în cartier; zona beneficiază, însă, de vecinătatea cu Aradului, unde se găsește o importantă instituție de învățământ superior, anume Universitatea de Științe Agricole și Medicină Veterinară a Banatului (de care ține Facultatea de Medicină Veterinară, dar și Facultatea de Tehnologia Produselor Alimentare). Mai jos poți vedea în detaliu ce unități de învățământ există în Lipovei:
Lipovei este, cu siguranță, unul dintre cartierele timișorene cel mai bine reprezentate în ceea ce privește oportunitățile de cumpărături. Astfel, pe lângă magazinele "de cartier" de care dispune acesta (printre care se numără și un Profi City), un avantaj deosebit este dat de faptul că în extrema sa sudică s-a constituit, în timp, o zonă comercială în toată puterea cuvântului. Astfel, în arealul format de străzile Divizia 9 Cavalerie și Aristide Demetriade pot fi găsite multiple destinații de cumpărături, printre care se numără două magazine de bricolaj (Praktiker și Dedeman), dar și Iulius Mall. Acest din urmă centru comercial, având o vechime de peste zece ani, include, în afară de numeroasele magazine din sfera de fashion (dar nu numai), și un hipermarket Auchan.
Ca și posesorii de autovehicule din celelalte cartiere timișorene, cei din Lipovei se pot interesa la sediul central al Primăriei orașului (de pe Bulevardul Constantin Diaconovici Loga, nr. 1) cu privire la procedura de închiriere a unui loc de parcare de la autoritățile locale.
La fel ca timișorenii din Aradului, cei din Lipovei au la dispoziție câteva locuri de joacă pentru copii, însă nu prea au opțiuni în materie de parcuri propriu-zise (Parcul Silistra și Parcul Strada Constructorilor fiind exemple aflate oarecum la limită) "“ asta în ciuda faptului că în această subdiviziune a orașului există ample zone verzi pretabile pentru asemenea amenajări. Acest dezavantaj este contrabalansat, pe de o parte, de proximitatea pădurii din nordul cartierului, care constituie o interesantă oportunitate de relaxare, cel puțin pe timp de weekend. Pe de altă parte, locuitorii acestei zone pot ajunge cu relativă ușurință în zona Cetate, unde, foarte aproape de "granița" cu Lipovei, se găsește Grădina Botanică a orașului de pe Bega. Află, mai jos, ce alte opțiuni de petrecere a timpului liber mai ai în Lipovei:
Comparativ cu învecinatul Aradului, cartierul Lipovei este ceva mai slab reprezentat când vine vorba de servicii medicale. Și locuitorii acestei zone a capitalei Banatului au acces, desigur, la o serie de cabinete medicale private "de cartier", cu diverse specializări. Singurul centru medical de mai mari dimensiuni din cartier este însă Policlinica "Regina Maria", din cadrul centrului comercial Iulius Mall; ocupând o suprafață de 1.100 de metri pătrați, aceasta oferă acces la peste 20 de specialități medicale, pentru adulți, dar și pentru copii. De precizat este că, deși nici în Lipovei nu se găsește niciun spital de stat, locuitorii cartierului au de câștigat de pe urma proximității zonei centrale a orașului, unde se află mai multe asemenea instituții de profil (printre acestea numărându-se și Spitalul Militar de Urgență "Dr. Victor Popescu").
În cazul în care îți plac preparatele cu specific pescăresc, în acest cartier vei găsi unul dintre resturantele renumite pentru meniul variat pe care îl oferă. Astfel, mergând pe Calea Sever Bocu, nr. 74, vei găsi restaurantul Pescada. De asemenea, o serie de fast-food-uri și restaurante, dacă te vei îndrepta spre zona comercială - Galeria 1. În apropierea ta se află Mall-ul Iulius Mall și Iulius Town, unde, cu siguranță ai posibiliatea să găsești ceva pe gustul tău. Aruncă o privire pe hartă și vezi unde vei găsi cel mai apropiat restaurant de viitoarea ta locuință.
În cazul în care vei locui în acest cartier, te afli într-o zonă cu multiple variante în ceea ce privește sucursalele bancare și ATM-uri. Vei găsi un bancomat de OTP Bank (pe str. Sf. Apostol Petru și Pavel, nr. 13), iar pe Calea Sever Bocu ai trei variante: un bancomat de Raiffeisen Bank, unul de BRD și o sucursală Alpha Bank. Deplasându-te spre magazinul Dedeman vei găsi un bancomat BCR (Str. Divizie 9 Cavalerie, nr. 66). Ai șansa să găsești și mai multe bancomate și sucursale la Iulius Mall - centru comercial care se află în apropiere. Consultă harta și află unde sunt localizate și alte bănci sau ATM-uri în zona de care ești interesat:
Înainte să pleci...
Ești sigur că ai văzut și aceste proprietăți?
255.162 €
Timișoara, Lipovei
4 camere
118,68 mp
186 mp teren
309.950 €
Județul Timiș, Dumbrăvița
4 camere
125 mp
310 mp teren
340.000 €
Timișoara, Lipovei
4 camere
135 mp
312 mp teren
319.990 €
Timișoara, Lipovei
5 camere
158 mp
283 mp teren
289.900 €
Județul Timiș, Dumbrăvița
4 camere
133 mp
307 mp teren
264.700 €
Timișoara, Lipovei
4 camere
118 mp
186 mp teren
Creează alertă
Salvează căutarea ca să primești pe email ultimele anunțuri publicate
Duplexuri cu 4+ camere de vânzare în zona Lipovei, Timișoara
Cere detalii prin email
*
*
*
*
Detaliile tale de contact vor fi partajate cu Foxfort
Preț total1.403.325 RON (275.372 €)
Costuri cu achiziția12.274 RON
Preț de achiziție1.391.051 RON
Costuri cu achiziția12.274 RON
Comision agenție Întreabă agenţia
Onorariu notarial10.187 RON
Taxă înscriere OCPI2.087 RON
Preț de achiziție1.391.051 RON
Preț locuință1.391.051 RON
TVA 0%Inclus în prețul cerut
Cost total226.376 RON (44.421 €)
Avans (15%)208.658 RON
Cost achitat în prima lună3.173 RON
Costuri cu achiziția14.545 RON
Cost achitat în prima lună3.173 RON
Comision analiză dosar
400 RON - 900 RON
Taxă evaluare imobil(până la)
900 RON
Rata lunară (variabilă)6.196 RON
Asigurare anuală imobil1.391 RON
Arhivă electronică102 RON
Poliță PAD130 RON
Asigurare de viață/lună Costul este variabil. În funcție de banca aleasă, procentul variază între 0.0259% și 0.035% din soldul creditului.
Costuri cu achiziția14.545 RON
Comision agenție Întreabă agenţia
Onorariu notarial10.187 RON
Taxă întabulare OCPI2.087 RON
Autentificare contract credit2.271 RON
Preț de achiziție1.391.051 RON
Preț locuință1.391.051 RON
TVA 0%Inclus în prețul cerut
Preț de achiziție1.391.051 RON
Preț locuință1.391.051 RON
TVA 0%
Inclus în prețul cerut
Avans minim784.616 RON
Credit pe 30 de ani606.436 RON
Cost achitat în prima lună
Taxa evaluare imobil(până la)
900 RON
Rata lunară (variabilă)4.261 RON
Depozit colateral12.783 RON
Comision de garantare FNGCIMM116 RON
Asigurare anuală imobil1.391 RON
Poliță PAD130 RON
Tarif arhivă electronică102 RON
Costuri adiționale1.531 RON + taxe notariale
Asigurare viață și complexă (opțională)Costul este variabil. În funcție de banca aleasă, procentul variază între 0.0259% și 0.035% din soldul creditului
Onorariu notarialconform tarif notarial
Taxă întabulare OCPI1.531 RON
i
Toate valorile de mai sus sunt estimative și nu reprezintă în mod obligatoriu costurile exacte pe care le veți primi de la companiile/instituțiile prin care veți încheia tranzacția.