SX444 Casa tip Duplex, Torontalului, Zona Metro 2

260.000 €

Torontalului, Timișoara

Nr. cam.:
4
Sup. utilă:
80 mp
Sup. teren:
330 mp
Tip prop.:
Duplex
  • • Locație aproximativă

Descriere casă

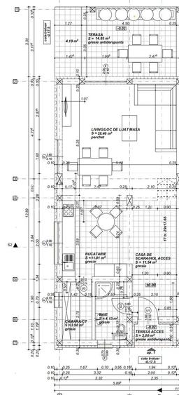
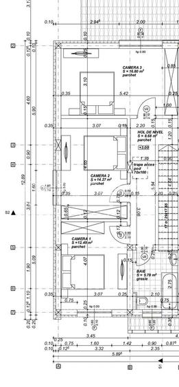
OXIA propune spre vanzare unitate in casa tip duplex in Timisoara, zona Torontalului (Metro 2), constructie P+E, cu o suprafata a terenului de 330 MP si o suprafata utila de 80 MP, plus terasa acoperita de 15 MP, compartimentata astfel: PARTER: Hol acces Bucatarie + living open space Camera tehnica Baie Terasa acoperita ETAJ: Hol 3 Dormitoare Baie Acces pod (pod de 30 MP cu inaltime de 1,90 m) Imobilul este construit din caramida porotherm de 25 cm, cu izolatie de 10 cm, tencuiala decorativa, izolatie acoperis cu spuma poliuretanica si acoperit cu tigla. Dispune de toate utilitatile. Proprietatea beneficiaza de amenajari moderne: ferestre PVC cu geam tripan Rehau, usi interioare PortaDoors, travertin, trepte din lemn masiv (stejar), pereti placati cu piatra decorativa, vopsea lavabila, parchet laminat, gresie si faianta. Confort termic asigurat de centrala proprie cu incalzire in pardoseala. Casa este pregatita pentru sisteme de climatizare (doua unitati). Spatiul exterior se preda amenajat cu gazon, aspersoare si sistem de irigare, foraj pentru gradina. Dispune de o anexa de 18 MP. PRET: 260 000 EURO (negociabil) + comisionul agentiei. Echipa noastra dedicata va ofera consultanta financiara si juridica pe tot parcursul tranzactiei, asigurandu-va o experienta fara griji. Pentru mai multe detalii sau pentru a programa o vizionare exclusiva, va rugam sa ne contactati la numarul de telefon . Cod anunt: SX444.
Citește mai mult Citește mai puțin
Centrală proprie Încălzire prin pardoseală 2 Parcări

Detalii casă

ID anunț: XBU1110JL Copiat! 229416935 Copiat!
Actualizat în: 16 Martie 2026
Suprafață desfășurată: 95 mp
Nr. bucătării: 1
Nr. băi: 2
Nr. terase: 1
Învelitoare acoperiș: Țiglă
An construcție: 2024 (Finalizată)
Regim înălțime: P+1E

Utilități

Destinație
Rezidențial
Pereți
Faianță Vopsea lavabilă
Podele
Gresie Parchet
Ușă intrare
PVC
Ferestre cu geam termopan
PVC
Contorizare
Apometre Contor gaz
Utilități
Curent Apă Canalizare CATV Gaze Telefon
Internet
Cablu Wireless
Amenajare străzi
Iluminat stradal Mijloace de transport în comun Asfaltate
Comision
standard

Disponibilitate proprietate:

Imediat

Puncte de interes

Mijloace transport
bus-station
Statie Metro E6
Stații autobuz aprox. 292 m
bus-station
Metro
Stații autobuz aprox. 343 m
bus-station
P.I.T.T.
Stații autobuz aprox. 752 m
airport
Aeroportul Utilitar Cioca
Aeroporturi aprox. 1205 m
Recreere
supermarket
Metro
Supermarket aprox. 360 m

Detalii despre preț și costuri

Costuri cu achiziția

Fără credit
Credit ipotecar
Noua casă

i

Costuri adiționale mai puțin știute la achiziție: taxe notariale, comisioane etc.

Insight premium disponibil după login

Proprietăți recomandate

Detalii de contact

OXIA The Real Estate Agency

Alexandrina Strajescu-Ghise Real Estate Advisor

OXIA The Real Estate Agency
PRO

Abonează-te la newsletter să fii primul care primește cele mai noi recomandări de proprietăți și sfaturi de la experți.

Feedback apel

CONTACT

Creează alertă

Salvează căutarea ca să primești pe email ultimele anunțuri publicate

Duplexuri cu 4+ camere de vânzare în zona Torontalului, Timișoara