LANDMARK ofera spre vanzare, COMISION 0%, casa duplex, TERMEN DE PREDARE MAI 2027, in zona TORONTAL - VOX, str Rubinstein,fiind compartimentat astfel:
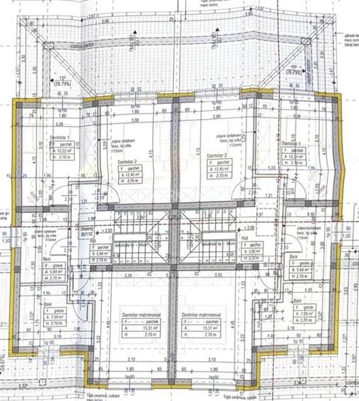
parter: hol acces, bucatarie inchisa,camara, baie, camera de zi cu iesire pe terasa;
etaj: hol acces, dormitor matrimonial cu baie proprie, 2 dormitoare, baie cu vana
Finisaje si utilitati: incalzire in pardoseala fie prin centrala proprie pe gaz, fie pompa de caldura si cu panouri fotovoltaice. Finisajele vor fi premium si se discuta cu viitorul proprietar.
Suprafata utila a casei este de 110 mp iar terenul are o suprafata totala de 365 mp . Proiectul este in faza de autorizatie, se vinde din acest stadiu, termen finisare si predare maxim Mai 2027. si se afla in apropiere de autobuz, zona comerciala, supermarket, fastfood, intersectie circulata, benzinarie, hotel. Pretul este de 285.000 euro intern: 210766.
Sediul central - Timișoara
Bulevardul Victor Babeș nr. 2, 300230, Timișoara, România
Tel: +40.374.40.44.98 / Fax: +40.256.401.179
Email: suport@imobiliare.ro
Luni - Vineri 08:00 - 20:00
Punct de lucru - București: Iride Business Park, Bld. Dimitrie
Pompeiu 9-9A, Clădirea B2B,
020335, Sector 2, București, România
CONTACT
Sediul central - Timișoara
Bulevardul Victor Babeș nr. 2, 300230, Timișoara, România
Tel: +40.374.40.44.98 / Fax: +40.256.401.179
Email: suport@imobiliare.ro
Luni - Vineri 08:00 - 20:00
Punct de lucru - București: Iride Business Park, Bld. Dimitrie
Pompeiu 9-9A, Clădirea B2B,
020335, Sector 2, București, România
Gradinita Cu Program Prelungit Nr. 9 Carla Pelz Mehala
aprox.
1201 m
Kids Club Allegria
aprox.
1250 m
Gradinita Program Prelungit Nr. 27
aprox.
1280 m
Gradinita nr. 27
aprox.
1285 m
Gradinita nr. 36
aprox.
1549 m
Gradinita Program Prelungit Nr. 36
aprox.
1582 m
Grădinița nr. 26 Timișoara
aprox.
1609 m
Gradinita nr. 26
aprox.
1615 m
Gradinita Smart
aprox.
1817 m
Gradinita Program Prelungit Nr. 20
aprox.
1934 m
Gradinita Biancaneve
aprox.
1959 m
Gradinita cu program prelungit nr. 20
aprox.
1970 m
Gradinita Program Prelungit Nr. 25
aprox.
1987 m
Biblioteca
aprox.
942 m
Universitatea de Stiinte Agricole si Medicina Veterinara a Banatului, Timisoara
aprox.
992 m
Universitatea de Stiinte Agricole si Medicina Veterinara a Banatului
aprox.
1004 m
Universitatea de Vest, Facultatea de teologie ortodoxa
aprox.
1896 m
Facultatea de Teologie
aprox.
1906 m
Facultatea de Agronomie
aprox.
1013 m
Grup Scolar Agricol "Iulian Dracea" Timisoara
aprox.
1211 m
SCOALA GIMNAZIALĂ NR.19 "AVRAM IANCU"
aprox.
1215 m
Grup Scolar Agricol Iulian Dracea
aprox.
1219 m
Scoala Generala 26
aprox.
1269 m
Scoala Gimnaziala nr. 26
aprox.
1283 m
Scoala Generala Nr. 18
aprox.
1440 m
Scoala Gimnaziala nr. 18
aprox.
1470 m
Scoala Generala 24
aprox.
1481 m
Scoala Gimnaziala nr. 24
aprox.
1487 m
Sc.Gen.nr.19 "Avram Iancu"
aprox.
1572 m
Scoala Gimnaziala nr. 19 Avram Iancu
aprox.
1573 m
Clubul Sportiv Scolar Bega
aprox.
1684 m
LICEU TEHNOLOGIC de Industrie Alimentara
aprox.
1842 m
Liceul Spiru Haret
aprox.
1896 m
Mini-Market
aprox.
407 m
Penny Market
aprox.
1007 m
Penny market
aprox.
1033 m
Profi City
aprox.
1058 m
Etti
aprox.
1071 m
Lidl Miresei
aprox.
1320 m
Lidl
aprox.
1361 m
Carrefour Market
aprox.
1395 m
Profi
aprox.
1453 m
Auchan
aprox.
1476 m
Profi City
aprox.
1491 m
Nova Tim
aprox.
1526 m
Selgros
aprox.
1645 m
Auchan
aprox.
1800 m
Profi City
aprox.
1805 m
Decathlon
aprox.
1554 m
Parcare
aprox.
399 m
Parcare
aprox.
434 m
Parcare
aprox.
636 m
Parcare
aprox.
675 m
Parcare
aprox.
935 m
Parcare
aprox.
959 m
Parcare
aprox.
1005 m
Parcare
aprox.
1042 m
Parcare
aprox.
1054 m
Parcare
aprox.
1239 m
Parcare privata
aprox.
1254 m
Parcare
aprox.
1261 m
Parcare privata
aprox.
1266 m
Parcare
aprox.
1299 m
Parcare
aprox.
1312 m
Parc de joaca copii
aprox.
654 m
Parc
aprox.
654 m
Parc de joaca copii
aprox.
841 m
Parc
aprox.
856 m
Parcul Ioan Nistor
aprox.
859 m
Parc Bucovina
aprox.
899 m
Parc
aprox.
945 m
Parcul din zona Matei Basarab
aprox.
946 m
Parc
aprox.
946 m
Parcul Matei Basarab
aprox.
951 m
Parc
aprox.
976 m
Parc
aprox.
1050 m
Parc
aprox.
1098 m
Piata Avram Iancu
aprox.
1241 m
Avram Iancu Square (en)
aprox.
1244 m
Teren sportiv
aprox.
888 m
Teren sportiv
aprox.
910 m
Teren sportiv
aprox.
1092 m
Teren sportiv
aprox.
1264 m
Teren sportiv
aprox.
1265 m
Teren sportiv
aprox.
1267 m
Teren sportiv
aprox.
1288 m
Teren sportiv
aprox.
1553 m
Arena Viola
aprox.
1661 m
Teren sportiv
aprox.
1728 m
Teren sportiv
aprox.
1732 m
Teren sportiv
aprox.
1796 m
Teren sintetic pentru fotbal
aprox.
1842 m
Teren sportiv
aprox.
1855 m
Municipal Hospital (under construction) (en)
aprox.
343 m
Medicover
aprox.
964 m
BioClinica (en)
aprox.
1115 m
Cabinet Dr. Giurgiu Daniela
aprox.
1578 m
Sal-Vet
aprox.
1613 m
CABINETUL MEDICAL "BUNA VESTIRE"
aprox.
1733 m
Policlinica Garleanu (en)
aprox.
1841 m
Sensiblu
aprox.
1005 m
Sensiblu
aprox.
1057 m
Vlavar Med
aprox.
1406 m
Dona
aprox.
1411 m
Catena
aprox.
1434 m
Richter
aprox.
1452 m
Farmacia Richter
aprox.
1504 m
Helpnet
aprox.
1507 m
Dacia
aprox.
1537 m
Farmacia Dona
aprox.
1549 m
Farmacia Dacia
aprox.
1582 m
Farmacie
aprox.
1749 m
Kastel Daro Tim - Chimicale si sticlarie laborator
aprox.
1942 m
Iris
aprox.
490 m
Pizzeria Giovanna
aprox.
723 m
Giovana
aprox.
723 m
Pizzeria Very Italian Pizza
aprox.
726 m
Restaurant Zorile
aprox.
841 m
NEON
aprox.
959 m
San Marzano
aprox.
1076 m
Fornetti
aprox.
1081 m
Filiberto Ristorante e Pizzeria
aprox.
1110 m
Restaurant Tinecz
aprox.
1194 m
Pizzeria Rebecca
aprox.
1196 m
Pizzaiolo
aprox.
1245 m
Pizza Plus (en)
aprox.
1309 m
Sidney
aprox.
1464 m
Antichi Sapori (en)
aprox.
1470 m
Old House
aprox.
858 m
Club Bordeaux
aprox.
1068 m
Casino El Dorado
aprox.
1981 m
Lounge Cafe Dielli
aprox.
1056 m
Starbucks
aprox.
1792 m
Capsali
aprox.
1695 m
BCR
aprox.
966 m
BRD
aprox.
1056 m
Raiffeisen Bank
aprox.
1059 m
Banca Transilvania
aprox.
1065 m
ING
aprox.
1066 m
UniCredit Bank
aprox.
1067 m
Alpha Bank
aprox.
1068 m
Piraeus Bank
aprox.
1070 m
Raiffeisen Bank
aprox.
1079 m
BCR
aprox.
1120 m
BRD
aprox.
1520 m
BCR
aprox.
1545 m
UniCredit Bank
aprox.
1565 m
Banca Transilvania
aprox.
1596 m
Raiffeisen Bank
aprox.
1606 m
La capitolul mijloace de transport în comun, această zonă a Timișoarei este deservită atât de autobuze (liniile 18, E1 și E6, care ajung pe Calea Torontalului), cât și de tramvaiele 4 și 10, care ajung pe Bulevardul Cetății. Spre desoebire de locuitorii altor cartiere, cei din Torontalului-Bucovina au la dispoziție mai multe piste special amenajate: una pe Calea Torontalului, una pe Bulevardul Cetății și alta pe Strada Crișan.
În ciuda faptului că este o zonă destul de populată, Torontalului-Bucovina nu stă prea bine la capitolul oportunități de educație. În ceea ce privește ciclul preșcolar, de menționat aici ar fi grădinița (și creșa) "Infants"™ Royal Club", ce-și are sediul pe Strada Basarabia, nr. 4. La capitolul școli, deficiențele cartierului sunt compensate de proximitatea zonei Circumvalațiunii, unde se găsesc mai multe asemenea instituții "“ printre care Școala Gimnazială Nr. 19 "Avram Iancu" (pe Bulevardul Cetății, nr. 24), dar și Școala Gimnazială Nr. 18 (pe Strada Amforei, nr. 6). La capitolul învățământ superior, timișorenii care locuiesc aici beneficiază de vecinătatea cu Aradului, unde se găsește Universitatea de Științe Agricole și Medicină Veterinară a Banatului (pe Calea Aradului, nr. 119) "“ de aceasta ține Facultatea de Medicină Veterinară, alături de Facultatea de Tehnologia Produselor Alimentare. Mai jos poți vedea în detaliu ce unități de învățământ există în Torontalului-Bucovina:
La capitolul oportunități de cumpărături, în Torontalului-Bucovina nu se găsește (ca în multe alte zone ale Timișoarei) nici un mall și nici un hipermarket. Prin urmare, locuitorii cartierului sunt deserviți, când vine vorba de nevoile de zi cu zi, de magazine de dimensiuni mai mici, printre care se numără și un Profi City, amplasat aproape de "granița" cu Aradului, mai exact pe Aleea Hotinului, nr. 2. De menționat este că această subdiviziune a orașului beneficiază de pe urma proximității zonei Aradului "“ una dintre cele mai apropiate unități comerciale de aici ar fi un supermarket din rețeaua Lidl (amplasat aproape de limita cu Circumvalațiunii). În plus, în nordul acestui cartier învecinat se găsește o zonă comercială mai amplă, din care fac parte un hipermarket Auchan, un magazin Selgros, un magazin de bricolaj Hornbach, dar și un Decathlon.
Dat fiind numărul relativ ridicat de blocuri din cartier, găsirea unui loc de parcare poate ridica mai multe probleme decât în Mircea cel Bătrân-Mehala, spre exemplu; acesta este motivul pentru care posesorii de autovehicule pot afla mai multe despre închirierea unui asemenea spațiu la sediul Primăriei (de pe Bulevardul Constantin Diaconovici Loga, nr. 1). Cumpărătorii de locuințe noi, pe de altă parte, ar trebui să se intereseze la dezvoltator cu privire la achiziția unui loc de parcare în cadrul respectivului ansamblu rezidențial.
Deși este, fără îndoială, o zonă destul de verde per ansamblu, Torontalului-Bucovina nu stă, totuși, foarte bine la capitolul parcuri propriu-zise. Practic, singurul de menționat din acest punct de vedere ar fi Parcul Bucovina, amplasat în estul cartierului, aproape de limita cu Aradului și Circumvalațiunii. Pentru locuitorii acestei subdiviziuni ale orașului, cele mai facile metode de a se menține activi ar fi mersul pe jos, joggingul și mersul cu bicicleta. Pasionații de sport pot apela, desigur, și la serviciile unei săli de fitness de cartier "“ de menționat este că pe Calea Torontalului (la nr. 61), se găsește și un club de squash. O altă opțiune, cel puțin pe timp de weekend, ar fi Baza Sportivă Textila, din Aradului, care include atât terenuri de sport, cât și o piscină publică (aceasta este situată pe Strada Martir Dan Carpin, nr. 5).
Cartierul Torontalului-Bucovina nu este foarte ofertant la capitolul servicii medicale. Aici pot fi găsite, desigur, câteva cabinete particulare, având diferite specializări, însă nu și un spital de stat sau un centru medical privat de dimensiuni mai mari. Aceste deficiențe sunt contrabalansate, însă, de vecinătatea cu Aradului și Circumvalațiunii. Pe strada Calea Aradului, nr. 113, spre exemplu, se găsește Spitalul (și Policlinica) Premiere "“ o unitate medicală ce oferă o gamă extinsă de specializări (printre care cardiologie, endocrinologie, chirurgie generală și plastică etc.). În plus, pe lângă cabinetele medicale existente în Circumvalațiunii, de aici se ajunge cu ușurință în centrul orașului, unde se află mai multe spitale de stat (printre care Spitalul Clinic Municipal de Urgență Timișoara). Pe harta de mai jos găsești localizarea exactă a spitalelor și clinicilor din zonă:
Pe lângă fast food-urile și cafenelele de cartier, găsim aici unul dintre restaurantele cu specific tradițional italienesc "“ L"™Osterietta. De asemenea, o opțiune pe care o poți lua în calcul în cazul unui prânz de business este și localul de la parterul clădirii de birouri Vox. Aruncă o privire pe hartă și vezi unde vei găsi cel mai apropiat restaurant de viitoarea ta locuință.
Găsești un bancomat și o sucursală Patria Bank în cadrul clădirii de business Vox Technology Park, de pe Calea Torontalului, nr. 69. De asemenea, tot pe strada Torontalului, la nr. 2A, vei mai găsi un CEC Bank, precum și un ING Bank. În cartierul învecinat, vei găsi și mai multe sucursale și ATM-uri de care ai nevoie. Consultă harta și află unde sunt localizate și alte bănci sau ATM-uri în zona de care ești interesat:
Înainte să pleci...
Ești sigur că ai văzut și aceste proprietăți?
260.000 €
Timișoara, Torontalului
4 camere
80 mp
330 mp teren
294.900 €
Timișoara, Torontalului
4 camere
180 mp
384 mp teren
279.000 €
Timișoara, Torontalului
4 camere
109 mp
270 mp teren
Creează alertă
Salvează căutarea ca să primești pe email ultimele anunțuri publicate
Duplexuri cu 4+ camere de vânzare în zona Torontalului, Timișoara
Cere detalii prin email
*
*
*
*
Detaliile tale de contact vor fi partajate cu Landmark Imobiliare
Preț total1.464.845 RON (287.489 €)
Costuri cu achiziția12.685 RON
Preț de achiziție1.452.160 RON
Costuri cu achiziția12.685 RON
Comision agenție Întreabă agenţia
Onorariu notarial10.507 RON
Taxă înscriere OCPI2.178 RON
Preț de achiziție1.452.160 RON
Preț locuință1.452.160 RON
TVA 0%Inclus în prețul cerut
Cost total236.065 RON (46.329 €)
Avans (15%)217.824 RON
Cost achitat în prima lună3.234 RON
Costuri cu achiziția15.007 RON
Cost achitat în prima lună3.234 RON
Comision analiză dosar
400 RON - 900 RON
Taxă evaluare imobil(până la)
900 RON
Rata lunară (variabilă)6.469 RON
Asigurare anuală imobil1.452 RON
Arhivă electronică102 RON
Poliță PAD130 RON
Asigurare de viață/lună Costul este variabil. În funcție de banca aleasă, procentul variază între 0.0259% și 0.035% din soldul creditului.
Costuri cu achiziția15.007 RON
Comision agenție Întreabă agenţia
Onorariu notarial10.507 RON
Taxă întabulare OCPI2.178 RON
Autentificare contract credit2.322 RON
Preț de achiziție1.452.160 RON
Preț locuință1.452.160 RON
TVA 0%Inclus în prețul cerut
Preț de achiziție1.452.160 RON
Preț locuință1.452.160 RON
TVA 0%
Inclus în prețul cerut
Avans minim845.820 RON
Credit pe 30 de ani606.341 RON
Cost achitat în prima lună
Taxa evaluare imobil(până la)
900 RON
Rata lunară (variabilă)4.260 RON
Depozit colateral12.780 RON
Comision de garantare FNGCIMM121 RON
Asigurare anuală imobil1.452 RON
Poliță PAD130 RON
Tarif arhivă electronică102 RON
Costuri adiționale1.592 RON + taxe notariale
Asigurare viață și complexă (opțională)Costul este variabil. În funcție de banca aleasă, procentul variază între 0.0259% și 0.035% din soldul creditului
Onorariu notarialconform tarif notarial
Taxă întabulare OCPI1.592 RON
i
Toate valorile de mai sus sunt estimative și nu reprezintă în mod obligatoriu costurile exacte pe care le veți primi de la companiile/instituțiile prin care veți încheia tranzacția.