Vila moderna 6 camere 200 mp utili Pipera M Millo

475.000 €

Voluntari, Județul Ilfov

Nr. cam.:
6
Sup. utilă:
200 mp
Sup. teren:
120 mp
Tip prop.:
Duplex
  • • Comision 0%
  • • Locație aproximativă

Descriere casă

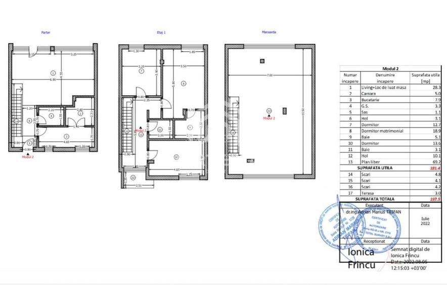
Va propunem spre vanzare o vila moderna arhitectural si functionalitate ideala pentru familie, cu o buna impartire a spatiilor la interior, terasa, curte 60 mp si 4 locuri de parcare - situata in Pipera - Matei millo, cu acces imediat in str Popasului - A3. Proprietatea are o suprafata de 200 mp utili - Parter+ etaj+ mansarda si este compusa din 6 camere si 4 bai cu 60 mp de curte privata. Compartimentare: PARTER: suprafata utila de 54 mp compus din: hol intrare living cu dining de 28,3 mp bucatarie inchisa de 8 mp camara de 5 mp grup sanitar de 3,3 mp ETAJ in suprafata utila de 80 mp compus din: dormitor matrimonial 19 mp + baie proprie 5 mp 2 dormitoare secundare de 16 mp si 12,7 mp baie secundara de 3 mp MANSARDA openspace 65 mp : dormitor cu SPA si Sauna. Dotari si facilitati: dotari si finsaje premium la alegere pompa de caldura incalzire in pardoseala tâmplărie PVC cu geam Tripan calitate superioara automatizare: caldura, poarta - controlate din smartphone usa de intrare metalica antiefractie cu luminator optional panouri fotovoltaice pereti caramida poroterm 25 cu polistiren 10 cm si interioara vata minerala 5cm si rigips. PARCARE: 4 locuri *Finisajele prezentate in poze sunt cu titlu informativ, finisajele la interior vor fi finalizate intr un interval de 3 luni de la semnarea precontractului. Vila poate fi achizitionata si la stadiul de gri la pretul de 420 000 Euro. Situata intr o zona de mare interes, in proximitate se gasesc centre comerciale, supermarketuri, sali de sport (World Class Planet Sport cu bazin de inot) si restaurante in imediata apropiere - Lemon Park, Plaza Pipera, Baneasa Shopping City, Hornbach, etc - unitati educationale si de invatamant: gradinite de stat si private; scoli de stat si private; - conectare rapida la A3- conectare rapida cu zona de business din NOrdul Bucurestiului, A0 si centura Bucuresti Pentru mai multe detalii sau vizionare nu ezitati sa ma sunati, Rosana Oprea
Citește mai mult Citește mai puțin
Alte metode electrice Centrală proprie Încălzire prin pardoseală 2 Parcări

Detalii casă

ID anunț: XD0M1122M Copiat! 275432371 Copiat!
Actualizat în: 14 Aprilie 2026
Suprafață construită: 220 mp
Nr. bucătării: 1
Nr. băi: 4
Nr. terase: 1
An construcție: 2022 (Finalizată)
Structură rezistență: Cărămidă
Regim înălțime: P+2E

Utilități

Utilități
Curent Apă Canalizare Gaze
Comision
0%

Puncte de interes

Mijloace transport
bus-station
statia cocorilor
Stații autobuz aprox. 1771 m
bus-station
Statia Escalei, linia 682
Stații autobuz aprox. 1849 m
bus-station
Statia Ciuca Stefan, linia 682
Stații autobuz aprox. 1946 m
tram-station
Capat Pasaj Colentina linia:21
Stații tramvai aprox. 1961 m
Școală
school
Sediu al scolii generale cu cls. I-VIII, nr 1- oras Voluntari
Școli aprox. 1119 m
school
Gradinita
Școli aprox. 1302 m
kindergarten
Echilibria 1
Gradinițe aprox. 1393 m
school
Gradinita Happy Univers
Școli aprox. 1459 m
Recreere
sports-ground
Teren fotbal
Terenuri sport aprox. 337 m
sports-ground
Teren sportiv
Terenuri sport aprox. 1198 m
park
Parcul de Interes public Pipera- oras VOLUNTARI
Parcuri aprox. 1345 m
restaurant
Restaurant
Restaurant aprox. 1837 m

Detalii despre preț și costuri

Costuri cu achiziția

Fără credit
Credit ipotecar
Noua casă

i

Costuri adiționale mai puțin știute la achiziție: taxe notariale, comisioane etc.

Insight premium disponibil după login

Proprietăți similare

Duplex cu 4 camere în Voluntari
430.000 €
Județul Ilfov, Voluntari
4 camere
220 mp
400 mp teren
Duplex cu 5 camere în Voluntari
450.000 €
Județul Ilfov, Voluntari
5 camere
210 mp
300 mp teren
Duplex cu 5 camere în Nord-Est
492.200 € + TVA
Județul Ilfov, Voluntari
5 camere
285 mp
240 mp teren

Detalii de contact

SMART ESTATES

Rosana Oprea SENIOR BROKER

SMART ESTATES
PRO

Abonează-te la newsletter să fii primul care primește cele mai noi recomandări de proprietăți și sfaturi de la experți.

CONTACT

Creează alertă

Salvează căutarea ca să primești pe email ultimele anunțuri publicate

Duplexuri cu 4+ camere de vânzare în Voluntari, Județul Ilfov