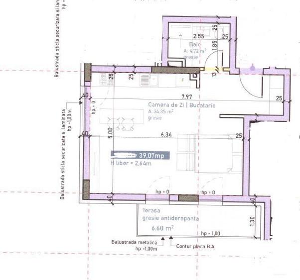
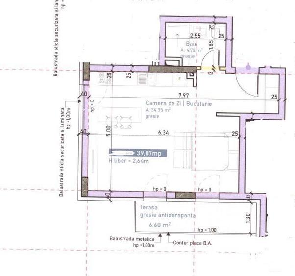
Apartament cu 1 camera 39mp utili bloc nou Intre Lacuri

109.396 €

Între Lacuri, Cluj-Napoca

Nr. cam.:
1
Sup. utilă:
39,07 mp
Etaj:
1 / 5
An constr.:
2026 (În construcție)
  • • Locație aproximativă

Descriere apartament

Bling ofera spre vanzare apartament cu 1 camera 39mp utili plus 6.55mp balcon cu posibilitate de modificare la 2 camere. Apartamentul face parte dintr-un ansamblu rezidential de 10 blocuri cu 340 de apartamente construite pe un teren de 4690 mp de spații verzi, acces securizat, locuri de joaca, servicii de administrare și mentenanța, spațiu pietonal generos și locuri de parcare pentru rezidenți subterane si exterioare. Apartamenul beneficiaza de dotari premium, precum incalzire prin pardoseala, centrala termica, uși antiefractie, tamplarie marca Rehau sau similar, marmura casa scarii. Cladirile din ansamblul nostru au fundații cu radieri, structura pe stalpi și grinzi, intre etaje placi din beton armat monolit și invelitoare tip terasa. Confortul termic și fonic este asigurat de pereții exteriori și pereții de compartimentare dintre unitațile locative care sunt din caramida (25cm) cat și de sistemul termoizolator de 15cm. Compartimentarea este open space, apartamentul fiind compus din Living cu bucatarie si nisa de dormit(cu posibilitate de separare dormitorului ) , baie si balcon. Apartamentul se preda la stadiul de SEMIFINISAT cu sapa autonivelanta elicopterizata , pereti gletuiti , instalatiile electrice si sanitare trase la pozitie , usa la intrare si balcon finisat. Avansul minim pentru apartament este de 30% la antecontract si diferenta pana in ianuarie 2026 la iesirea CF-ului. Apartamentul se poate cumpara si cu credit ipotecar la finalizarea constructiei! Suplimentar se poate achizitiona un loc de parcare la subteran la suma de 12.000 euro +TVA Pretul apartamentului si al parcarii este FIX si se adauga TVA de 9%! id extern: P6771
Citește mai mult Citește mai puțin
Nemobilat 1 Balcon / Terasă / Logie Curte Centrală proprie

Detalii apartament

ID anunț: XE7D10469 Copiat! 238985681 Copiat!
Actualizat în: 09 Martie 2026
Nr. bucătării: 1
Nr. băi: 1
Structură rezistență: Cărămidă
Tip imobil: Bloc de apartamente
Regim înălțime: D+P+5E

Utilități

Destinație
Rezidențial
Facilități imobil
Videointerfon Lift
Ușă intrare
Metal
Izolații termice
Exterior
Amenajare străzi
Asfaltate Iluminat stradal Mijloace de transport în comun
Comision
2%+TVA

Disponibilitate proprietate:

imediat

Puncte de interes

Mijloace transport
bus-station
Statia Iulius Mall Vest
Stații autobuz aprox. 103 m
bus-station
Statia Iulius Mall, Liniile 24,34,48, 25
Stații autobuz aprox. 110 m
bus-station
Iulius Mall Est
Stații autobuz aprox. 155 m
tram-station
Statia Bai Someseni, Linia 8
Stații tramvai aprox. 1884 m
Școală
kindergarten
Gradinita "Micul Print"
Gradinițe aprox. 213 m
kindergarten
Gradinita Micul Print
Gradinițe aprox. 213 m
school
Univers "T" - Cladirea 2
Școli aprox. 229 m
university
UBB Stiinte Economice si Gestiunea Afacerilor
Universități aprox. 366 m
Recreere
park
Iulius Park
Parcuri aprox. 103 m
supermarket
Iulius Mall
Supermarket aprox. 176 m
sports-ground
Teren sportiv
Terenuri sport aprox. 271 m
public-square
Piata Ira
Piețe publice aprox. 1475 m

Detalii despre preț și costuri

Prețul pe piață

Preț cerut: 109.396 €

Preț min. zonă
Preț max. zonă

84% dintre proprietățile similare ca zonă și nr. camere au prețul cerut mai mare. mai multe...

Bine de știut: prețul unei proprietăți este influențat și de alte caracteristici, cum ar fi: vechime, localizare, vecinătăți, suprafață, compartimentare, amenajări, dotări, etc. mai puțin...

Insight premium disponibil după login

Costuri cu achiziția

Fără credit
Credit ipotecar
Noua casă

i

Costuri adiționale mai puțin știute la achiziție: taxe notariale, comisioane etc.

Insight premium disponibil după login

Proprietăți recomandate

Detalii de contact

Bling Imobiliare

Nica Vlad Master Broker

Bling Imobiliare

Abonează-te la newsletter să fii primul care primește cele mai noi recomandări de proprietăți și sfaturi de la experți.

CONTACT

Creează alertă

Salvează căutarea ca să primești pe email ultimele anunțuri publicate

Garsoniere de vânzare în zona Între Lacuri, Cluj-Napoca