Studio spațios într-un imobil tip boutique zona Palazu Mare

84.700 €

Palazu Mare, Constanța

Nr. cam.:
1
Sup. utilă:
43,81 mp
Etaj:
1 / 3
An constr.:
2025 (În construcție)
  • • Comision 0%
  • • Locație aproximativă

Descriere apartament

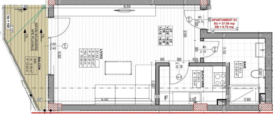
Acest studio inteligent compartimentat, cu o suprafață utilă de 43,81 mp (din care 6,78 mp balcon), reprezintă o alegere ideală pentru cei care caută liniște, confort și funcționalitate. Situat la etajul 1, locuinta oferă: - Living generos de 26 mp - Bucătărie închisă - Baie luminoasă și bine proporționată - Balcon ideal pentru relaxare Studio face parte dintr-un bloc tip boutique cu regim de înălțime P+3, amplasat într-o zonă liniștită din Palazu Mare, pe strada Liviu Rebreanu. Imobilul este dotat cu lift și include doar 9 apartamente, ceea ce asigură un cadru intim și bine organizat. - Termen de finalizare: aprilie 2026 Apartamentele se predau finisate la alb, cu: - Încălzire în pardoseală - Instalații electrice și sanitare pe poziție - Pereți gletuiți - Ușă metalică de intrare - Izolație exterioară - Loc de parcare inclus în preț Un proiect modern, cu un număr restrâns de unități locative, ideal pentru cei care apreciază confortul, discreția și accesul facil la toate facilitățile urbane. ** Prețul afișat include TVA 21%.
Citește mai mult Citește mai puțin
Confort lux Decomandat 1 Balcon / Terasă / Logie Centrală proprie Bine întreținut (Bună) Zonă de litoral

Detalii apartament

ID anunț: X44M1018O Copiat! 264671608 Copiat!
Actualizat în: 23 Aprilie 2026
Suprafață construită: 55 mp
Nr. bucătării: 1
Nr. băi: 1
Structură rezistență: data_properties.building_structure.BCA
Tip imobil: Bloc de apartamente
Regim înălțime: P+3E

Utilități

Destinație
Rezidențial
Ușă intrare
Metal
Izolații termice
Exterior
Ferestre cu geam termopan
Aluminiu
Facilități imobil
Lift
Utilități
Curent Apă Canalizare Gaze
Amenajare străzi
Asfaltate Iluminat stradal Mijloace de transport în comun
Comision
0%

Certificat energetic:

Clasa energetică: A

Puncte de interes

Mijloace transport
bus-station
Statia Carrefour, autobuzele 100C, 43C
Stații autobuz aprox. 850 m
bus-station
Carrefour [43C 100C]
Stații autobuz aprox. 910 m
bus-station
Sere[3 43C 100C]
Stații autobuz aprox. 1167 m
bus-station
Sere[3 43C 100C]
Stații autobuz aprox. 1275 m
Școală
school
Scoala Nr. 14
Școli aprox. 1406 m
school
Școala cu Clasele I-VIII Nr.14
Școli aprox. 1409 m
kindergarten
Gradinita Nr.39
Gradinițe aprox. 1410 m
university
Baza nautica UMC
Universități aprox. 1444 m
Recreere
supermarket
Carrefour
Supermarket aprox. 697 m
park
Parc
Parcuri aprox. 1509 m
restaurant
Taverna Sarbului
Restaurant aprox. 1645 m
pub
Phoenix Pub
Pub aprox. 1977 m

Detalii despre preț și costuri

Prețul pe piață

Preț cerut: 84.700 €

Preț min. zonă
Preț max. zonă

63% dintre proprietățile similare ca zonă și nr. camere au prețul cerut mai mare. mai multe...

Bine de știut: prețul unei proprietăți este influențat și de alte caracteristici, cum ar fi: vechime, localizare, vecinătăți, suprafață, compartimentare, amenajări, dotări, etc. mai puțin...

Insight premium disponibil după login

Costuri cu achiziția

Fără credit
Credit ipotecar
Noua casă

i

Costuri adiționale mai puțin știute la achiziție: taxe notariale, comisioane etc.

Insight premium disponibil după login

Proprietăți recomandate

Detalii de contact

Abonează-te la newsletter să fii primul care primește cele mai noi recomandări de proprietăți și sfaturi de la experți.

CONTACT

Creează alertă

Salvează căutarea ca să primești pe email ultimele anunțuri publicate

Garsoniere de vânzare în zona Palazu Mare, Constanța