2

Studio Dublu Zona Cismea Lac Siutghiol

59.800 € + TVA

Tomis Nord, Constanța

Nr. cam.:
1
Sup. utilă:
38 mp
Etaj:
2 / 11
An constr.:
2025 (Proiect)
  • • Comision 0%
  • • Locație exactă

Descriere apartament

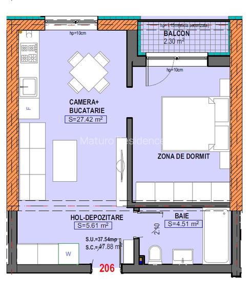
MATURO LAKE RESIDENCES Acasă, înconjurat de natura, Acasa inseamna siguranta, liniste si pace! Maturo Lake va propune spre vanzare urmatoarele imobile: Maturo Lake este un nou proiect marca Maturo Residences situat in zona Cismea, Lac Siutghiol, la doi pasi de lac, la cinci minute de Campusul Universitar Ovidius si la doar zece minute de plaja si statiunea Mamaia, ce defineste un stil de viata nou,departe de zgomotul si aglomeratia orasului, oferind linistea si intimitatea specifica zonei respective cat si o vedere panoramica asupra lacului. Structurat pe 11 etaje, insumand un numar total de 135 de imobile in prima faza a proiectului. Scopul nostru este de a ne diferentia prin CALITATE, ATENTIE la detalii si multiple BENEFICII oferite clientilor nostrii! Apartamente cu 1 cameră Disponibil cu o suprafata de 47,88 mp construiti si o suprafata utila de 37,54 mp si un balcon de 2,30 mp , proiectate inteligent pentru a oferi spațiu, lumină și funcționalitate — ideale atât pentru locuire, cât și pentru investiție. Compartimentare decomandată, balcon sau terasă spațioasă, loc de parcare subteran sau suprateran, priveliște către lac sau spre zona verde a ansamblului. Prețul este de :59900 EURO+TVA
Citește mai mult Citește mai puțin
Confort lux Decomandat Nemobilat 1 Balcon Grădină Piscină Curte comună Centrală proprie Convector gaz Încălzire prin pardoseală Renovat Zonă de litoral

Detalii apartament

ID anunț: XBMK0000V Copiat! 271413062 Copiat!
Actualizat în: 13 Februarie 2026
Suprafață utilă totală: 40 mp
Suprafață construită: 48 mp
Nr. bucătării: 1
Nr. băi: 1
Structură rezistență: Beton
Tip imobil: Bloc de apartamente
Regim înălțime: S+P+11E

Utilități

Destinație
Rezidențial
Pereți
Vopsea lavabilă
Ușă intrare
Metal
Izolații termice
Exterior
Ferestre cu geam termopan
PVC
Contorizare
Contor gaz Apometre Contor căldură
Diverse
Senzor de fum
Alte spații utile
Terasă
Dotări imobil
Spații agrement Lift Interfon Acoperiș SPA
Utilități
CATV Gaze Telefon Canalizare Curent Apă
Acces internet
Cablu Fibră optică Wireless
Servicii imobil
Supraveghere video Administrare
Amenajare străzi
Asfaltate
Comision
0%

Certificat energetic:

Clasa energetică: A

Alte detalii:

Detalii ansamblu:
Construcție nouă, lift modern, spații verzi amenajate, loc de joacă pentru copii, vecinătate civilizată și infrastructură completă. Apartamentele sunt decomandate, eficiente energetic, cu spații generoase de depozitare, ferestre mari și terase aerisite.
Încălzire în pardoseală, tâmplărie premium și izolație termică superioară. Posibilitate de personalizare a finisajelor.

Puncte de interes

Mijloace transport
bus-station
Statia Andrei; Linia ME
Stații autobuz aprox. 114 m
bus-station
Statia Casino; Linia ME
Stații autobuz aprox. 418 m
bus-station
Statia Iaki; Linia ME
Stații autobuz aprox. 501 m
bus-station
Statia Melody; Linia ME
Stații autobuz aprox. 784 m
Școală
kindergarten
Gradinita Nr.39
Gradinițe aprox. 1909 m
school
Scoala Nr. 14
Școli aprox. 1958 m
school
Școala cu Clasele I-VIII Nr.14
Școli aprox. 1972 m
Recreere
park
Parc
Parcuri aprox. 73 m
sports-ground
Teren sportiv
Terenuri sport aprox. 84 m
restaurant
Restaurant Vatra Pescareasca
Restaurant aprox. 123 m
cafe
Cafe Del Mar Mamaia
Cafenea aprox. 693 m

Detalii despre preț și costuri

Prețul pe piață

Preț cerut: 59.800 €

Preț min. zonă 22.500 €
Preț max. zonă 83.000 €

89% dintre proprietățile similare ca zonă și nr. camere au prețul cerut mai mare. mai multe...

Bine de știut: prețul unei proprietăți este influențat și de alte caracteristici, cum ar fi: vechime, localizare, vecinătăți, suprafață, compartimentare, amenajări, dotări, etc. mai puțin...

Costuri cu achiziția

Fără credit
4.808 RON
Credit ipotecar
6.134 RON
Noua casă
509 RON+ taxe notariale

i

Costuri adiționale mai puțin știute la achiziție: taxe notariale, comisioane etc.

Maturo Lake Residences

Maturo Lake Residences

Maturo Lake Residences - Acasă, înconjurat de natură. Construit la doi pași de lacul Siutghiol, într-un cadru natural deosebit, ansamblul rezidențial Maturo Lake Residences oferă liniștea și frumusețea naturii chiar la ușa casei tale. Aici te bucuri, zi de zi, de aer curat, de spații verzi generoase și de un mediu relaxant, ferit de agitația orașul...

Vezi detalii ansamblu

Proprietăți similare

Garsonieră decomandată în Tomis Nord
59.800 € + TVA
Constanța, Tomis Nord
1 camere
38 mp
Etaj 1
Garsonieră decomandată în Tomis Nord
59.800 € + TVA
Constanța, Tomis Nord
1 camere
37 mp
Etaj 2
Garsonieră decomandată în Tomis Nord
59.800 € + TVA
Constanța, Tomis Nord
1 camere
37 mp
Etaj 3

Detalii de contact

Maturo Residences

Administrator

Maturo Residences

Abonează-te la newsletter să fii primul care primește cele mai noi recomandări de proprietăți și sfaturi de la experți.

CONTACT

Creează alertă

Salvează căutarea ca să primești pe email ultimele anunțuri publicate

Garsoniere de vânzare în zona Tomis Nord, Constanța