4

Vanzare STUDIO-DEZVOLTATOR

70.543 €

Dobroești, Județul Ilfov

Nr. cam.:
1
Sup. utilă:
42 mp
Etaj:
1 / 8
An constr.:
2025
  • • Comision 0%
  • • Locație exactă

Descriere apartament

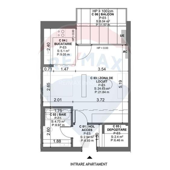
Vânzare studio în complex nou-Dobroești, finalizare în septembrie 2026 Descoperă noul tău cămin într-un complex rezidențial modern, aflat în plină dezvoltare, situat strategic în comuna Dobroești, Ilfov, o zona tot mai căutată pentru locuit! Studio-uri disponibile, cu o suprafață de 42 metri pătrați, compartimentare eficientă cu bucătărie open-space și predare la cheie, conform randarilor prezentate. Locuințele dispun de încălzire în pardoseală, finisaje de calitate superioară și urmează a fi livrate în septembrie 2026! Ansamblul este alcătuit din 3 tronsoane (în construcție), fiecare cu identitate proprie: Tronson A – Galben Tronson B – Portocaliu Tronson C – Verde Localizare este excelentă, complexul se află în imediata apropiere a Penny Dobroești și BDI Sport Arena, la doar 10 minute cu mașina de: Dragonul Roșu, Metrou Pantelimon sau Parcul Morarilor. Preț: de la 58.300 €+ 21% TVA Parcare subterană disponibilă Pozele sunt cu titlu de prezentare Acesta este locul ideal pentru cei care doresc confort, acces rapid către oraș și un mediu modern de viață. Sună și află mai multe detalii despre viitoarea ta locuință!
Citește mai mult Citește mai puțin
Confort 1 Decomandat Parțial mobilat 1 Balcon / Terasă / Logie Calorifere Centrală imobil

Detalii apartament

ID anunț: XE3D100PI Copiat! 268659947 Copiat!
Actualizat în: 12 Mai 2026
Suprafață construită: 45 mp
Nr. băi: 1
Structură rezistență: Beton
Tip imobil: Bloc de apartamente
Regim înălțime: P+8E

Utilități

Pereți
Faianță Vopsea lavabilă
Podele
Gresie Parchet
Ușă intrare
Metal
Uși interior
Lemn
Contorizare
Apometre
Bucătărie
Parțial mobilată Parțial utilată
Facilități imobil
Acoperiș Interfon
Amenajare străzi
Iluminat stradal
Comision
0%

Puncte de interes

Mijloace transport
bus-station
Pantelimon
Stații autobuz aprox. 1176 m
train-station
Statia CFR Pantelimon
Stații tren aprox. 1183 m
train-station
p.o. Pantelimon Sud
Stații tren aprox. 1610 m
bus-station
Pantelimon Sud
Stații autobuz aprox. 1613 m
Școală
school
Școala generală nr.1
Școli aprox. 1943 m
Recreere
supermarket
Dragonul Rosu 5
Supermarket aprox. 1233 m
mall
Dragonul Rosu 2
Mall aprox. 1443 m
park
Parc
Parcuri aprox. 1456 m
sports-ground
Teren sportiv
Terenuri sport aprox. 1776 m

Detalii despre preț și costuri

Prețul pe piață

Preț cerut: 85.357 €

Preț min. zonă
Preț max. zonă

i

Proprietate cu prețul cerut în afara intervalului mai multe...

Posibile explicații pentru faptul că prețul proprietății este peste cel maxim: imobil nou cu suprafață mare, are dotări și finisaje de lux.
Bine de știut: prețul unei proprietăți este influențat și de alte caracteristici, cum ar fi: vechime, localizare, vecinătăți, suprafață, compartimentare, amenajări, dotări, etc.
Insight premium disponibil după login

Costuri cu achiziția

Fără credit
Credit ipotecar
Noua casă

i

Costuri adiționale mai puțin știute la achiziție: taxe notariale, comisioane etc.

Insight premium disponibil după login

Proprietăți similare

Garsonieră decomandată în Dobroești
57.789 €
Județul Ilfov, Dobroești
1 camere
42 mp
Etaj 1 / 5
Garsonieră decomandată, mobilată în Dobroești
61.564 €
Județul Ilfov, Dobroești
1 camere
42 mp
Etaj 1 / 1
Garsonieră decomandată, mobilată în Dobroești
61.564 €
Județul Ilfov, Dobroești
1 camere
42 mp
Parter / 1

Detalii de contact

RE/MAX Innovation

Ana-Maria Berceanu Sales Associate

RE/MAX Innovation
PRO

Abonează-te la newsletter să fii primul care primește cele mai noi recomandări de proprietăți și sfaturi de la experți.

CONTACT

Creează alertă

Salvează căutarea ca să primești pe email ultimele anunțuri publicate

Garsoniere noi de vânzare în Dobroești, Județul Ilfov