3

Vanzare STUDIO-DEZVOLTATOR

50.880 €

Dobroești, Județul Ilfov

Nr. cam.:
1
Sup. utilă:
42 mp
Etaj:
Parter / 1
An constr.:
2025 (Proiect)
  • • Locație exactă

Descriere apartament

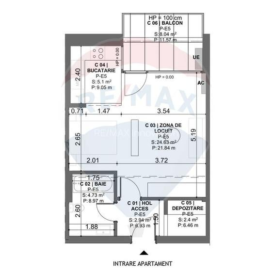
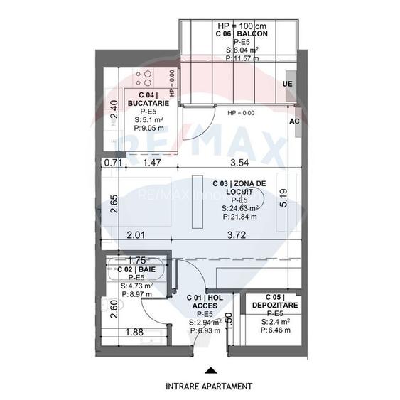
Situat strategic in comuna Dobroesti (jud. Ilfov), ansamblul redefineste standardele vietii moderne intr-o zona in plina dezvoltare. Complexul rezidential este alcatuit din 3 tronsoane aflate in prezent in constructie, fiecare avand o identitate proprie, evidentiata si prin culoare: Tronsonul A - galben, Tronsonul B - portocaliu, iar Tronsonul C - verde. Ansamblul va cuprinde apartamente elegante de tip studio, 2 si 3 camere, predate complet finisate (,,la cheie"). Locuinte finalizate conform randarilor prezentate, gata de mutare la termen pana in septembrie 2026.
Citește mai mult Citește mai puțin
Confort 1 Decomandat Mobilat Parțial mobilat 1 Balcon / Terasă / Logie Aer condiționat Calorifere Centrală imobil

Detalii apartament

ID anunț: XE3D100R9 Copiat! 270555761 Copiat!
Actualizat în: 03 Octombrie 2025
Suprafață construită: 45 mp
Nr. bucătării: 1
Nr. băi: 1
Structură rezistență: Beton
Tip imobil: Bloc de apartamente
Regim înălțime: D+P+1E

Utilități

Pereți
Faianță Vopsea lavabilă
Podele
Gresie
Ușă intrare
Metal Parchet
Uși interior
Lemn
Ferestre cu geam termopan
Aluminiu
Contorizare
Apometre
Bucătărie
Parțial mobilată Parțial utilată
Alte spații utile
Debara
Facilități imobil
Lift Interfon Acoperiș
Utilități
Curent Apă Canalizare Gaze
Amenajare străzi
Asfaltate Iluminat stradal Mijloace de transport în comun
Comision
standard

Disponibilitate proprietate:

Imediat

Puncte de interes

Mijloace transport
bus-station
Pantelimon
Stații autobuz aprox. 1176 m
train-station
Statia CFR Pantelimon
Stații tren aprox. 1183 m
train-station
p.o. Pantelimon Sud
Stații tren aprox. 1610 m
bus-station
Pantelimon Sud
Stații autobuz aprox. 1613 m
Școală
school
Școala generală nr.1
Școli aprox. 1943 m
Recreere
supermarket
Dragonul Rosu 5
Supermarket aprox. 1233 m
mall
Dragonul Rosu 2
Mall aprox. 1443 m
park
Parc
Parcuri aprox. 1456 m
sports-ground
Teren sportiv
Terenuri sport aprox. 1776 m

Detalii despre preț și costuri

Prețul pe piață

Preț cerut: 50.880 €

Preț min. zonă 43.293 €
Preț max. zonă 70.300 €

82% dintre proprietățile similare ca zonă și nr. camere au prețul cerut mai mare. mai multe...

Bine de știut: prețul unei proprietăți este influențat și de alte caracteristici, cum ar fi: vechime, localizare, vecinătăți, suprafață, compartimentare, amenajări, dotări, etc. mai puțin...

Costuri cu achiziția

Fără credit
3.678 RON
Credit ipotecar
4.835 RON
Noua casă
399 RON+ taxe notariale

i

Costuri adiționale mai puțin știute la achiziție: taxe notariale, comisioane etc.

Proprietăți recomandate

Detalii de contact

RE/MAX Innovation

Cosmin Iliescu Sales Associate

RE/MAX Innovation
PRO

Abonează-te la newsletter să fii primul care primește cele mai noi recomandări de proprietăți și sfaturi de la experți.

CONTACT

Creează alertă

Salvează căutarea ca să primești pe email ultimele anunțuri publicate

Garsoniere noi de vânzare în Dobroești, Județul Ilfov