2

Apartament cu 1 camera! Nueva! Credit ipotecar!

72.200 € + TVA

Nicolina, Iași

Nr. cam.:
1
Sup. utilă:
38 mp
Etaj:
7 / 8
An constr.:
2026 (Finalizată)
  • • Locație aproximativă
  • • Proprietate nelocuită

Descriere apartament

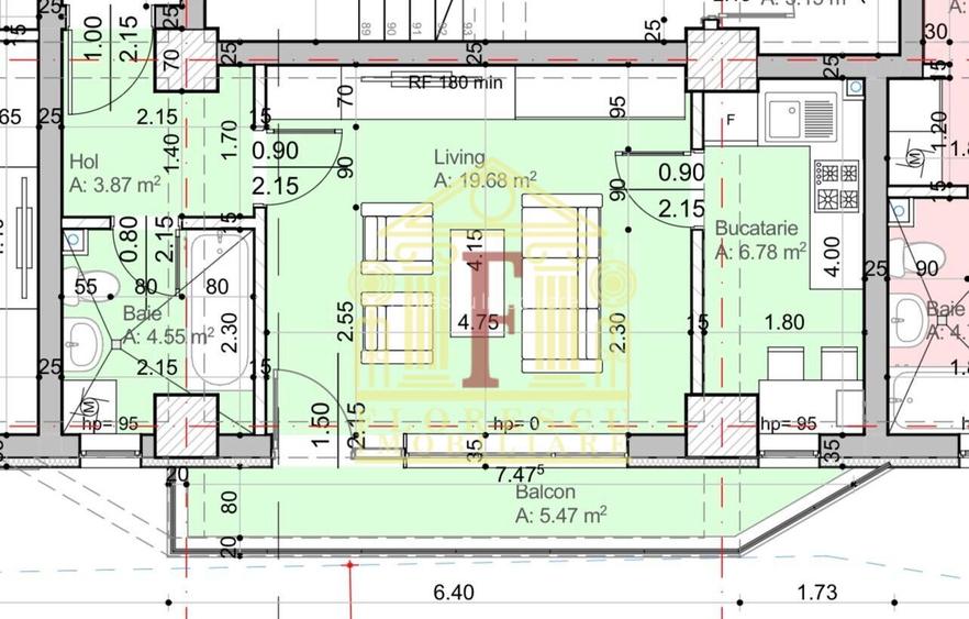
Florescu Imobiliare îți propune spre vânzare două apartamente cu 1 cameră în proiectul Nueva, Nicolina. Locația este la prima stație după Podu Roș. Ai acces rapid la magazine, școli, bănci și transport public. Bloc nou premium, proiect finalizat. Apartamentele sunt la etajul 7 din 8. Beneficiezi de priveliște deschisă datorită geamurilor panoramice mari. Datorita spatiilor mari vitrate, apartamentele sunt pretabile si pentru office. Compartimentare practică. Cameră spațioasă. Bucătărie închisă. Finisaje premium. Apartamentele se predau nemobilate, pregătite pentru amenajarea ta. Apartamentul nr.16 are 38 mp. Apartamentul nr.18 are 40,5 mp. Intabularea este programată în perioada august – septembrie. Pentru detalii și vizionări, contactează Florescu Imobiliare. Pretul nu include TVA! Acceptam si credit ipotecar!
Citește mai mult Citește mai puțin
Confort lux Decomandat Nemobilat 1 Balcon / Terasă / Logie Aer condiționat Alte metode electrice Centrală proprie Încălzire prin pardoseală 1 Garaj Bine întreținut (Bună)

Detalii apartament

ID anunț: XC0M10022 Copiat! 275310015 Copiat!
Actualizat în: 29 Aprilie 2026
Suprafață utilă totală: 38 mp
Suprafață construită: 40 mp
Nr. bucătării: 1
Nr. băi: 1
Structură rezistență: Beton
Tip imobil: Bloc de apartamente
Regim înălțime: P+8E

Utilități

Destinație
Rezidențial Birouri
Pereți
Faianță Vopsea lavabilă
Podele
Gresie Parchet
Izolații termice
Exterior
Contorizare
Apometre Contor căldură
Facilități imobil
Lift Videointerfon
Utilități
Gaze Curent Canalizare Apă
Servicii imobil
Administrare Supraveghere video
Amenajare străzi
Mijloace de transport în comun
Comision
3%

Certificat energetic:

Clasa energetică: B

Puncte de interes

Mijloace transport
bus-station
Pod Nicolina
Stații autobuz aprox. 106 m
bus-station
Statia "Pod Nicolina", linia 41,41b
Stații autobuz aprox. 130 m
tram-station
statia "Bazar", linia 11
Stații tramvai aprox. 485 m
train-station
Gara Internațională Nicolina
Stații tren aprox. 795 m
Școală
kindergarten
Gradinita cu Program Normal Nr. 12
Gradinițe aprox. 253 m
school
Scoala Alecu Russo
Școli aprox. 351 m
kindergarten
Gradinita Kitty
Gradinițe aprox. 385 m
university
Facultatea de Constructii Iasi
Universități aprox. 1164 m
Recreere
park
Parc Nicolina 2
Parcuri aprox. 74 m
supermarket
Carrefour Market
Supermarket aprox. 370 m
sports-ground
Teren de sport
Terenuri sport aprox. 800 m
mall
Shopping Center on Shopping Street(Palas) (en)
Mall aprox. 1468 m

Detalii despre preț și costuri

Prețul pe piață

Preț cerut: 72.200 €

Preț min. zonă
Preț max. zonă

56% dintre proprietățile similare ca zonă și nr. camere au prețul cerut mai mic. mai multe...

Bine de știut: prețul unei proprietăți este influențat și de alte caracteristici, cum ar fi: vechime, localizare, vecinătăți, suprafață, compartimentare, amenajări, dotări, etc. mai puțin...

Insight premium disponibil după login

Costuri cu achiziția

Fără credit
Credit ipotecar
Noua casă

i

Costuri adiționale mai puțin știute la achiziție: taxe notariale, comisioane etc.

Insight premium disponibil după login

Proprietăți similare

Garsonieră decomandată, mobilată în Nicolina
78.000 €
Iași, Nicolina
1 camere
39 mp
Etaj 1 / 7
Garsonieră decomandată, mobilată în Nicolina
78.900 €
Iași, Nicolina
1 camere
35 mp
Parter / 4
Garsonieră decomandată, mobilată în Nicolina
75.000 €
Iași, Nicolina
1 camere
40 mp
Parter / 4

Detalii de contact

Abonează-te la newsletter să fii primul care primește cele mai noi recomandări de proprietăți și sfaturi de la experți.

CONTACT

Creează alertă

Salvează căutarea ca să primești pe email ultimele anunțuri publicate

Garsoniere noi de vânzare în zona Nicolina, Iași