Apartament 1 cameră Păcurari/Kaufland/Moldova Mall - etaj 1, cu boxa

89.000 €

Păcurari, Iași

Nr. cam.:
1
Sup. utilă:
40 mp
Etaj:
1 / 8
An constr.:
1990
  • • Comision 0%
  • • Locație exactă

Descriere apartament

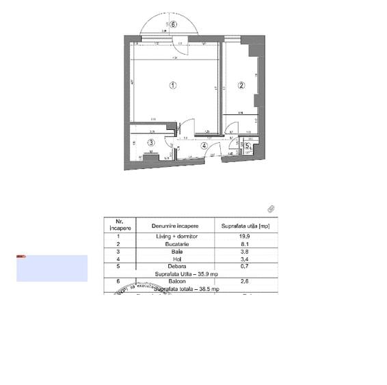
Apartament Păcurari – combinatie ideala si rara de confort, accesibilitate și calitatea construcției Dacă îți dorești un apartament care îmbină inteligent calitatea construcției cu accesul rapid la facilități și mobilitate urbană, această proprietate din Păcurari este alegerea potrivită. Proprietatea se remarcă printr-un avantaj rar: echilibrul dintre o construcție solidă, facilități la îndemână și mobilitate eficientă, fără aglomerația specifică zonelor centrale dominate de imobile vechi și fără disconfortul generat de distanțele mari și timpul petrecut în trafic din zonele limitrofe cu dezvoltări noi. 📍 Localizare Blocul este amplasat la bulevard, dar cu vedere în spate, oferind un echilibru ideal între accesibilitate și liniște. În imediata apropiere: • Stație de transport public chiar în fața blocului • Supermarketuri (Kaufland, Profi non stop) • Moldova Mall – la câteva minute • Sală de sport • Benzinării (Petrom, OMV) • Farmacii și clinică stomatologică • Școli și grădinițe 🏠 Detalii apartament: • Suprafață utilă: 39 mp (intabulată) • Etaj 1 din 8 • Compartimentare decomandată • Debara (spațiu de depozitare) • Boxă proprie la subsol 🔧 Dotări și îmbunătățiri: • Apartament renovat în ultimii ani • Centrală termică proprie pe gaz • Tâmplărie PVC (inclusiv balcon) • Locuință bine întreținută, gata de mutare 🏢 Bloc și facilități • Bloc pe cadre, construit în 1990, fără risc seismic • Scară foarte bine întreținută, cu modernizări recente • Lift nou • Ușă nouă la intrare • Videointerfon și supraveghere video • Subsol curat și electrificat • Vecini liniștiți
Citește mai mult Citește mai puțin
Confort 1 Decomandat Parțial mobilat 1 Balcon / Terasă / Logie Centrală proprie Renovat

Detalii apartament

ID anunț: XV1000D3Q Copiat! 275318707 Copiat!
Actualizat în: 20 Martie 2026
Nr. băi: 1
Tip imobil: Bloc de apartamente
Regim înălțime: P+8E
Lift: Da

Utilități

Utilități
Canalizare Gaze Apă
Sistem încălzire
Centrală proprie pe Gaz cu Calorifere
Servicii imobil
Administrare Supraveghere video Menaj
Comision
0%

Puncte de interes

Mijloace transport
bus-station
Statia "Pacurari", linia 18,20,43,43c,46
Stații autobuz aprox. 16 m
bus-station
Rond Pacurari
Stații autobuz aprox. 108 m
tram-station
Rond Canta
Stații tramvai aprox. 329 m
tram-station
Sergent Grigore Ioan
Stații tramvai aprox. 773 m
Școală
school
Sc Gen Elena Cuza
Școli aprox. 808 m
kindergarten
Gradinita cu program normal nr.15
Gradinițe aprox. 900 m
kindergarten
Gradinita Nr. 9
Gradinițe aprox. 906 m
school
Scoala Generala Nr. 26, "George Cosbuc"
Școli aprox. 1126 m
Recreere
restaurant
Tester
Restaurant aprox. 32 m
sports-ground
Teren sportiv
Terenuri sport aprox. 158 m
park
Parc
Parcuri aprox. 254 m
supermarket
Kaufland (Pacurari)
Supermarket aprox. 262 m

Detalii despre preț și costuri

Prețul pe piață

Preț cerut: 89.000 €

Preț min. zonă 32.000 €
Preț max. zonă 98.472 €

87% dintre proprietățile similare ca zonă și nr. camere au prețul cerut mai mic. mai multe...

Bine de știut: prețul unei proprietăți este influențat și de alte caracteristici, cum ar fi: vechime, localizare, vecinătăți, suprafață, compartimentare, amenajări, dotări, etc. mai puțin...

Costuri cu achiziția

Fără credit
5.592 RON
Credit ipotecar
7.049 RON
Noua casă
593 RON+ taxe notariale

i

Costuri adiționale mai puțin știute la achiziție: taxe notariale, comisioane etc.

Proprietăți similare

Garsonieră decomandată în Păcurari
95.182 € + TVA
Iași, Păcurari
1 camere
38,85 mp
Etaj 6
Garsonieră decomandată în Păcurari
87.824 €
Iași, Păcurari
1 camere
39,7 mp
Parter
Garsonieră decomandată în Păcurari
89.000 €
Iași, Păcurari
1 camere
40 mp
Etaj 8

Detalii de contact

Abonează-te la newsletter să fii primul care primește cele mai noi recomandări de proprietăți și sfaturi de la experți.

CONTACT

Creează alertă

Salvează căutarea ca să primești pe email ultimele anunțuri publicate

Garsoniere de vânzare în zona Păcurari, Iași