Studio in complex cu piscina privata

55.000 €

Mamaia-Sat, Județul Constanța

Nr. cam.:
1
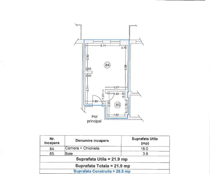
Sup. utilă:
22 mp
Etaj:
4 / 7
An constr.:
2021 (Finalizată)
  • • Locație exactă

Descriere apartament

Studio functional, situat la etajul 4 al unui complex rezidențial premium, la 200m de plajă. Complexul oferă facilități premium, inclusiv un restaurant, piscină privată și loc de joacă pentru copii, asigurând confortul și relaxarea de care ai nevoie.
Citește mai mult Citește mai puțin
Confort lux Decomandat Mobilat Piscină Aer condiționat Calorifere Centrală proprie Bine întreținut (Bună)

Detalii apartament

ID anunț: XADG1003S Copiat! 273451959 Copiat!
Actualizat în: 02 Aprilie 2026
Suprafață construită: 27 mp
Nr. bucătării: 1
Nr. băi: 1
Structură rezistență: Beton
Tip imobil: Bloc de apartamente
Regim înălțime: P+7E
Nr. terase: 1

Utilități

Destinație
Rezidențial
Pereți
Vopsea lavabilă
Podele
Parchet Gresie
Izolații termice
Exterior
Bucătărie
Mobilată Utilată
Facilități imobil
Lift
Utilități
Curent Apă Canalizare Gaze
Servicii imobil
Supraveghere video
Amenajare străzi
Asfaltate
Comision
1%

Certificat energetic:

Clasa energetică: A

Puncte de interes

Școală
school
Scoala Gimnaziala Tudor Arghezi
Școli aprox. 1611 m
school
Scoala Nr. 3
Școli aprox. 1612 m
school
Gr. sc. Lazar Edeleanu
Școli aprox. 1750 m
school
Scoala nr1, Navodari
Școli aprox. 1891 m
Recreere
restaurant
Restaurant Leon Beach
Restaurant aprox. 473 m
sports-ground
Teren sportiv
Terenuri sport aprox. 481 m
supermarket
Max supermarket
Supermarket aprox. 788 m
park
Parcul Ion Dobre
Parcuri aprox. 1252 m

Detalii despre preț și costuri

Prețul pe piață

Preț cerut: 55.000 €

Preț min. zonă 55.000 €
Preț max. zonă 133.000 €

70% dintre proprietățile similare ca zonă și nr. camere au prețul cerut mai mic. mai multe...

Bine de știut: prețul unei proprietăți este influențat și de alte caracteristici, cum ar fi: vechime, localizare, vecinătăți, suprafață, compartimentare, amenajări, dotări, etc. mai puțin...

Costuri cu achiziția

Fără credit
6.740 RON
Credit ipotecar
7.929 RON
Noua casă
420 RON+ taxe notariale

i

Costuri adiționale mai puțin știute la achiziție: taxe notariale, comisioane etc.

Proprietăți recomandate

Detalii de contact

Diaconu Sorin

Sorin Diaconu

5.00(3 review-uri)

Diaconu Sorin
PRO

Abonează-te la newsletter să fii primul care primește cele mai noi recomandări de proprietăți și sfaturi de la experți.

CONTACT

Creează alertă

Salvează căutarea ca să primești pe email ultimele anunțuri publicate

Garsoniere noi de vânzare în Mamaia-Sat, Județul Constanța