6

Garsoniera 40mp, Bloc Nou, Zona linistita, Parc, Metrou M2

54.900 € + TVA

Popești-Leordeni, Județul Ilfov

Nr. cam.:
1
Sup. utilă:
39,3 mp
Etaj:
Parter
An constr.:
2025
  • • Comision 0%
  • • Locație exactă
  • • Vizionare prin apel video

Descriere apartament

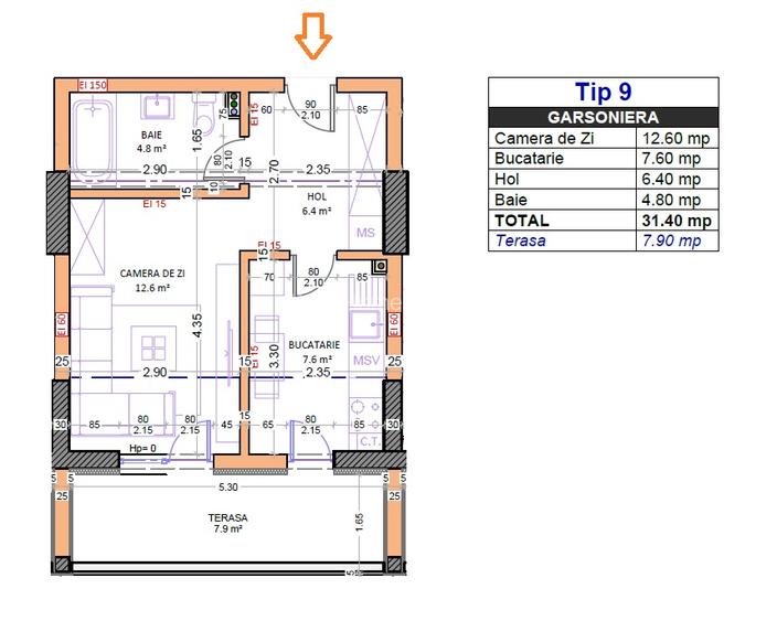
Va propunem spre achizitie o garsoniera moderna, decomandata, cu o suprafata totala utila de 39.30 mp, situata intr-un bloc nou in proximitatea Magistralei 2 de metrou - statia Berceni, pe Strada Biruintei - Popesti Leordeni. Pretul afisat nu include TVA si este pentru avans integral la Antecontract. Pretul pentru plata prin credit (15% avans la Antecontract) pretul este 70.750 euro (TVA 21% inclus). Discount-uri personalizate in functie de avansul platit la antecontract. Achizitia se face Direct de la Dezvoltator, fara intermediari, Comision 0% Avem un birou direct care se ocupa de dosarele bancare pentru clientii cu credit. Broker GRATUIT. Asistenta intocmire acte! Facilități: Supermarketuri, farmacii, restaurante, Cabinete medicale, locuri de joaca, grădinițe, parcuri. Dotări și finisaje: Centrală termică proprie în condensare + Încălzire în pardoseală; Tâmplărie PVC Salamander; Uși de intrare BELLA CASA; Finisaje la alegere; Balcoane cu sticlă securizată; Lifturi silențioase. Pozele sunt cu titlu de prezentare. Predare August 2026
Citește mai mult Citește mai puțin
Confort 1 Decomandat Nemobilat 1 Balcon / Terasă / Logie Curte comună Centrală proprie Încălzire prin pardoseală

Detalii apartament

ID anunț: XDH9001J8 Copiat! 274810328 Copiat!
Actualizat în: 30 Martie 2026
Suprafață construită: 47.2 mp
Nr. bucătării: 1
Nr. băi: 1
Structură rezistență: Beton
Tip imobil: Bloc de apartamente
Regim înălțime: P+6E

Utilități

Destinație
Rezidențial
Contorizare
Contor gaz Apometre Contor căldură
Alte spații utile
Terasă
Facilități imobil
Lift Videointerfon Spații agrement
Utilități
CATV Gaze Curent Canalizare Apă
Internet
Fibră optică
Servicii imobil
Administrare
Amenajare străzi
Asfaltate Betonate Iluminat stradal Mijloace de transport în comun
Comision
0%

Certificat energetic:

Clasa energetică: A

Puncte de interes

Mijloace transport
bus-station
Statia IMGB Poarta 1 linia 125
Stații autobuz aprox. 885 m
metro-station
Dimitrie Leonida (M2)
Stații metrou aprox. 934 m
bus-station
Statia IMGB Poarta 2, linia 125, metrou M2
Stații autobuz aprox. 960 m
tram-station
ROMPRIM
Stații tramvai aprox. 1784 m
Școală
school
Colegiul Tehnic Miron Nicolescu
Școli aprox. 1280 m
school
Scoala nr. 2
Școli aprox. 1487 m
school
Scoala cu clasele I-VIII nr. 2
Școli aprox. 1487 m
school
Grupul Industrial "Dacia"
Școli aprox. 1548 m
Recreere
supermarket
Fortuna Discount Market
Supermarket aprox. 231 m
restaurant
La Florin
Restaurant aprox. 240 m
park
Parc
Parcuri aprox. 580 m
sports-ground
Teren sportiv
Terenuri sport aprox. 920 m

Detalii despre preț și costuri

Prețul pe piață

Preț cerut: 54.900 €

Preț min. zonă 42.000 €
Preț max. zonă 74.990 €

75% dintre proprietățile similare ca zonă și nr. camere au prețul cerut mai mare. mai multe...

Bine de știut: prețul unei proprietăți este influențat și de alte caracteristici, cum ar fi: vechime, localizare, vecinătăți, suprafață, compartimentare, amenajări, dotări, etc. mai puțin...

Costuri cu achiziția

Fără credit
4.532 RON
Credit ipotecar
5.812 RON
Noua casă
479 RON+ taxe notariale

i

Costuri adiționale mai puțin știute la achiziție: taxe notariale, comisioane etc.

Proprietăți similare

Garsonieră semidecomandată, mobilată în Central
58.000 €
Județul Ilfov, Popești-Leordeni
1 camere
34 mp
Etaj 2
Garsonieră decomandată în Central
59.900 € + TVA
Județul Ilfov, Popești-Leordeni
1 camere
35,2 mp
Etaj 2
Garsonieră decomandată în Central
53.700 € + TVA
Județul Ilfov, Popești-Leordeni
1 camere
39 mp
Etaj 4

Detalii de contact

Class Home Concept

Iancu Costel Reprezentant Vanzari Dezvoltator

4.82(69 review-uri)

Class Home Concept
PRO

Abonează-te la newsletter să fii primul care primește cele mai noi recomandări de proprietăți și sfaturi de la experți.

CONTACT

Creează alertă

Salvează căutarea ca să primești pe email ultimele anunțuri publicate

Garsoniere de vânzare în Popești-Leordeni, Județul Ilfov