Dezvoltator, garsoniera, et.1 - Iancului/ Metrou Comision 0% !

133.000 €

Iancului, București

Nr. cam.:
1
Sup. utilă:
34,6 mp
Etaj:
1 / 2
An constr.:
2024 (Finalizată)
  • • Locație aproximativă

Descriere apartament

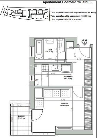
Va oferim spre vanzare o garsoniera situata intr-un bloc nou construit din zona Iancului/Sector 2. Amplasamentul este de exceptie, imobilul fiind ideal pentru persoane si familii care doresc sa aiba in apropiere principalele puncte de interes, unde puteti avea acces facil catre: mijloace de transport in comun, statia de metrou Iancului, , scoli si licee de renume, gradinite, supermarketuri, farmacii. Imobilul dispune de lift si curte. DESCRIERE: - Etaj 1/P+2E+M - O camera, baie, bucatarie, hol, bacon - Suprafata utila 34.6 mp - Suprafata totala 41.9 mp - Suprafata terasa 5.1 mp Apartamentul este amenajat cu finisaje premium, incalzire in pardoseala, termopane. usa metalica si centrala proprie. Imobilul dispune de parcare subterana si se poate achizitiona separat, pretul acestuia fiind de 20.000 euro + Tva. ID: CP2075713 PRET: 133.000 Euro+Tva TEL .:
Citește mai mult Citește mai puțin
Confort lux Decomandat 1 Balcon / Terasă / Logie Curte comună Aer condiționat Centrală proprie Încălzire prin pardoseală

Detalii apartament

ID anunț: XBKM100CD Copiat! 275395293 Copiat!
Actualizat în: 02 Aprilie 2026
Suprafață construită: 41.9 mp
Nr. bucătării: 1
Nr. băi: 1
Structură rezistență: Beton
Tip imobil: Bloc de apartamente
Regim înălțime: P+2E+M

Utilități

Pereți
Faianță Vopsea lavabilă
Podele
Gresie Parchet
Ușă intrare
Metal
Uși interior
Celulare
Izolații termice
Exterior Interior
Utilități
Curent Apă Canalizare CATV Gaze Telefon
Internet
Cablu
Amenajare străzi
Iluminat stradal Mijloace de transport în comun Asfaltate
Comision
standard

Disponibilitate proprietate:

data_properties.property_availability.Imediat

Puncte de interes

Mijloace transport
bus-station
Tepes Voda
Stații autobuz aprox. 64 m
tram-station
Statia Matei Voievod / Scoala Iancului linia 55
Stații tramvai aprox. 393 m
trolleybus-station
Statia Foisorul de Foc linii : 79,86
Stații troleibuz aprox. 611 m
metro-station
Statia Soseaua Mihai Bravu, linia 14
Stații metrou aprox. 961 m
Școală
kindergarten
Gradinita Waldorf
Gradinițe aprox. 65 m
school
Scoala pentru deficienti de vedere
Școli aprox. 161 m
kindergarten
Montessori Kindergarden of Bucharest
Gradinițe aprox. 283 m
university
Universitatea Hyperion
Universități aprox. 378 m
Recreere
park
Parc
Parcuri aprox. 79 m
supermarket
Mega Image - Hala Traian
Supermarket aprox. 499 m
sports-ground
Teren sportiv
Terenuri sport aprox. 562 m
mall
Bucharest, Calea Vitan nr. 8, Bl V51, near VITAN Mall
Mall aprox. 1577 m

Detalii despre preț și costuri

Prețul pe piață

Preț cerut: 133.000 €

Preț min. zonă 48.000 €
Preț max. zonă 95.500 €

i

Proprietate cu prețul cerut în afara intervalului mai multe...

Posibile explicații pentru faptul că prețul proprietății este peste cel maxim: imobil nou cu suprafață mare, are dotări și finisaje de lux.
Bine de știut: prețul unei proprietăți este influențat și de alte caracteristici, cum ar fi: vechime, localizare, vecinătăți, suprafață, compartimentare, amenajări, dotări, etc.

Costuri cu achiziția

Fără credit
7.471 RON
Credit ipotecar
9.149 RON
Noua casă
818 RON+ taxe notariale

i

Costuri adiționale mai puțin știute la achiziție: taxe notariale, comisioane etc.

Proprietăți similare

Garsonieră decomandată, mobilată în Lacul Tei
139.900 €
București, Lacul Tei
1 camere
45 mp
Etaj 2 / 3
Garsonieră semidecomandată în Pache Protopopescu
121.297 € + TVA
București, Pache Protopopescu
1 camere
30,47 mp
Parter / 5
Garsonieră decomandată în Moșilor
122.031 € + TVA
București, Moșilor
1 camere
26,48 mp
Parter / 4

Detalii de contact

REALPLUS ESTATES

Neoland RealPlus Estates Manager

4.08(4 review-uri)

REALPLUS ESTATES
PRO

Abonează-te la newsletter să fii primul care primește cele mai noi recomandări de proprietăți și sfaturi de la experți.

CONTACT

Creează alertă

Salvează căutarea ca să primești pe email ultimele anunțuri publicate

Garsoniere noi de vânzare în zona Iancului, Sector 2