Obor – Mihai Bravu – Primaria Sector 2 – 5 min Metrou Obor – Comision 0%

85.000 €

Obor, București

Nr. cam.:
1
Sup. utilă:
34 mp
Etaj:
7 / 10
An constr.:
1978
  • • Comision 0%
  • • Locație exactă

Descriere apartament

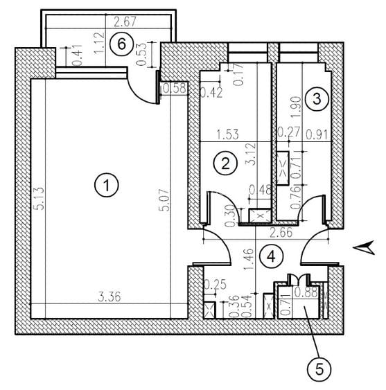
Va propun spre vanzare, in exclusivitate, o garsoniera decomandata, situata pe Sos. Mihai Bravu, in imediata apropiere de Primaria Sector 2 si Parcul Obor, la doar 5 minute de mers pe jos pana la statia de Metrou Obor. Imobilul este construit in anul 1978 (structura din beton armat cu stalpi si diafragme), are 10 etaje si este anvelopat termic. Casa scarii dispune de geam, fiind bine iluminata natural si ventilata (un avantaj important pentru confort si igiena). De asemenea, ghena este amplasata intre etaje si beneficiaza de geam pentru ventilatie, contribuind la mentinerea unui mediu curat si aerisit. Garsoniera este situata la etajul 7, are o suprafata totala de 34 mp si este eficient compartimentata. Proprietatea este complet renovata si se vinde mobilata si utilata, exact ca in fotografii - ideala pentru mutare imediata sau investitie. Pozitia excelenta ofera acces rapid catre mijloace de transport, centre comerciale, piete, scoli si alte puncte de interes. In plus, in zona Obor exista posibilitatea inchirierii unui loc de parcare subteran (Interparking), pe baza de abonament lunar. Proprietatea este intermediata de tehnician/consultant imobiliar. Pentru detalii suplimentare, informatii tehnice sau juridice, va stau la dispozitie telefonic sau pe WhatsApp. Comision 0% pentru cumparator!
Citește mai mult Citește mai puțin
Confort 1 Decomandat Mobilat 1 Balcon / Terasă / Logie Aer condiționat Termoficare Renovat

Detalii apartament

ID anunț: XV1000HS0 Copiat! 275480839 Copiat!
Actualizat în: 26 Aprilie 2026
Nr. băi: 1
Tip imobil: Bloc de apartamente
Regim înălțime: P+10E
Lift: Da

Utilități

Comision
0%

Puncte de interes

Mijloace transport
bus-station
Statia Soseaua Mihai Bravu; Liniile:330, 335, 101
Stații autobuz aprox. 192 m
tram-station
Statia Mihai Bravu; Linia: 1, 14, 46
Stații tramvai aprox. 258 m
trolleybus-station
Statia Soseaua Mihai Bravu, linia 68,85
Stații troleibuz aprox. 336 m
metro-station
Statia Soseaua Mihai Bravu, linia 14
Stații metrou aprox. 336 m
Școală
school
Scoala Nr. 50
Școli aprox. 249 m
school
COLEGIUL NAȚIONAL "IULIA HAȘDEU"
Școli aprox. 295 m
university
Facultatea de Instalatii (en)
Universități aprox. 734 m
kindergarten
Gradinita Schritt fuer Schritt
Gradinițe aprox. 796 m
Recreere
supermarket
Spectrum
Supermarket aprox. 122 m
park
Obor Park (en)
Parcuri aprox. 236 m
public-square
Piata Bucur Obor
Piețe publice aprox. 382 m
sports-ground
Respawn B
Terenuri sport aprox. 825 m

Detalii despre preț și costuri

Prețul pe piață

Preț cerut: 85.000 €

Preț min. zonă
Preț max. zonă

85% dintre proprietățile similare ca zonă și nr. camere au prețul cerut mai mic. mai multe...

Bine de știut: prețul unei proprietăți este influențat și de alte caracteristici, cum ar fi: vechime, localizare, vecinătăți, suprafață, compartimentare, amenajări, dotări, etc. mai puțin...

Insight premium disponibil după login

Costuri cu achiziția

Fără credit
Credit ipotecar
Noua casă

i

Costuri adiționale mai puțin știute la achiziție: taxe notariale, comisioane etc.

Insight premium disponibil după login

Proprietăți similare

Garsonieră decomandată în Obor
89.250 € + TVA
București, Obor
1 camere
35 mp
Etaj 7
Garsonieră decomandată în Obor
86.000 € + TVA
București, Obor
1 camere
43 mp
Etaj 2
Garsonieră în Obor
79.900 € + TVA
București, Obor
1 camere
32,84 mp
Etaj 8 / 11

Detalii de contact

Consultant Imobiliar

Consultant Imobiliar

Abonează-te la newsletter să fii primul care primește cele mai noi recomandări de proprietăți și sfaturi de la experți.

CONTACT

Creează alertă

Salvează căutarea ca să primești pe email ultimele anunțuri publicate

Garsoniere de vânzare în zona Obor, Sector 2