GARSONIERA DRISTOR/BABA NOVAC, RENOVATA

79.990 €

Dristor, București

Nr. cam.:
1
Sup. utilă:
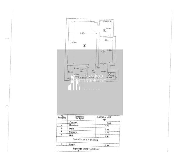
34 mp
Etaj:
6
An constr.:
1980
  • • Exclusivitate
  • • Locație aproximativă

Descriere apartament

Garsoniera confort 1, etaj intermediar, renovata, situata in Sector 3, zona Dristor/Baba Novac, la 5 minute metrou Dristor. - an 1979 - etaj 6/10 - suprafata 34 mp - bloc anvelopat - renovata - vedere spatele blocului - 5 min metrou - aproape de Parc IOR, Mall Park Lake - ideal investitie Pret - 79990 eur negociabil Telefon - Daniel Comision standard
Citește mai mult Citește mai puțin
Confort 1 Decomandat 1 Balcon / Terasă / Logie Aer condiționat Calorifere Termoficare

Detalii apartament

ID anunț: XCRN104JH Copiat! 275420614 Copiat!
Actualizat în: 08 Aprilie 2026
Nr. bucătării: 1
Nr. băi: 1
Structură rezistență: Beton
Tip imobil: Bloc de apartamente
Regim înălțime: S+P+10E

Utilități

Pereți
Faianță Vopsea lavabilă
Podele
Gresie Parchet
Ușă intrare
Metal
Uși interior
Celulare
Izolații termice
Exterior
Ferestre cu geam termopan
PVC
Contorizare
Apometre Contor căldură Contor gaz
Utilități
Curent Apă Canalizare Gaze
Amenajare străzi
Iluminat stradal Mijloace de transport în comun Asfaltate
Comision
standard

Disponibilitate proprietate:

Imediat

Puncte de interes

Mijloace transport
bus-station
Dristor 2
Stații autobuz aprox. 135 m
metro-station
Metrorex. Stația Dristor 2 (M1)(1989).
Stații metrou aprox. 143 m
tram-station
Soseaua Mihai Bravu
Stații tramvai aprox. 170 m
trolleybus-station
statie troleu 70,92,79 (en)
Stații troleibuz aprox. 1630 m
Școală
kindergarten
Gradinita nr. 239
Gradinițe aprox. 105 m
school
Scoala Nr. 80 - Cladirea Veche (monument istoric)
Școli aprox. 162 m
kindergarten
Gradinita Era
Gradinițe aprox. 599 m
university
Facultatea Științe Economice, Titu Maiorescu ( Facultatea Tatianei )
Universități aprox. 1475 m
Recreere
sports-ground
Teren sportiv
Terenuri sport aprox. 148 m
supermarket
BILLA - Dristor
Supermarket aprox. 171 m
park
Loc de joaca
Parcuri aprox. 270 m
mall
Bucharest, Calea Vitan nr. 8, Bl V51, near VITAN Mall
Mall aprox. 1174 m

Detalii despre preț și costuri

Prețul pe piață

Preț cerut: 79.990 €

Preț min. zonă
Preț max. zonă

62% dintre proprietățile similare ca zonă și nr. camere au prețul cerut mai mic. mai multe...

Bine de știut: prețul unei proprietăți este influențat și de alte caracteristici, cum ar fi: vechime, localizare, vecinătăți, suprafață, compartimentare, amenajări, dotări, etc. mai puțin...

Insight premium disponibil după login

Costuri cu achiziția

Fără credit
Credit ipotecar
Noua casă

i

Costuri adiționale mai puțin știute la achiziție: taxe notariale, comisioane etc.

Insight premium disponibil după login

Proprietăți similare

Garsonieră decomandată, mobilată în Dristor
85.000 €
București, Dristor
1 camere
33 mp
Etaj 5
Garsonieră decomandată în Dristor
76.900 €
București, Dristor
1 camere
32 mp
Etaj 3
Garsonieră decomandată, mobilată în Dristor
85.000 €
București, Dristor
1 camere
34 mp
Etaj 10 / 10

Detalii de contact

Ramiro Imob

Daniel Covaliu Agent Imobiliar

Ramiro Imob
PRO

Abonează-te la newsletter să fii primul care primește cele mai noi recomandări de proprietăți și sfaturi de la experți.

CONTACT

Creează alertă

Salvează căutarea ca să primești pe email ultimele anunțuri publicate

Garsoniere de vânzare în zona Dristor, Sector 3