Garsoniera de vanzare dezvoltator - Zona Auchan Titan

67.200 € + TVA

Theodor Pallady, București

Nr. cam.:
1
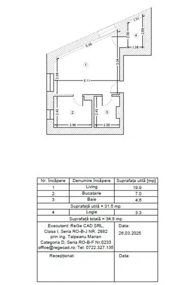
Sup. utilă:
34,8 mp
Etaj:
Parter / 11
An constr.:
2026 (În construcție)
  • • Comision 0%
  • • Locație exactă

Descriere apartament

Îți propun spre vânzare un apartament cu o camera in Titan – Bd. 1 Decembrie/Bratarii, într-un imobil nou, situat în Sector 3, Auchan Titan. Caracteristici apartament: - Garsoniera, complet finisata - Compartimentare eficientă - Living luminos cu acces in logie - Bucătărie inchisa - Baie complet utilata - Încălzire modernă cu centrală proprie - Tâmplărie PVC - Ușă metalică la intrare - Finisaje de calitate superioară Detalii clădire: - Bloc nou, construcție solidă din beton armat și cărămidă - Lift modern - Casa scării finisată premium - Subsol cu parcări (se pot achizitiona la cerere) - Acces securizat Centre comerciale: Lidl, Auchan, ParkLake, IKEA Școli și grădinițe Parcuri și zone verzi Acces facil către Pallady și Autostrada A2 si A0 Avantaje principale: - Preț direct dezvoltator - Fără comision - Ideal pentru locuit sau investiție Predare incepand cu luna iulie 2026. Prețuri: 67.200 euro + TVA Pentru mai multe informații, planuri și oferte actualizate sau pentru a programa o vizionare, te invit să mă contactezi. VAUNT ID: 114050
Citește mai mult Citește mai puțin
Confort 2 Decomandat Nemobilat 1 Balcon / Terasă / Logie Curte comună Centrală proprie 1 Parcare Bine întreținut (Bună)

Detalii apartament

ID anunț: X7QH2027I Copiat! 275415128 Copiat!
Actualizat în: 07 Aprilie 2026
Suprafață utilă totală: 34.8 mp
Suprafață construită: 45 mp
Nr. băi: 1
Structură rezistență: Beton
Tip imobil: Bloc de apartamente
Regim înălțime: S+P+11E

Utilități

Destinație
Rezidențial
Pereți
Vopsea lavabilă
Podele
Gresie
Ușă intrare
Parchet Metal
Uși interior
Celulare
Izolații termice
Interior Exterior
Contorizare
Apometre Contor gaz
Diverse
Senzor de fum
Facilități imobil
Spații agrement Interfon Lift
Utilități
Gaze CATV Telefon Curent Apă Canalizare
Internet
Fibră optică Cablu Wireless
Servicii imobil
Administrare Supraveghere video
Amenajare străzi
Iluminat stradal Mijloace de transport în comun Asfaltate
Comision
0%

Certificat energetic:

Clasa energetică: A

Puncte de interes

Mijloace transport
bus-station
Statia Liviu Rebreanu, linia 311, 330, N103, N104, 101,40
Stații autobuz aprox. 453 m
tram-station
Postavarului
Stații tramvai aprox. 570 m
metro-station
Metrorex. Stația 1 Decembrie 1918(M3)(2008)
Stații metrou aprox. 1324 m
train-station
Halta Titan Sud (23 August)
Stații tren aprox. 1476 m
Școală
school
Sala de sport a scolii 22 mexic (en)
Școli aprox. 543 m
school
Scoala Generala Nr. 22, "Mexic"
Școli aprox. 555 m
kindergarten
Gradinita nr. 231
Gradinițe aprox. 665 m
kindergarten
Gradinita nr. 68
Gradinițe aprox. 686 m
Recreere
supermarket
Auchan Titan
Supermarket aprox. 196 m
park
Parc
Parcuri aprox. 324 m
restaurant
Iris Mall
Restaurant aprox. 332 m
sports-ground
Teren sportiv
Terenuri sport aprox. 742 m

Detalii despre preț și costuri

Prețul pe piață

Preț cerut: 67.200 €

Preț min. zonă
Preț max. zonă

52% dintre proprietățile similare ca zonă și nr. camere au prețul cerut mai mic. mai multe...

Bine de știut: prețul unei proprietăți este influențat și de alte caracteristici, cum ar fi: vechime, localizare, vecinătăți, suprafață, compartimentare, amenajări, dotări, etc. mai puțin...

Insight premium disponibil după login

Costuri cu achiziția

Fără credit
Credit ipotecar
Noua casă

i

Costuri adiționale mai puțin știute la achiziție: taxe notariale, comisioane etc.

Insight premium disponibil după login

Proprietăți similare

Garsonieră decomandată, mobilată în Theodor Pallady
61.400 € + TVA
București, Theodor Pallady
1 camere
37,5 mp
Etaj 1 / 11
Garsonieră decomandată în Theodor Pallady
63.223 € + TVA
București, Theodor Pallady
1 camere
48,15 mp
Etaj 2 / 3
Garsonieră semidecomandată în Theodor Pallady
64.800 € + TVA
București, Theodor Pallady
1 camere
43,42 mp
Etaj 3 / 4

Detalii de contact

R&D ADVISERS

Mihai Patriche Project Manager

5.00(9 review-uri)

R&D ADVISERS
PRO

Abonează-te la newsletter să fii primul care primește cele mai noi recomandări de proprietăți și sfaturi de la experți.

CONTACT

Creează alertă

Salvează căutarea ca să primești pe email ultimele anunțuri publicate

Garsoniere de vânzare în zona Theodor Pallady, Sector 3