3

Bloc nou zona ESO. Finisaje la alegere. 1,2,3 camere.

79.000 €

Girocului, Timișoara

Nr. cam.:
1
Sup. utilă:
38 mp
Etaj:
1 / 3
An constr.:
2026
  • • Locație aproximativă

Descriere apartament

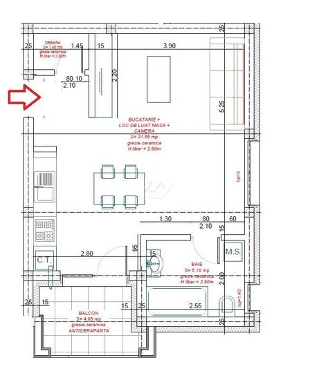
ZayHome va propune spre vanzare un bloc nou in Giroc - zona ESO in imediata apropiere a magazinelor si a statiei de autobuz. Blocul are regimul de inaltime parter + 3 etaje si este format din apartamente cu 1,2 si 3 camere. Tipuri de apartamente si disponibilitate: 1 camera: - 38.05 mp + 5 mp balcon disponibil la Etaj 1 si Etaj 2 - Pret 79.000 Euro 2 camere: - 44 mp + 3.85 mp balcon disponibil la Etaj 2 - Pret 88.000 Euro - 52 mp Disponibil la Etaj 2 - Pret 105.000 Euro 3 camere: - 63 mp + terasa acoperita 20 mp disponibil la Parter - Pret 130.000 Euro - 73 mp + 22.65 mp terase Disponibil la ER - Pret 160.000 Euro. 2 locuri de parcare incluse. Dotari: - Centrala termica proprie cu incalzire prin pardoseala - Geamuri tripan cu tamplarie PVC marca Salamander - Usi MDF - VideoInterfon - Gresie, faianta, parchet la alegerea clientului Apartamentele se vor preda finisate la "cheie" si racordate la toate utilitatile (apa, gaz, canal, curent). Termen predare Mai 2026. Fiind multe de vazut si de prezentat in realitate, te invitam la o intalnire in urma careia vei obtine raspunsuri la toate intrebarile tale. Lasa procesul de achizitie al imobilului mult visat in seama noastra, vei avea mai putine griji si vei beneficia de consultanta imobiliara, financiar-bancara si juridica pe tot parcusul acestuia.
Citește mai mult Citește mai puțin
Confort 1 1 Balcon / Terasă / Logie Centrală proprie Încălzire prin pardoseală 1 Parcare

Detalii apartament

ID anunț: XC6P100VP Copiat! 275194578 Copiat!
Actualizat în: 04 Martie 2026
Nr. bucătării: 1
Nr. băi: 1
Structură rezistență: Cărămidă
Tip imobil: Bloc de apartamente
Tip tranzacție: De vânzare prin agent
Regim înălțime: P+3E
Modalitate de plată: Cash sau Credit

Utilități

Pereți
Faianță Vopsea lavabilă
Podele
Gresie Parchet
Ușă intrare
Metal
Uși interior
Celulare
Izolații termice
Exterior
Ferestre cu geam termopan
PVC
Contorizare
Apometre Contor gaz
Alte spații utile
Debara
Facilități imobil
Interfon Videointerfon
Utilități
Curent Apă Canalizare CATV Gaze Telefon
Internet
Cablu
Amenajare străzi
Iluminat stradal Mijloace de transport în comun Asfaltate
Comision
standard

Disponibilitate proprietate:

Mai 2026

Puncte de interes

Mijloace transport
bus-station
Statie Muzicescu E3
Stații autobuz aprox. 83 m
bus-station
Apicultorilor
Stații autobuz aprox. 315 m
trolleybus-station
Statie Maresal C-tin Prezan T15, T19
Stații troleibuz aprox. 783 m
tram-station
Statie P. Pavlov Tv7
Stații tramvai aprox. 873 m
Școală
university
Institutul de Cercetari pentru Energii Regenerabile
Universități aprox. 295 m
kindergarten
Gradinita Goghita
Gradinițe aprox. 616 m
school
Școala generală nr. 14
Școli aprox. 861 m
university
CENTRU REGIONALDE PREGATIRE PROFESIONALA PENTRU MAGISTRATI, GIROC, tIMISOARA
Universități aprox. 898 m
Recreere
park
Parcul de Sculptura, Fundatia Interart Triade
Parcuri aprox. 438 m
supermarket
Lidl
Supermarket aprox. 456 m
sports-ground
Teren sportiv
Terenuri sport aprox. 970 m
public-square
Piata Aron Cotrus
Piețe publice aprox. 1101 m

Detalii despre preț și costuri

Prețul pe piață

Preț cerut: 79.000 €

Preț min. zonă
Preț max. zonă

i

Proprietate cu prețul cerut în afara intervalului mai multe...

Posibile explicații pentru faptul că prețul proprietății este peste cel maxim: imobil nou cu suprafață mare, are dotări și finisaje de lux.
Bine de știut: prețul unei proprietăți este influențat și de alte caracteristici, cum ar fi: vechime, localizare, vecinătăți, suprafață, compartimentare, amenajări, dotări, etc.
Acces la informații premium după autentificare
Login Gratuit

Costuri cu achiziția

Fără credit
Credit ipotecar
Noua casă

i

Costuri adiționale mai puțin știute la achiziție: taxe notariale, comisioane etc.

Acces la informații premium după autentificare
Login Gratuit

Proprietăți similare

Garsonieră decomandată în Girocului
79.000 €
Timișoara, Girocului
1 camere
39 mp
Etaj 1
Garsonieră decomandată, mobilată în Girocului
75.000 €
Timișoara, Girocului
1 camere
31,5 mp
Parter / 4
Garsonieră decomandată, mobilată în Lipovei
74.500 €
Timișoara, Lipovei
1 camere
35 mp
Etaj 4 / 5

Detalii de contact

Abonează-te la newsletter să fii primul care primește cele mai noi recomandări de proprietăți și sfaturi de la experți.

Feedback apel

CONTACT

Creează alertă

Salvează căutarea ca să primești pe email ultimele anunțuri publicate

Garsoniere noi de vânzare în zona Girocului, Timișoara