19

Apartament cartierul Iosefin, zona Palatul Bancii de Economii, Timisoara

62.400 €

Iosefin, Timișoara

Nr. cam.:
1
Sup. utilă:
41 mp
Etaj:
Parter / 2
An constr.:
1908 (Finalizată)
  • • Comision 0%
  • • Locație exactă

Descriere apartament

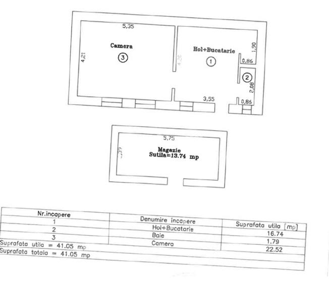
Descoperă un apartament situat la parterul unei clădiri istorice din cartierul Iosefin, pe Bulevardul General Ion Dragalina nr. 15 – una dintre zonele emblematice ale Timișoarei! Amplasament: Odată cu ridicarea noii gări din Iosefin, strada Bonnaz – astăzi Bulevardul General Ion Dragalina – devine artera vitală care leagă centrul cartierului de gară. Construcția impunătorului Palat al Casei de Economii marchează începutul unei noi etape în dezvoltarea zonei. Primul deceniu al secolului XX aduce pe latura vestică a străzii Bonnaz o serie de clădiri remarcabile, fie în stil istoricist, fie în rafinatul stil al anilor 1900, transformând cartierul într-un veritabil reper arhitectural al Timișoarei (astăzi situl urban ”Vechiul cartier Iosefin”, cod LMI TM-IIs-B-06098, poziția 63 în LMI Timiș). Descriere: Ridicată cel mai probabil după 1908, clădirea în cadrul căreia se situează apartamentul propus pentru vânzare, se înalță cu eleganța specifică Szecesszió-ului timișorean. Privirea este atrasă de fațada sa unică la stradă, compusă din parter și două etaje, unde verticalitatea domină compoziția. Ritmul traveelor, subliniat de pilaștri și ferestre înalte dispuse simetric, creează o armonie ce evocă rafinament. Parterul, gândit încă din trecut pentru activități comerciale, se întinde pe toată lungimea clădirii, amintind de viața urbană animată de altădată. Detaliile sunt cele care dau personalitate fațadei: frontoanele curbe, aticele ondulate, panourile ornamentale cu motive florale și geometrice, balcoanele din fier forjat decorate cu forme vegetale stilizate – toate vorbesc despre o epocă sofisticată și despre dorința de a crea un „palat” urban în inima Timișoarei. Printre ornamentele florale, margareta își face loc cu simbolul ei de inocență și puritate, evocând razele soarelui prin discul floral înconjurat de petale simetrice. Laleaua, prezentă în multe fațade ale Secessionului maghiar, adaugă eleganță și rafinament, iar frunza de acant, inspirată din antichitatea greco-romană, completează povestea cu un accent clasic reinterpretat în spiritul Artei 1900. Împreună cu ghirlandele florale, aceste detalii transformă fațada într-o poveste arhitecturală care continuă să impresioneze și astăzi. În prezent, fațada principală a clădirii se află în curs de reabilitare. ► Apartamentul este semidecomandat, fiind compartimentat astfel: hol + bucătărie (16,74 mp), cameră spațioasă (22,52 mp) și baie (1,79 mp), la subsol pivniță (13,74 mp). Clădirea beneficiază de structură, închideri și compartimentări din zidarie portanta de cărămidă, acoperiș cu șarpantă din lemn și învelitoare din țiglă. Tâmplăria exterioară este din lemn, ușile interioare sunt din lemn masiv, iar încălzirea se realizează cu centrală termică proprie pe gaz. Accesul se realizează direct din curtea comună a clădirii. ► Terenul este în cotă indiviză, respectiv 1% din curtea comună. Finisaje: Interiorul necesită renovare, oferind libertatea de a fi amenajat după propriul gust și de a combina farmecul detaliilor originale cu confortul modern.
Citește mai mult Citește mai puțin
Semidecomandat Centrală proprie

Detalii apartament

ID anunț: X4MI00056 Copiat! 30521874 Copiat!
Actualizat în: 09 Decembrie 2025
Suprafață utilă totală: 55 mp
Nr. bucătării: 1
Nr. băi: 1
Structură rezistență: Cărămidă
Tip imobil: Casă/Vilă
Regim înălțime: S+P+2E

Utilități

Destinație
Rezidențial Comercial Birouri
Pereți
Faianță Vopsea lavabilă
Podele
Gresie Parchet
Ușă intrare
Lemn
Utilități
Curent Apă Canalizare
Amenajare străzi
Asfaltate Iluminat stradal Mijloace de transport în comun
Comision
0%

Certificat energetic:

Clasa energetică: B

Puncte de interes

Mijloace transport
bus-station
Statie Brancoveanu E7, A33, E8, M36, E5
Stații autobuz aprox. 13 m
tram-station
Statie Regele Carol I Tv2, Tv1, Tv8
Stații tramvai aprox. 247 m
train-station
Gara de Nord
Stații tren aprox. 950 m
trolleybus-station
Statie Pop de Basesti T11, T14, T18
Stații troleibuz aprox. 1075 m
Școală
kindergarten
Gradinita Program Prelungit Nr. 14
Gradinițe aprox. 89 m
kindergarten
Gradinita Program Normal Nr. 17
Gradinițe aprox. 98 m
school
COLEGIUL NATIONAL BANATEAN si LICEU TEORETIC "DOSITEI OBRADOVICI"
Școli aprox. 157 m
university
ELIM Evanghelical Theological Seminary (en)
Universități aprox. 425 m
Recreere
sports-ground
Teren sportiv
Terenuri sport aprox. 204 m
supermarket
Profi Piata Sinaia
Supermarket aprox. 321 m
public-square
Piata Sinaia
Piețe publice aprox. 388 m
park
Parcul Doina
Parcuri aprox. 774 m

Detalii despre preț și costuri

Prețul pe piață

Preț cerut: 62.400 €

Preț min. zonă
Preț max. zonă

83% dintre proprietățile similare ca zonă și nr. camere au prețul cerut mai mare. mai multe...

Bine de știut: prețul unei proprietăți este influențat și de alte caracteristici, cum ar fi: vechime, localizare, vecinătăți, suprafață, compartimentare, amenajări, dotări, etc. mai puțin...

Insight premium disponibil după login

Costuri cu achiziția

Fără credit
Credit ipotecar
Noua casă

i

Costuri adiționale mai puțin știute la achiziție: taxe notariale, comisioane etc.

Insight premium disponibil după login

Proprietăți similare

Garsonieră decomandată în Buziașului
59.990 €
Timișoara, Buziașului
1 camere
37 mp
Etaj 5
Garsonieră nedecomandată în Iosefin
62.000 €
Timișoara, Iosefin
1 camere
41 mp
Parter / 1
Garsonieră decomandată, mobilată în Aradului
68.000 €
Timișoara, Aradului
1 camere
30 mp
Etaj 2 / 10

Detalii de contact

Direct Proprietar

Reprezentant

Direct Proprietar

Abonează-te la newsletter să fii primul care primește cele mai noi recomandări de proprietăți și sfaturi de la experți.

Feedback apel

CONTACT

Creează alertă

Salvează căutarea ca să primești pe email ultimele anunțuri publicate

Garsoniere de vânzare în zona Iosefin, Timișoara