Bijuterie istorică transformată în lux modern: Proprietate unică în Sânpetru

2.350.000 €

Ultracentral, Brașov

An constr.:
1890 (La gri)
  • • Locație aproximativă

Descriere spațiu comercial

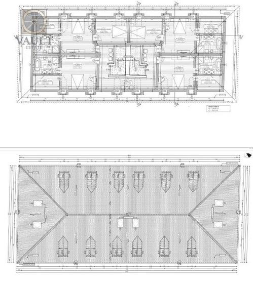
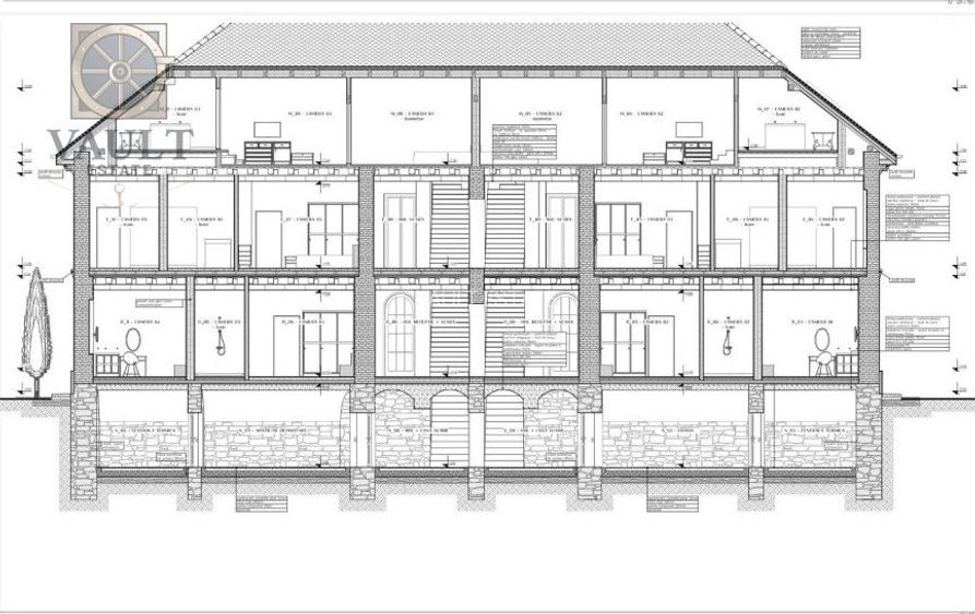
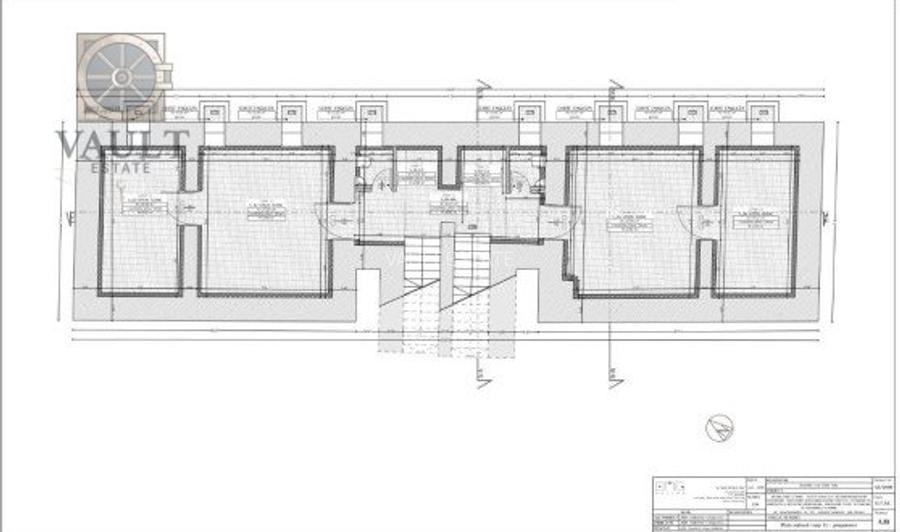
COD PROPRIETATE: P39794 Vault Estate vă propune o proprietate deosebită, încărcată de istorie și cu un potențial excepțional pentru dezvoltare. Situată în inima pitoreștii localități Sânpetru,în cea mai apropiată suburbie a Brașovului, în regiunea istorică Țara Bârsei, această clădire emblematică, cunoscută drept Școala Evanghelică Săsească, reprezintă o oportunitate rară pentru investitori, dezvoltatori sau pasionații de patrimoniu istoric. O istorie profundă, un viitor strălucit Această școală, care de-a lungul secolelor a fost martorul educării generațiilor de tineri din comunitatea săsească, își scrie astăzi un nou capitol. Deși trecutul său este adânc înrădăcinat în istoria localității – Sânpetru fiind atestat documentar încă din 1240, sub numele de Mons Sancti Petri – clădirea este astăzi pe punctul de a se transforma într-un hotel boutique exclusivist și centru de evenimente premium. Renovările actuale respectă linia arhitecturală tradițională săsească, păstrând detaliile care conferă autenticitate locului, dar adăugând totodată toate elementele necesare confortului modern. Detalii despre proprietate : Proprietatea se întinde pe un teren generos de 2.474 mp și include două clădiri principale, dispuse în formă de „L”, înconjurând o curte interioară superb amenajată peisagistic. Clădirea principală : Aceasta are o suprafață construită totală de 1.510 mp, dispusă pe 4 niveluri – subsol, parter, etaj și mansardă. Fiecare dintre acestea este proiectat pentru a găzdui funcțiuni specifice, îmbinând utilitatea cu estetica: Subsolul: un spațiu ideal pentru o cramă, unde vizitatorii pot experimenta degustări de vinuri alese într-un decor autentic și intim. Parterul: zone de luat masa și spații de socializare, cu o arhitectură elegantă, păstrând detalii originale precum tavanele înalte, arcadele săsești și zidurile groase, caracteristice construcțiilor din acea epocă. Etajul și mansarda: camere generoase, fiecare cu baie proprie și dressing, menite să ofere oaspeților un confort de neegalat. Designul interior este gândit să îmbine elementele tradiționale, precum grinzile de lemn expuse, cu facilități de lux. Clădirea secundară Aceasta este deja complet renovată, având o suprafață construită de 408 mp distribuită pe două niveluri. Cu finisaje premium și un design modern, clădirea poate fi utilizată imediat. Parterul: găzduiește o bucătărie spațioasă, complet echipată, și un salon ideal pentru organizarea de evenimente restrânse, cine festive sau mese pentru grupuri mici. Etajul: include două apartamente complet mobilate, fiecare gândit pentru a oferi intimitate și confort. Curtea interioară – un colț de rai peisagistic Curtea interioară a fost amenajată cu grijă pentru a crea o atmosferă de poveste. Gazonul impecabil, aleile pietruite și vegetația variată – de la pomi fructiferi la magnolii spectaculoase – contribuie la un peisaj care încântă privirile în orice anotimp. Primăvara, magnoliile înfloresc într-un spectacol de culori, iar vara, verdele intens al copacilor oferă o oază de răcoare. Localizare privilegiată : Proprietatea este situată în centrul istoric al Sânpetrului, la doar câțiva pași de impresionanta Biserică Evanghelică Fortificată, construită în 1794 pe temelia unei biserici din secolul al XIII-lea. Această biserică, împreună cu întreaga zonă, creează un context turistic deosebit, oferind vizitatorilor o incursiune în istoria și cultura sașilor transilvăneni. De asemenea, Dealul Lempeș, o rezervație naturală situată în apropiere, completează peisajul idilic. Priveliștea de pe terenul proprietății este una impresionantă, oferind un refugiu departe de agitația urbană, dar cu acces facil către Brașov, aflat la doar câțiva kilometri distanță. Această proprietate se remarcă prin potențialul său extraordinar, fiind ideală pentru: Hotel boutique: Camerele generoase, spațiile comune elegante și proximitatea față de Brașov fac din această proprietate o alegere excelentă pentru un refugiu turistic de lux. Centru de evenimente: Saloanele spațioase și curtea interioară fermecătoare sunt perfecte pentru organizarea de nunți, botezuri, petreceri private sau evenimente corporate. Spațiu mixt: Un hotel cu funcțiuni suplimentare, precum restaurant, cramă, spa sau centru de conferințe, poate răspunde diverselor nevoi ale turiștilor și localnicilor. Concluzie Fosta Școală Evanghelică Săsească din Sânpetru nu este doar o clădire cu valoare istorică, ci și o oportunitate rară de a transforma un simbol al patrimoniului local într-un proiect modern, cu relevanță turistică și culturală. Această proprietate reprezintă mai mult decât o investiție – este șansa de a deveni parte dintr-o poveste care continuă să inspire generații.
Citește mai mult Citește mai puțin
Electricitate Apă Canalizare

Detalii spațiu comercial

ID anunț: XDTA140OI Copiat! 275335546 Copiat!
Actualizat în: 23 Martie 2026
Etaj: P+2E

Puncte de interes

Mijloace transport
airport
Aerodromul Sanpetru-Brasov
Aeroporturi aprox. 1450 m
Recreere
park
Loc de joaca
Parcuri aprox. 796 m
restaurant
Hotel Bielmann
Restaurant aprox. 859 m
sports-ground
Teren sportiv
Terenuri sport aprox. 893 m

Proprietăți similare

Spațiu comercial, de 2,000 mp, în Exterior Est
2.500.000 €
Brașov, Exterior Est
2.000 mp utili
Casă/Vilă
2E
Birou, 1985 mp în Blumăna
2.380.000 €
Brașov, Blumăna
1.985 mp utili
Clădire de birouri
2E
Hotel/Pensiune, de 2,000 mp, în Exterior Est
2.500.000 €
Brașov, Exterior Est
2.000 mp utili
2005

Detalii de contact

VAULT ESTATE

Rares Leanca

5.00(4 review-uri)

VAULT ESTATE
PRO

Abonează-te la newsletter să fii primul care primește cele mai noi recomandări de proprietăți și sfaturi de la experți.

CONTACT

Creează alertă

Salvează căutarea ca să primești pe email ultimele anunțuri publicate

Spații comerciale cu 4+ camere de vânzare în zona Ultracentral, Brașov