Complex turistic complet funcțional | Piscină, restaurant, 1.800 m

1.650.000 €

Rășinari, Județul Sibiu

Nr. cam.:
33
Sup. utilă / mp. utili:
1.350 mp
Sup. teren:
3.200 mp
Loc. parc.:
15
  • • Comision 0%
  • • Exclusivitate
  • • Locație exactă

Descriere spațiu comercial

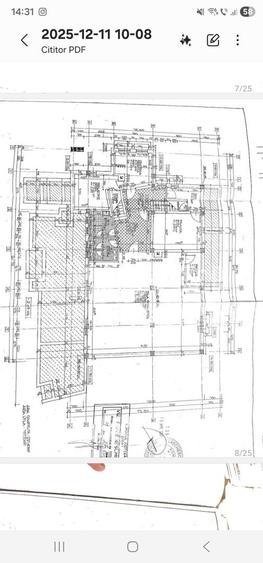
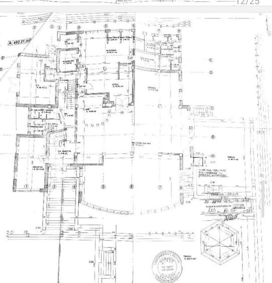
Vila turistică complexă, complet funcțională, cu multiple surse de venit Vă propunem spre vânzare Vila , o proprietate turistică de mari dimensiuni, ideală pentru pensiune, hotel boutique, centru de evenimente sau azil de bătrâni, amplasată pe un teren generos de 3.200 mp, cu o suprafață construită de aproximativ 1.800 mp. Structură și compartimentare: -10 apartamente compuse din 2 camere și baie proprie; -9 camere cu baie proprie; -3 camere triple (câte una pe fiecare nivel) -6 camere duble Ea este structurata astfel: Demisol: sală de biliard și ping-pong, sală de conferințe, grup sanitar (2 toalete), pivnita/spatiu de depozitare, spalatorie cu uscatorie, camera tehnica, depozite(spatii de depozitare) si toalete de personal, o incapere mare/spatiu depozitare; Parter: hol de acces, receptie, restaurant cu acces pe terasa; bucatarie complet amenajata( camera frigorifica) cu iesiri pentru aprovizionare, toalete, camera centralei:; Etaj 1: 3 apartamente a cate doua camere si baie proprie, 2 camere duble cu baie, si o camera tripla cu baie, 2 terase mari, cu acces din fiecare incapere, si un balcon; Etaj 2: 3 apartamente a cate doua camere si baie proprie, 2 camere duble cu baie, si o camera tripla cu baie, balcoane, (un apartament nu are acces la balcon) Etaj 3: 3 apartamente a cate doua camere si baie proprie, 2 camere duble cu baie, si o camera tripla cu baie, balcoane (o camera tripla nu are acces la balcon); Mansardă formată din: 3 camere cu baie proprie, un apartament cu doua camere si baie, cameră dedicată personalului cu baie; Facilități și dotări: Restaurant cu bucătărie complet utilată Cameră frigorifică Piscină exterioară (8,5 m x 4,5 m) cu sistem de încălzire prin panouri solare 52 panouri fotovoltaice – 25 kW Post trafo propriu – 62 kW Stație de epurare Apă din sistem forat / fântână Încălzire pe lemne și peleți Construcție solidă din cărămidă cu cadre de beton Acoperiș din tablă Autorizații și funcționalitate: Autorizații PSI Autorizație pentru senzori de fum Clarificare și prezență pe platforme turistice: Infoturist Booking Destinație multiplă: Proprietatea este pretabilă pentru azil de bătrâni, centru de recuperare, pensiune turistică sau unitate mixtă (cazare + evenimente), având infrastructura și autorizațiile necesare pentru funcționare imediată. Preț de vânzare: 1.650.000 € Telefon: Mariana
Citește mai mult Citește mai puțin
15 Parcări Electricitate Apă Canalizare

Detalii spațiu comercial

ID anunț: XBM414013 Copiat! 274775406 Copiat!
Actualizat în: 03 Aprilie 2026
Tip tranzacție: De vânzare prin agent
Etaj: S+D+P+2E+M
An construcție: 2007 (Finalizată)
Modalitate de plată: Cash sau Credit

Utilități

Comision
0%

Disponibilitate proprietate:

Imediat

Puncte de interes

Recreere
sports-ground
Teren sportiv
Terenuri sport aprox. 1467 m
restaurant
Vila Briana
Restaurant aprox. 1869 m

Proprietăți similare

Spațiu comercial, de 915.45 mp, în Central
1.700.000 €
Sibiu, Central
915,45 mp utili
Clădire de birouri
Spațiu comercial, de 1,015 mp, în Central
1.595.000 €
Sibiu, Central
1.015 mp utili
Clădire de birouri
3E
Birou, de 1,000 mp, în Hipodrom 1
1.595.000 €
Sibiu, Hipodrom 1
1.000 mp utili
Clădire de birouri
3E

Detalii de contact

Ideal Imobiliare Sibiu

Mariana Bozesan Broker imobiliar

Ideal Imobiliare Sibiu
PRO

Abonează-te la newsletter să fii primul care primește cele mai noi recomandări de proprietăți și sfaturi de la experți.

CONTACT

Creează alertă

Salvează căutarea ca să primești pe email ultimele anunțuri publicate

Spații comerciale cu 4+ camere de vânzare în Rășinari, Județul Sibiu