Dezvoltatorul imobiliar Vitus Residence iti pune la dispozitie unul dintre cele mai noi proiecte urbane premium din Brasov: VITUS RESIDENCE, ansamblu localizat exclusiv in zona de case, cu acces facil in zona ultracentrala, situat pe Mihai Viteazul nr 87, vis-à-vis de Academia Fortelor Aeriene ’Henri Coanda’’.
In cadrul acestui proiect te intampinam cu o diversa si o dinamica oferta de locuinte, care sa satisfaca si sa se plieze pe diversele stiluri de viata. Astfel in VITUS Residence poti opta pentru apartamente cu 1/ 2 / 3 camere si Penthouse-uri, spatioase, cu compartimentare adecvata unui stil de viata asa cum ti-l propui, într-o clădire care combină luxul, confortul și sustenabilitatea
Ideal amplasat, Vitus Residence este poarta ta către viața de zi cu zi în orașul Brașov, zonele de shopping, parcurile verzi și instituțiile de învățământ - toate la doar câțiva pași distanță. Este locul perfect pentru familiile tinere sau oricine își dorește să trăiască viață urbană, dar fără a renunța la liniștea și confortul oferit de natură.
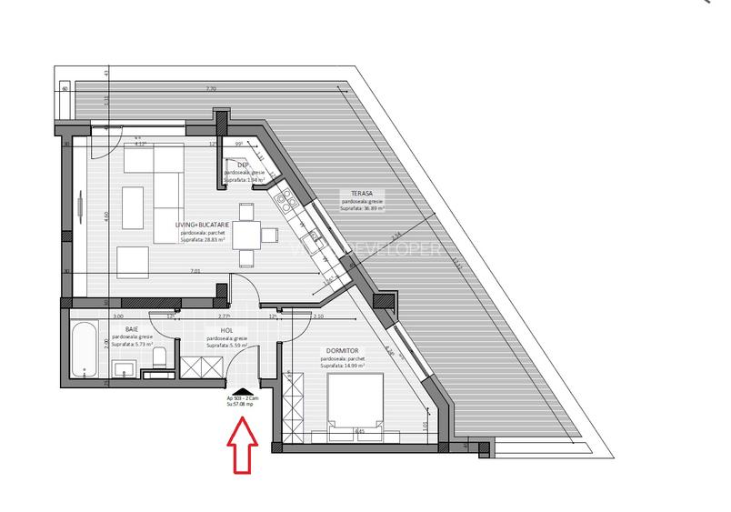
Penthouse-ul propus la vanzare se preda la cheie si beneficiaza de urmatoarele :
- suprafata utila 57 mp + o terasa generoasa de 70 mp
- contorizari individuale pentru toate utilitatile
- incalzire in pardoseala in standard, fara costuri suplimentare ( Rehau )
- videointerfon
- doua bai utilate ( HansGrohe / Roca)
Schita apartamentului se regaseste anexata in anunt !
Modalitatile de plata prin care se pot achizitiona apartamentele noaste sunt diverse, inclusive transe / rate direct la dezvoltator sau credite bancare imobiliare (*pentru informatii complete cu privire la acestea, va rugam sa ne contactati)
Construit cu gândul la durabilitate, fiecare apartament este proiectat să maximizeze eficiența energetică și confortul, folosind materiale de înaltă calitate și tehnologii inovatoare, astfel :
- ansamblu nostru are o inaltime medie: S+P+4E+Etaj Retras, cu vedere panoramica spre Tampa si Postavaru.
- localizare centrala, intr-o zona exclusiv de case, cu acces facil spre centru istoric, supermarket-uri, scoli, farmacii etc
- la numai 7 km distanta de Aeroportul Ghimbav !
- inaltimea interioara este de 2,75 m gandita special pentru a spori gradul de confort al locuintei
- materiale si finisaje de calitate adaptate pentru un ansamblu premium
- izolatie exterioara cu vata bazaltica
- suprafete vitrate pe toata inaltimea camerelor ( Veka – 3 foi sticla – HP10)
- casa scarii luminata cu lumina naturala
- Lift, cu acces inclusiv din subsol, unde se afla parcarile subterane si boxele
- acces securizat in complex cu bariera la intrare, care poate fi deschisa din smartphone-ul dvs.
Pentru vizionarea apartamentelor noastre si pentru stabilirea unei intalniri la biroul de vanzari, va rugam sa ne contactati telefonic sau pe whatsapp ,la numarul de telefon afisat in anunt.
*Preturile afisate nu contin TVA
*Este posibil ca unele poze sa fie cu titlu informativ sau randari 3D
80%dintre proprietățile similare ca zonă și nr. camere au prețul cerutmai mare.
mai multe...
Bine de știut: prețul unei proprietăți este influențat și de alte caracteristici, cum ar fi: vechime, localizare, vecinătăți, suprafață, compartimentare, amenajări, dotări, etc.
mai puțin...
Costuri cu achiziția
Fără credit
11.207 RON
Credit ipotecar
13.346 RON
Noua casă
1.373 RON+ taxe notariale
i
Costuri adiționale mai puțin știute la achiziție: taxe notariale, comisioane etc.
Calculul ipotecarului
Proprietăți recomandate
Pornind de la căutarea ta îți recomandăm următoarele anunțuri
Sediul central - Timișoara
Bulevardul Victor Babeș nr. 2, 300230, Timișoara, România
Tel: +40.374.40.44.98 / Fax: +40.256.401.179
Email: suport@imobiliare.ro
Luni - Vineri 08:00 - 20:00
Punct de lucru - București: Iride Business Park, Bld. Dimitrie
Pompeiu 9-9A, Clădirea B2B,
020335, Sector 2, București, România
CONTACT
Sediul central - Timișoara
Bulevardul Victor Babeș nr. 2, 300230, Timișoara, România
Tel: +40.374.40.44.98 / Fax: +40.256.401.179
Email: suport@imobiliare.ro
Luni - Vineri 08:00 - 20:00
Punct de lucru - București: Iride Business Park, Bld. Dimitrie
Pompeiu 9-9A, Clădirea B2B,
020335, Sector 2, București, România
Sună acum și cere detalii sau programează o vizionare.
Cere detalii prin email
*
*
*
*
Stații autobuz
Stații tren
Gradinițe
Școli
Universități
Supermarket
Parcări
Terenuri sport
Parcuri
Farmacie
Spital
Restaurant
Bar
Pub
Cafenea
Bancă
Autogara 2 Brasov (Transbus)
aprox.
317 m
Statia "Autogara 2", linia 12,22
aprox.
343 m
Statia "Stadionul Tineretului", linia 3,5barat,23,23barat,16
aprox.
387 m
Statia "Ecaterina Teodoroiu", linia 9,29
aprox.
424 m
Statia "Morii", linia 12,22
aprox.
435 m
Statia "Stadionului", linia 41
aprox.
452 m
Stadionului
aprox.
463 m
Academia Henri Coanda
aprox.
487 m
Fartec
aprox.
491 m
Statia "Razboieni", linia 3,5barat,16, 23, 23barat,40
aprox.
493 m
Statia "Fartec", linia 3,5barat, 16,23,23barat
aprox.
501 m
Morii
aprox.
504 m
Statia "Morii", linia 41
aprox.
514 m
Statia "Ioan Huniade", liniile 9,29
aprox.
527 m
Plevnei
aprox.
587 m
Gara Bartolomeu
aprox.
971 m
Gradinita privata Gretel Kindergarten
aprox.
189 m
Gradinita Iolanda
aprox.
321 m
Gradinita cu program prelungit nr. 7 (fosta nr. 63)
aprox.
472 m
Gradinita cu program normal nr. 4 (fosta nr. 15)
aprox.
517 m
Gradinita cu program prelungit nr. 6 (fosta nr. 35)
aprox.
588 m
Gradinita Nr. 11
aprox.
611 m
Gradinita cu program prelungit nr. 11 (fosta nr. 56)
aprox.
623 m
Cresa Nr. 5
aprox.
638 m
Gradinita cu program normal nr. 5 (fosta nr. 20)
aprox.
905 m
Gradinita cu program normal nr. 3A (fosta nr. 7)
aprox.
934 m
Gradinita privata Happy Kids
aprox.
955 m
Gradinita cu program normal nr. 35 (fosta nr. 69)
aprox.
1093 m
Gradinita cu program saptamanal nr. 9 (fosta nr. 34)
aprox.
1109 m
Gradinita cu program normal nr. 4A (fosta nr. 22)
aprox.
1312 m
Gradinita cu program prelungit nr. 11A (fosta nr. 65)
aprox.
1371 m
Academia Fortelor Aeriene "Henri Coanda"
aprox.
238 m
Colegiul Tehnic de Construcții și Arhitectură "Christian Kertsch"
aprox.
408 m
Colegiul de Arhitectura
aprox.
456 m
Colegiul Economic Andrei Barseanu
aprox.
504 m
Colegiul National Economic "Andrei Barseanu"
aprox.
517 m
Scoala Nr.15 Corp B
aprox.
545 m
Scoala generala nr.15
aprox.
557 m
Școala Generală nr. 14
aprox.
684 m
Scoala Nr.15
aprox.
768 m
Scoala Gimnaziala nr.15
aprox.
768 m
Grupul Scolar Auto
aprox.
829 m
Scoala generala nr 24
aprox.
882 m
Scoala Generala Nr. 12
aprox.
890 m
Scoala Gimnaziala Nr.12
aprox.
890 m
Scoala Generala nr 30
aprox.
1034 m
Universitatea Creștină "Dimitre Cantemir"
aprox.
709 m
Cantina Studenteasca si Corpul Z
aprox.
876 m
Universitatea Transilvania
aprox.
1070 m
Campus Colina Universitatii
aprox.
1174 m
Corpul V al Universitatii Transilvania
aprox.
1208 m
Universitatea Transilvania Corp V
aprox.
1208 m
Corpul C
aprox.
1213 m
Corpul B
aprox.
1223 m
Corpul V
aprox.
1232 m
Corpul A
aprox.
1260 m
Facultatea de Matematica si Informatica. Corp "P"
aprox.
1809 m
Corp P
aprox.
1809 m
Universitatea Transilvania Corp T
aprox.
1915 m
Universitatea Europeana Dragan
aprox.
1924 m
Corpul T al Universitatii Transilvania (en)
aprox.
1939 m
Kaufland
aprox.
506 m
Sergiana
aprox.
634 m
Profi
aprox.
992 m
Penny Market
aprox.
1135 m
Rapid Gospodarilor
aprox.
1319 m
Profi
aprox.
1385 m
Sergiana
aprox.
1404 m
Carrefour Market
aprox.
1550 m
API Biomania
aprox.
1810 m
Unirea Shopping Center
aprox.
1840 m
Lidl
aprox.
1855 m
Sergiana
aprox.
1911 m
Auchan
aprox.
1991 m
Eliana Mall
aprox.
1996 m
Parcare
aprox.
406 m
Parcare
aprox.
505 m
Parcare
aprox.
605 m
Parcare
aprox.
632 m
Parcare
aprox.
689 m
Parcare
aprox.
781 m
Parcare
aprox.
784 m
Parcare
aprox.
830 m
Parcare
aprox.
835 m
Parcare
aprox.
843 m
Parcare
aprox.
844 m
Parcare
aprox.
856 m
Parcare
aprox.
898 m
Parcare
aprox.
944 m
Parcare
aprox.
945 m
Teren Sport
aprox.
397 m
Loc de Joaca
aprox.
818 m
Loc de Joaca
aprox.
935 m
Teren sportiv
aprox.
1633 m
Teren sportiv
aprox.
1663 m
Teren baschet
aprox.
1705 m
Teren sportiv
aprox.
1714 m
Teren sportiv
aprox.
1738 m
Teren sportiv
aprox.
1757 m
Teren sportiv
aprox.
1776 m
Loc de Joaca
aprox.
1830 m
Teren sportiv
aprox.
1831 m
Teren minifotbal
aprox.
1862 m
Teren sportiv
aprox.
1873 m
Park around the bridge (en)
aprox.
609 m
Zona verde
aprox.
889 m
Fosta cariera de piatra Bartolomeu
aprox.
911 m
Park (en)
aprox.
922 m
Parc
aprox.
922 m
basketball park
aprox.
1061 m
Parc
aprox.
1077 m
Parc
aprox.
1122 m
Parc
aprox.
1122 m
Spațiu verde
aprox.
1136 m
Small green area
aprox.
1188 m
Park and monument (en)
aprox.
1219 m
Parc
aprox.
1219 m
Green area (en)
aprox.
1315 m
Parc
aprox.
1339 m
Farmacia Santa
aprox.
512 m
HelpNet
aprox.
951 m
Sensiblu
aprox.
1151 m
Farmacom
aprox.
1391 m
Farmacie
aprox.
1877 m
Toro Optic Ophtalmologie
aprox.
1922 m
Farmacie
aprox.
1978 m
Spitalul ICCO (en)
aprox.
520 m
Spital Clinicco
aprox.
532 m
Spitalul de copii
aprox.
568 m
Spitalul Clinic de Copii / Children Hospital
aprox.
590 m
Policlinica Studenteasca
aprox.
853 m
Spitalul de boli infectioase
aprox.
1009 m
Centrul de diagnostic si tratament oncologic
aprox.
1113 m
Pavilioanele Marzescu
aprox.
1368 m
Hospice Casa Sperantei
aprox.
1375 m
Spitalul Marzescu
aprox.
1382 m
Centrul de Transfuzie Sanguina
aprox.
1473 m
Centrul de Recoltare Sânge
aprox.
1483 m
Bioclinica
aprox.
1502 m
Spitalul de Neuropsihiatrie
aprox.
1617 m
Spitalul Tractorul
aprox.
1681 m
Casa Tudor
aprox.
575 m
Hotel Casa Muresan
aprox.
581 m
Casa Tudor
aprox.
585 m
MaCocotte
aprox.
658 m
Hotel Rainer
aprox.
666 m
Caffino
aprox.
682 m
Hotel Long Street 3*
aprox.
712 m
Restauran Memo
aprox.
835 m
Hotel Oasis
aprox.
881 m
La Casa Bistrițeană
aprox.
980 m
Pensiunea Ambra
aprox.
1073 m
Restaurant Panonia
aprox.
1286 m
Restaurant Fox
aprox.
1314 m
Cetatuia
aprox.
1464 m
Cetatuia Brasovului
aprox.
1466 m
Propaganda
aprox.
826 m
Croitoria de cafea
aprox.
1799 m
Karma Lounge
aprox.
1833 m
Melody
aprox.
1446 m
The Vintage Pub
aprox.
1769 m
Formula Pub
aprox.
1863 m
Kasho Lounge
aprox.
1779 m
La Strada
aprox.
1798 m
Galleria Art & Coffe
aprox.
1836 m
Danik Kaffee
aprox.
1877 m
ING
aprox.
610 m
ING Bank
aprox.
621 m
BCR
aprox.
671 m
Banca Transilvania
aprox.
686 m
Banca Transilvania
aprox.
944 m
Piraeus Bank
aprox.
963 m
Banca ING
aprox.
1075 m
CEC Bank
aprox.
1082 m
Millennium Bank
aprox.
1086 m
Garanti Bank
aprox.
1321 m
Banca Romaneasca
aprox.
1411 m
Unicredit Tiriac
aprox.
1423 m
BCR Onix
aprox.
1621 m
Banca Transilvania
aprox.
1653 m
Piraeus Bank
aprox.
1739 m
Dacă decizi să te muți în cartierul Brașovul Vechi, vei avea la dispoziție mai multe mijloace de transport public în comun cu care te poți deplasa foarte ușor în alte zone ale orașului. Concret, cartierul este traversat de trei linii de autobuz. Este vorba de autobuzul 5, care leagă Stadionul Municipal de Roman, autobuzul 14, care circulă pe traseul Livada Poștei - Fabrica de Var, și autobuzul 28, care pornește din Livada Poștei și are capăt de linie la Fundăturii. Totodată, la marginea cartierului mai circulă două linii de autobuz. Și anume, linia 22, care pornește de la Stadionul Tineretului și are capăt la Saturn, și linia 41, care circulă pe traseul Lujerului - Livada Poștei. De asemenea, la limita cu cartierul Blumăna, Brașovul Vechi mai este străbătut de trei linii de autobuz. Autobuzul 1 leagă Livada Poștei de Triaj, autobuzul 2 circulă pe traseul Livada Poștei - Rulmentul, iar linia 4 leagă Liva Poștei de Gara Brașov.
Între granițele acestui cartier nu ai foarte multe alternative din punct de vedere educațional. Concret, găsești o singură unitate de învățământ de stat. Astfel, pe str. Colonel Ion Buzoianu funcționează Liceul Vocațional de Muzică "Tudor Ciortea". De asemenea, în zonă își desfășoară activitatea un centru educațional care oferă cursuri IT, situat pe str. Doctor Ion Rațiu, un altul artistic, pe str. Doctor Ion Rațiu, și o școală teologică destinată persoanelor de etnie romă, pe str. Alexandru Ioan Cuza. Însă mai multe oportunități sunt în cartierul vecin Blumăna. Aici își desfășoară activitatea Universitatea Transilvania, cea mai mare instituție de învățământ superior din centrul României, care numără 18 facultăți. Totodată, în Blumăna găsești și cinci licee și colegii la care poți să-ți înscrii copilul.
Pentru cumpărături, în cartierul Brașovul Vechi găsești, pe lângă micile magazine, și un supermarket Lidl, pe str. Alexandru Ioan Cuza. În zonă nu își desfășoară activitatea niciun mall, însă un centru comercial găsești în apropiere, în cartierul vecin. Este vorba de Star, în care sunt deschise diferite magazine de unde poți să cumperi ce ai nevoie. Aici găsești și un supermarket Carrefour. Totodată, în cartierul vecin Blumăna poți să faci cumpărături de la un alt supermarket Carrefour, plus unul Mega Image și altul Profi.
Pentru că vorbim de un cartier aflat în centrul orașului Brașov, cea mai aglomerată zonă, există o problemă privind găsirea cu ușurință a unui loc de parcare în Brașov Vechi.
La capitolul recreere, cartierul Brașovul Vechi stă foarte bine. Parcul Central "Nicolae Titulescu", cel mai mare din Brașov, se află în zonă. Acesta datează din jurul anului 1885 și este unul modern și bine întreținut. Nu foarte departe găsești și Parcul "Livada Poștei", ideal pentru plimbări relaxante în natură. De asemenea, în apropiere de Casa Armatei se află o frumoasă fântână arteziană, cea mai veche din Brașov, fiind realizată în jurul anului 1900. Un alt obiectiv turistic important este reprezentat de Cetățuia de pe Strajă, una dintre cele mai importante fortificații medievale din România. Totodată, foarte aproape de acest cartier se află Biserica Neagră, simbolul orașului Brașov.
Din punct de vedere medical, în cartierul Brașov Vechi își desfășoară activitatea Spitalul de Psihiatrie și Neurologie, pe str. Mihai Eminescu. De asemenea, în apropiere, pe str. Nicolae Iorga, funcționează trei clinici medicale private: prima tratează varicele, a doua psoriazisul, iar a treia diferite răni. Între granițele acestui cartier funcționează și un spital privat de recuperare medicală, pe str. Lungă, iar lângă el, pe aceeași stradă, găsești și un laborator medical particular, precum și o clinică de stomatologie. De asemenea, un alt centru medical modern se află și pe str. Alexandru Ioan Cuza.
Dacă intenționezi să iei masa în oraș, la capitolul gastronomie găsești în cartierul Brașovul Vechi mai multe alternative. De menționat ar fi o cafenea selectă situată pe str. Colonel Ion Buzoianu, și un restaurant cu bar, pe str. Alexandru Ioan Cuza. De asemenea, un restaurant cu specific italian găsești pe str. Doctor Ion Cantacuzino, unul cu preparate la grătar pe str. Crișan, iar alte două cu specific internațional pe str. Șirul Livezii și pe str. Lungă. Pentru o ofertă și mai diversificată, poți merge în cartierul vecin Blumăna, unde se află și Biserica Neagră, simbolul orașului Brașov, în jurul căreia găsești numeroase cafenele și restaurante pentru toate gusturile.
Din punct de vedere bancar, în cartierul Brașovul Vechi nu ai alternative. Însă acest lucru nu ar trebui să reprezinte o mare problemă, în condițiile în care în cartierul Blumăna, aflat în apropiere, găsești numerose sucursale bancare și bancomate alte unor bănci precum Banca Transilvania, BRD, Raiffeisen Bank sau UniCredit Bank.
Înainte să pleci...
Ești sigur că ai văzut și aceste proprietăți?
259.900 € + TVA
Brașov, Central
3 camere
116 mp
Etaj 5 / 5
635.000 €
Brașov, Blumăna
5 camere
273 mp
Etaj 10 / 10
460.000 € + TVA
Brașov, Brașovul Vechi
4 camere
150 mp
Etaj 3 / 3
209.500 €
Brașov, Tractorul
3 camere
83 mp
Etaj 4
126.900 € + TVA
Brașov, Central
2 camere
53 mp
Etaj 4 / 5
295.000 €
Brașov, Centrul Civic
4 camere
126 mp
Etaj 7
Creează alertă
Salvează căutarea ca să primești pe email ultimele anunțuri publicate
Penthouses cu 2 camere de vânzare în zona Central, Brașov
Cere detalii prin email
*
*
*
*
Detaliile tale de contact vor fi partajate cu Vitus Developer
Statistici proprietate
Penthouses 2 camere de vânzare
120.000 €
Medie preț cerut la vânzare
2.267 €/mp
Medie preț cerut pe metru pătrat
550 €
Medie chirie lunară
Preț total1.243.846 RON (244.078 €)
Costuri cu achiziția11.207 RON
Preț de achiziție1.232.639 RON
Costuri cu achiziția11.207 RON
Comision agenție Întreabă agenţia
Onorariu notarial9.358 RON
Taxă înscriere OCPI1.849 RON
Preț de achiziție1.232.639 RON
Preț locuință1.018.710 RON
TVA 21%213.929 RON
Cost total200.932 RON (39.428 €)
Avans (15%)184.896 RON
Cost achitat în prima lună2.690 RON
Costuri cu achiziția13.346 RON
Cost achitat în prima lună2.690 RON
Comision analiză dosar
400 RON - 900 RON
Taxă evaluare imobil(până la)
575 RON
Rata lunară (variabilă)5.491 RON
Asigurare anuală imobil1.233 RON
Arhivă electronică102 RON
Poliță PAD130 RON
Asigurare de viață/lună Costul este variabil. În funcție de banca aleasă, procentul variază între 0.0259% și 0.035% din soldul creditului.
Costuri cu achiziția13.346 RON
Comision agenție Întreabă agenţia
Onorariu notarial9.358 RON
Taxă întabulare OCPI1.849 RON
Autentificare contract credit2.139 RON
Preț de achiziție1.232.639 RON
Preț locuință1.018.710 RON
TVA 21%213.929 RON
Preț de achiziție1.232.639 RON
Preț locuință1.018.710 RON
TVA 21%
213.929 RON
Avans minim626.203 RON
Credit pe 30 de ani606.436 RON
Cost achitat în prima lună
Taxa evaluare imobil(până la)
575 RON
Rata lunară (variabilă)4.261 RON
Depozit colateral12.783 RON
Comision de garantare FNGCIMM103 RON
Asigurare anuală imobil1.233 RON
Poliță PAD130 RON
Tarif arhivă electronică102 RON
Costuri adiționale1.373 RON + taxe notariale
Asigurare viață și complexă (opțională)Costul este variabil. În funcție de banca aleasă, procentul variază între 0.0259% și 0.035% din soldul creditului
Onorariu notarialconform tarif notarial
Taxă întabulare OCPI1.373 RON
i
Toate valorile de mai sus sunt estimative și nu reprezintă în mod obligatoriu costurile exacte pe care le veți primi de la companiile/instituțiile prin care veți încheia tranzacția.