Oferta duplex 4 camere zona Aviatiei - Pod Baneasa

577.000 € + TVA

Aviației, București

Nr. cam.:
4
Sup. utilă:
130 mp
Etaj:
7 / 7
An constr.:
2023
  • • Comision 0%
  • • Locație aproximativă

Descriere apartament

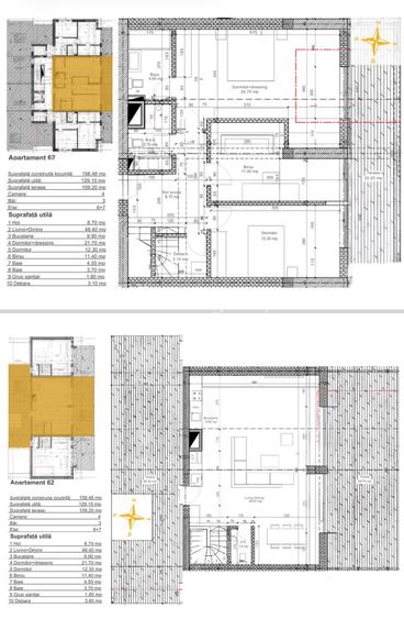
Daca esti in cautarea unei locuinte premium in zona de Nord a Bucurestiului, atunci te invitam sa vezi noul proiect cu apartamente finisate cu materiale de ultima generatie! Proiectul va ofera diferite tipuri de apartamente cu 2, 3 si 4 camere, toate beneficiind de suprafete interioare mari si terase generoase! Finisajele la exterior: tamplarie aluminium Schuco, fatada ventilata cu placi HPL si caramida aparenta tip Klinker, termoizolatie din vata minerala bazaltica (Rockwoll) Finisajele la interior: usi de tip Filomuro, sistem de incalzire prin pardoseala marca TECE, control smartphone, sistem de aerisire cu recuperare de caldura NovingAIR, pardoseala placata cu parchet triplu stratificat in living/dormitor/hol, baile placate cu placi ceramice de la Delta Studio, centrala termica Viessman Vitodens 24KW, aparataje electrice - marca Schneider, aparate aer conditionat marca Daikin in fiecare camera, baile echipate cu baterii si obiecte sanitare marca ROCA, terase placate cu pardoseala flotanta. Acest duplex cu 4 camere este situat la etajele 6 si 7 si are o suprafata utila 129,15 mp si 3 terase cu suprafete de 20,20 mp, 29,70 mp si respectiv 48,30 mp. Compartimentarea interioara este gandita, astfel incat, sa ofere fiecarui spatiu utilitate si confort. Superbul duplex este impartit astfel: la etajul 6 regasim zona de dormitoare unde avem un dormitor matrimonial cu dressing si baie proprie, doua dormitoare secundare, o baie, o debara, hol si o terasa cu acces din cele 3 dormitoare, iar la etajul 7 regasim zona de living cu bucatarie deschisa, zona de dining si acces la doua terase spatioase. In pretul acestui superb duplex aveti inclus un loc de parcare in subteran! Locurile de parcare se pot achizitiona separat, fiind disponibile la subsol -1 si -2. Pentru mai multe informatii si vizionari, nu ezitati sa ne contactati!
Citește mai mult Citește mai puțin
Confort lux 3 Balcoane / Terase / Logii Aer condiționat Centrală proprie Încălzire prin pardoseală

Detalii apartament

ID anunț: XF9I00008 Copiat! 231586791 Copiat!
Actualizat în: 29 Decembrie 2024
Suprafață utilă totală: 239 mp
Nr. bucătării: 1
Nr. băi: 3
Structură rezistență: Beton
Tip imobil: Bloc de apartamente
Regim înălțime: S+P+7E

Utilități

Pereți
Faianță Vopsea lavabilă
Podele
Gresie Parchet
Ușă intrare
Metal
Uși interior
Celulare
Izolații termice
Exterior
Ferestre cu geam termopan
Aluminiu
Contorizare
Contor gaz Apometre
Diverse
Telecomandă poartă acces auto
Alte spații utile
Terasă WC Serviciu
Facilități imobil
Lift Videointerfon
Utilități
Curent Apă Canalizare Gaze
Internet
Fibră optică
Amenajare străzi
Asfaltate Iluminat stradal Mijloace de transport în comun
Servicii imobil
Supraveghere video

Puncte de interes

Mijloace transport
tram-station
Apicola
Stații tramvai aprox. 387 m
bus-station
statie Apicola 605, 301, 112
Stații autobuz aprox. 448 m
metro-station
Metrorex. Stația Aurel Vlaicu (M2)(1987)
Stații metrou aprox. 1464 m
airport
Aeroportul Internațional Băneasa (Aurel Vlaicu) - LRBS (BBU)
Aeroporturi aprox. 1504 m
Școală
school
Scoala primara si gimnaziala MEA
Școli aprox. 175 m
school
Grup Scolar Industrial Henri Coanda
Școli aprox. 207 m
kindergarten
Gradinita
Gradinițe aprox. 600 m
university
Școala Superioară de Aviație Civilă - S.S.Av.C.
Universități aprox. 947 m
Recreere
supermarket
Lidl
Supermarket aprox. 370 m
park
Parc
Parcuri aprox. 605 m
sports-ground
Teren sportiv
Terenuri sport aprox. 1163 m
mall
Baneasa Shopping Center
Mall aprox. 1983 m

Detalii despre preț și costuri

Prețul pe piață

Preț cerut: 577.000 €

Preț min. zonă
Preț max. zonă

96% dintre proprietățile similare ca zonă și nr. camere au prețul cerut mai mic. mai multe...

Bine de știut: prețul unei proprietăți este influențat și de alte caracteristici, cum ar fi: vechime, localizare, vecinătăți, suprafață, compartimentare, amenajări, dotări, etc. mai puțin...

Insight premium disponibil după login

Costuri cu achiziția

Fără credit
Credit ipotecar
Noua casă

i

Costuri adiționale mai puțin știute la achiziție: taxe notariale, comisioane etc.

Insight premium disponibil după login

Proprietăți recomandate

Detalii de contact

Fitcon Agency

Andreea Chiru

Fitcon Agency

Abonează-te la newsletter să fii primul care primește cele mai noi recomandări de proprietăți și sfaturi de la experți.

CONTACT

Creează alertă

Salvează căutarea ca să primești pe email ultimele anunțuri publicate

Penthouses noi cu 4+ camere de vânzare în zona Aviației, Sector 1