Penthouse 4 Camere | 2 Terase | 259 mp | Iancu Nicolae

1.186.768 €

Iancu Nicolae, București

Nr. cam.:
4
Sup. utilă:
159 mp
Etaj:
4 / 4
An constr.:
2026 (Finalizată)
  • • Comision 0%
  • • Locație aproximativă
  • • Proprietate nelocuită
  • • Vizionare prin apel video

Descriere apartament

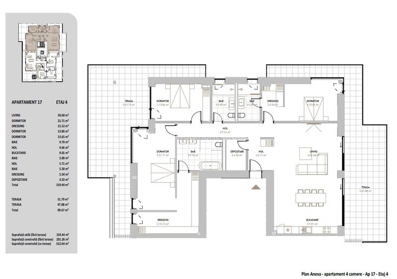
SI Development Group va prezinta spre vanzare un penthouse exclusivist de 4 camere, situat la etajul 4 al unui imobil boutique din zona Iancu Nicolae, conceput pentru un stil de viata modern, confortabil si rafinat. Cu o suprafata generoasa de peste 259 mp utili, incluzand terasele, aceasta proprietate se adreseaza celor care cauta un spatiu amplu, bine compartimentat si luminos, intr-una dintre cele mai apreciate zone rezidentiale din nordul capitalei. Apartamentul beneficiaza de doua terase generoase, cu suprafete de 51.79 mp si 47.88 mp, oferind multiple zone de relaxare si o conexiune naturala intre interior si exterior — un element definitoriu pentru acest tip de proprietate. Parte dintr-un proiect restrans, cu doar 17 unitati, apartamentul ofera intimitate, liniste si un nivel ridicat de exclusivitate, intr-o comunitate selecta. ___________________________________________________________ PROIECT & ARHITECTURA : Imobilul este realizat pe structura din beton armat, cu fatada ventilata placata cu materiale premium Dekton, fiind gandit pentru durabilitate, eficienta energetica si un design contemporan. → Regim de inaltime: 2S + P + 4E → Parcare subterana pe doua niveluri → Comunitate restransa – doar 17 apartamente → Termen de finalizare: Septembrie 2026 Tehnologiile integrate asigura un confort superior: → Pompa de caldura individuala → Incalzire in pardoseala → Ventiloconvectoare pentru racire → Sistem smart home Grenton ___________________________________________________________ DESIGN & FINISAJE : Fiecare detaliu este atent ales pentru a crea un ambient modern si elegant: → Tamplarie Schuco, cu suprafete vitrate ample → Parchet triplustratificat → Usi filomuro pentru un design minimalist → Obiecte sanitare Villeroy & Boch → Baterii premium Gessi → Terase amenajate cu pardoseala flotanta si balustrade din sticla ___________________________________________________________ SUPRAFETE : → Suprafata utila: 159.44 mp → Terasa 1: 51.79 mp → Terasa 2: 47.88 mp → Suprafata utila totala: 259.11 mp → Suprafata construita: 312.64 mp ___________________________________________________________ COMPARTIMENTARE : Spatiul este organizat eficient, cu delimitare clara intre zona de zi si zona de noapte: → Living generos de aproximativ 40 mp, cu zona de dining si acces direct catre terasa → Bucatarie open space, integrata natural in zona de zi → 3 dormitoare spatioase si bine proportionate → Dormitor matrimonial cu dressing dedicat → Dressinguri suplimentare si spatii de depozitare → 3 bai ___________________________________________________________ LOCALIZARE : Pozitionat in zona Iancu Nicolae, unul dintre cele mai cautate repere rezidentiale din nordul Bucurestiului, apartamentul beneficiaza de acces rapid catre principalele puncte de interes: → Scoli internationale: American School, British School, Cambridge School → Baneasa Shopping City, Jolie Ville, restaurante si cafenele → Padurea Baneasa si zone de recreere → Zona de business Pipera – Barbu Vacarescu → Aeroportul Otopeni Zona este recunoscuta pentru comunitatea internationala, siguranta si calitatea vietii. ___________________________________________________________ DETALII FINANCIARE : → Apartament nr. 17, etaj 4 (penthouse) → Pret: 980.800 Euro + TVA → Comision 0% pentru cumparator → Posibilitate achizitie locuri de parcare subterane, contra-cost → Oferim asistenta gratuita prin brokeri de credite parteneri, pentru obtinerea celei mai avantajoase solutii de finantare ___________________________________________________________ PREDARE : → Termen estimat: Septembrie 2026 → Predare complet finisata, conform standardelor proiectului ___________________________________________________________ Nota: Suprafetele sunt preluate din documentatia tehnica a dezvoltatorului si pot exista mici diferente fata de masuratorile finale. ___________________________________________________________ Pentru prezentare completa, schite si detalii suplimentare si vizionari, va stam la dispozitie atat pe site-urile de specialitate, WhatsApp cat si telefonic.
Citește mai mult Citește mai puțin
Confort lux Semidecomandat Acceptă animale de companie Nemobilat 2 Balcoane / Terase / Logii Aer condiționat Ventiloconvectoare Încălzire prin pardoseală Pompă caldură 2 Parcări Bine întreținut (Bună)

Detalii apartament

ID anunț: XACM00284 Copiat! 275395945 Copiat!
Actualizat în: 02 Aprilie 2026
Suprafață utilă totală: 258 mp
Suprafață construită: 312 mp
Nr. bucătării: 1
Nr. băi: 3
Structură rezistență: Beton
Tip imobil: Bloc de apartamente
Tip tranzacție: De vânzare prin agent
Regim înălțime: S+P+4E
Vizionare cu programare: Da
Modalitate de plată: Cash sau Credit

Utilități

Destinație
Rezidențial Birouri De vacanță
Pereți
Faianță Vopsea lavabilă
Podele
Gresie Parchet
Ușă intrare
Metal
Uși interior
Lemn
Izolații termice
Exterior
Ferestre cu geam termopan
Aluminiu
Contorizare
Contor gaz Apometre
Diverse
Senzor de fum Telecomandă poartă acces auto
Alte spații utile
WC Serviciu Debara
Facilități imobil
Lift Videointerfon
Utilități
Gaze Telefon Curent Canalizare Apă
Internet
Cablu Fibră optică Wireless
Servicii imobil
Supraveghere video
Amenajare străzi
Asfaltate Iluminat stradal Mijloace de transport în comun
Comision
0%

Vecinătăți:

EDUCATIE

→ American School of Bucharest
→ Cambridge School of Bucharest
→ Mark Twain International School
→ British School of Bucharest
→ Olga Gudynn International School

SHOPPING & SUPERMARKETURI

→ Lidl Iancu Nicolae
→ Mega Image Iancu Nicolae
→ Jolie Ville Galleria
→ Baneasa Shopping City
→ Metro Baneasa

NATURA & TIMP LIBER

→ Padurea Baneasa
→ Gradina Zoologica Bucuresti
→ Parcul Herastrau

STRAZI SI ACCES

→ Soseaua Iancu Nicolae
→ Bulevardul Pipera
→ Soseaua Bucuresti Nord
→ DN1 Bucuresti – Ploiesti

→ Acces rapid catre:
→ Pipera – zona de business
→ Aviatiei
→ Baneasa
→ Aeroportul International Henri Coanda

BUSINESS & LIFESTYLE

→ Globalworth Campus
→ Swan Office Park
→ Restaurante, cafenele si centre de fitness premium in zona

Alte detalii despre preț:

Proprietar persoana juridica, se aduga TVA la pretul afisat.

Puncte de interes

Mijloace transport
bus-station
Jolie Ville Baneasa
Stații autobuz aprox. 737 m
bus-station
Pipera Drumul Bisericii
Stații autobuz aprox. 1836 m
Școală
school
Mark Twain International School
Școli aprox. 450 m
school
British School of Bucharest
Școli aprox. 767 m
kindergarten
Echilibria 1
Gradinițe aprox. 1293 m
kindergarten
Kindergarden
Gradinițe aprox. 1352 m
Recreere
supermarket
Lidl Pipera
Supermarket aprox. 109 m
restaurant
Restaurant Tecadra
Restaurant aprox. 201 m
cafe
Doncafe Brasserie
Cafenea aprox. 643 m
park
Loc de joaca
Parcuri aprox. 694 m

Detalii despre preț și costuri

Prețul pe piață

Preț cerut: 1.186.768 €

Preț min. zonă
Preț max. zonă

i

Proprietate cu prețul cerut în afara intervalului mai multe...

Posibile explicații pentru faptul că prețul proprietății este peste cel maxim: imobil nou cu suprafață mare, are dotări și finisaje de lux.
Bine de știut: prețul unei proprietăți este influențat și de alte caracteristici, cum ar fi: vechime, localizare, vecinătăți, suprafață, compartimentare, amenajări, dotări, etc.
Acces la informații premium după autentificare
Login Gratuit

Proprietăți similare

Penthouse cu 4 camere decomandat, mobilat în Pipera
889.348 €
București, Pipera
4 camere
147,27 mp
Etaj 5 / 5
Penthouse cu 5 camere decomandat, mobilat în Șoseaua Nordului
890.000 €
București, Șoseaua Nordului
5 camere
200 mp
Etaj 5 / 5
Penthouse cu 5 camere decomandat, mobilat în Herăstrău
890.000 €
București, Herăstrău
5 camere
200 mp
Etaj 5 / 5

Detalii de contact

SI Development Group

Claudiu B Consilier Vanzari

4.71(8 review-uri)

SI Development Group
PRO

Abonează-te la newsletter să fii primul care primește cele mai noi recomandări de proprietăți și sfaturi de la experți.

CONTACT

Creează alertă

Salvează căutarea ca să primești pe email ultimele anunțuri publicate

Penthouses noi cu 4+ camere de vânzare în zona Iancu Nicolae, Sector 1