28

Penthouse cu 4 camere si 4 terase | Avalon Estate, Faza 1

393.250 €

Pipera, București

Nr. cam.:
4
Sup. utilă:
96,5 mp
Etaj:
4 / 4
Tip prop.:
Bloc de apartamente
  • • Comision 0%
  • • Locație exactă

Descriere apartament

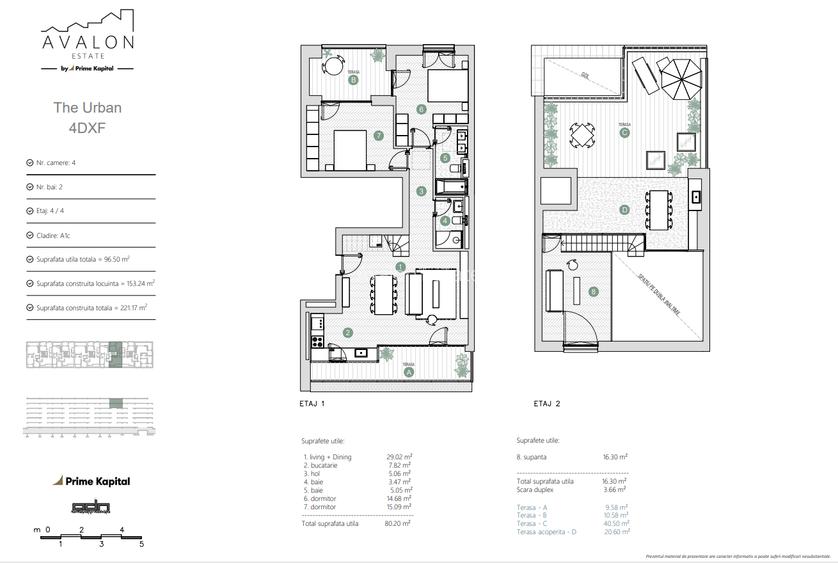
Confortul și spațiile private sunt rețeta unei vieți liniștite. Pune-le pe primul loc cu un Penthouse în Avalon Estate! În Penthouse-ul 4DXF, din Faza 1, vei avea la dispoziție 4 camere spațioase și 4 terase generoase, cărora le vei putea da destinația dorită. Dar unul dintre cele mai importante avantaje pe care ți le oferă acest tip de locuință este înălțimea liberă a camerelor de 2,80 m și existența unor zone cu volumetrie dublă a tavanului, de până la 6 m. Situat în clădirile de tip A, penthouse-ul urban 4DXF are: - o suprafață construită totală de 221.17 m2; - suprafață utilă de 96,50 m2; - 4 terase cu o suprafață totală de 81.26 m2 (o terasă este acoperită). Este amplasat la ultimul etaj și este compus din: - living & dining și scară; - bucătărie; - hol; - 2 băi; - 2 dormitoare; - supantă. *Imaginile prezentate sunt fotografii reale realizate în Avalon Estate și sunt folosite cu scop de prezentare, motiv pentru care există posibilitatea ca detaliile să difere în funcție de fiecare unitate în parte. Pentru mai multe informații și pentru a programa o vizionare, nu ezită să ne contactezi!
Citește mai mult Citește mai puțin
Semidecomandat 4 Balcoane / Terase / Logii Grădină Piscină Curte comună Centrală imobil Încălzire prin pardoseală

Detalii apartament

ID anunț: XCRO00011 Copiat! 248546142 Copiat!
Actualizat în: 22 Mai 2025
Tip tranzacție: De vânzare prin dezvoltator
Nr. bucătării: 1
Nr. băi: 2
Regim înălțime: P+4E
Modalitate de plată: Cash sau Credit

Utilități

Destinație
Rezidențial
Utilități
Curent Apă Canalizare CATV
Ușă intrare
Metal
Uși interior
Celulare
Ferestre cu geam termopan
PVC
Amenajare străzi
Asfaltate Iluminat stradal Mijloace de transport în comun
Servicii imobil
Administrare Pază Supraveghere video
Facilități imobil
Spații agrement Piscină exterioară Lift Interfon Acoperiș Saună

Vecinătăți:

Ansamblul rezidențial este aproape de centrul de business al Capitalei, dar și de grădinițele și școlile de elită din zona de nord a Bucureștiului.
Situat pe Bulevardul Pipera, nr. 1-VIII M, Avalon Estate este în apropiere de Bulevardul Barbu Văcărescu, Calea Floreasca și Bulevardul Dimitrie Pompeiu.

Din Avalon Estate vei putea ajunge rapid cu mașina pe DN1 și Autostrada A3, atunci când vei dori să călătorești în afara orașului.

În aproximativ 20 de minute te poți afla la Aeroportul Internațional „Henri Coandă”, pentru călătorii interne sau internaționale.
Există și alte alternative la îndemână, față de transportul auto, atunci când vei avea de mers în oraș.

Alte detalii despre preț:

Pret de pornire. Nu include TVA

Puncte de interes

Mijloace transport
bus-station
Capat C.F.R Constanta linii : 112,135,445
Stații autobuz aprox. 821 m
tram-station
Rocin
Stații tramvai aprox. 1235 m
metro-station
Pipera (M2)
Stații metrou aprox. 1451 m
airport
Aeroportul Internațional Băneasa (Aurel Vlaicu) - LRBS (BBU)
Aeroporturi aprox. 1643 m
Școală
kindergarten
Gradinita Zece
Gradinițe aprox. 1031 m
school
Scoala Nr.3 Voluntari
Școli aprox. 1379 m
kindergarten
Echilibria 1
Gradinițe aprox. 1637 m
school
Gradinita Happy Univers
Școli aprox. 1784 m
Recreere
restaurant
Q's Inn
Restaurant aprox. 452 m
park
spatiu verde
Parcuri aprox. 474 m
supermarket
Pipera Plaza
Supermarket aprox. 761 m
sports-ground
Teren sportiv
Terenuri sport aprox. 1585 m

Detalii despre preț și costuri

Prețul pe piață

Preț cerut: 393.250 €

Preț min. zonă
Preț max. zonă

95% dintre proprietățile similare ca zonă și nr. camere au prețul cerut mai mic. mai multe...

Bine de știut: prețul unei proprietăți este influențat și de alte caracteristici, cum ar fi: vechime, localizare, vecinătăți, suprafață, compartimentare, amenajări, dotări, etc. mai puțin...

Acces la informații premium după autentificare
Login Gratuit

Costuri cu achiziția

Fără credit
Credit ipotecar
Noua casă

i

Costuri adiționale mai puțin știute la achiziție: taxe notariale, comisioane etc.

Acces la informații premium după autentificare
Login Gratuit

Avalon Estate

Avalon Estate

Relaxează-te în natură, chiar la tine acasă! În Nordul Bucureștiului Poziționat în nordul Bucureștiului, zona Aviației âÂÂ?ÂÂ? Pipera, Avalon Estate include o varietate de locuințe: studiouri, studiouri duble, apartamente cu 2 camere, apartamente cu 3 camere, apartamente parkview cu 4 camere, duplexuri, penthouse-uri, townhouse-uri și vile individ...

Vezi detalii ansamblu

Proprietăți similare

Penthouse cu 3 camere, mobilat în Pipera
299.990 €
București, Pipera
3 camere
109 mp
Etaj 10 / 11
Penthouse cu 3 camere decomandat, mobilat în Floreasca
310.000 €
București, Floreasca
3 camere
78,9 mp
Etaj 10
Penthouse cu 3 camere decomandat în Pipera
295.240 €
București, Pipera
3 camere
103,7 mp
Etaj 11

Detalii de contact

Avalon Estate

Departament Vanzari

Avalon Estate

Abonează-te la newsletter să fii primul care primește cele mai noi recomandări de proprietăți și sfaturi de la experți.

CONTACT

Creează alertă

Salvează căutarea ca să primești pe email ultimele anunțuri publicate

Penthouses cu 4+ camere de vânzare în zona Pipera, Sector 1