Cel mai bun randament! Penthouse 5 camere, 480 mp total - Herastrau!

1.188.000 €

Șoseaua Nordului, București

Nr. cam.:
5
Sup. utilă:
200 mp
Etaj:
5 / 5
An constr.:
2006
  • • Locație aproximativă

Descriere apartament

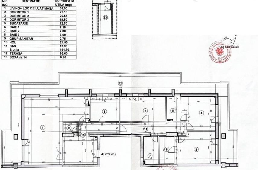
Terra Estate - primul pas catre acasa! Va propunem acest penthouse cu cinci camere in zona exclusivista in zona Herastrau. Se afla la etajul 5 intr-un imobil cu 4E+5R, construit in anul 2006 si dispune de o suprafata totala de peste 480 mp, boxa si doua locuri de parcare la subsol . Apartamentul ofera vedere unica, in vecinatate se afla imobile cu regim mic de inaltime. Imobilul este dotat cu lift, are structura din beton armat, cu exterioare si compartimentare din caramida; beneficiaza de izolatie exterioara. Dintre beneficiile acestei proprietati enumeram: - apartamentul este complet automatizat si are comenzi digitale pentru reglare temperatura, luminozitate sau manevrarea draperiilor avand un centru de comanda usor de accesat. - incalzire in pardoseala - confort fonic deosebit, acces din orice camera pe terasele generoase - pozitionarea imobilului E-S- permite o luminozitate placuta, calda a proprietatii, pe toata durata zilei, cat si posibilitatea admirarii atat a rasaritului, cat si a apusului de soare, de pe cele trei terase - view-ul nefiind obturat de nicio cladire inalta - o compartimentare functionala, cu o zona de zi ce include: hol mare de acces cu un dressing mare, livingul generos si accesul catre bucataria deschisa, utilata si mobilata, in care intalnim si zona de dining si accesul catre terasa - o zona de seara ce se bucura de: hol mare, 3 dormitoare mari (unul amenajat ca birou), de peste 20 mp fiecare, toate cu acces pe terase cu zone de dressing generoase si bai; - dormitorul matrimonial beneficiaza de acces la o baie mare, cu cada o zona de dressing distincta, pozitionata langa baie. - zona de relaxare/ fitness se poate amenaja pe terasa cu un view superb la nivelul 6 al blocului. - zone vitrate mari, cu geam termopan tripan- fapt ce asigura si un confort fonic deosebit - la subsolul inalt al blocului exista o boxa de depozitare si doua locuri de parcare. - terasa de pe acoperis, aflata in proprietate, ofera multiple posibilitati de amenajare inclusiv amplasarea unor panouri fotovoltaice. Raportul calitate, suprafete interior si terase/ pret este cel mai avantajos din zona. Pentru mai multe detalii si vizionare, va rugam sa ne contactati la numarul de telefon exclusiv! Multumim!
Citește mai mult Citește mai puțin
Confort lux Semidecomandat Parțial mobilat Aer condiționat Centrală imobil Încălzire prin pardoseală 2 Parcări

Detalii apartament

ID anunț: XF691000H Copiat! 257996074 Copiat!
Actualizat în: 21 Aprilie 2026
Suprafață construită: 540 mp
Nr. bucătării: 1
Nr. băi: 3
Structură rezistență: Beton
Tip imobil: Bloc de apartamente
Regim înălțime: S+P+5E
Nr. terase: 4

Utilități

Podele
Gresie Parchet
Ușă intrare
Metal
Izolații termice
Exterior
Contorizare
Apometre
Bucătărie
Mobilată Utilată
Electrocasnice
Aragaz Frigider Hotă Mașină de spălat Mașină spălat vase TV
Diverse
Telecomandă poartă garaj
Alte spații utile
Terasă
Facilități imobil
Interfon Lift
Utilități
Curent Apă Canalizare CATV Gaze Telefon
Internet
Cablu
Amenajare străzi
Iluminat stradal Mijloace de transport în comun Asfaltate
Comision
standard

Disponibilitate proprietate:

Imediat

Puncte de interes

Mijloace transport
bus-station
Carutasilor / Pasajul Aviatiei statie 301, 112
Stații autobuz aprox. 235 m
bus-station
Pasaj Baneasa statie 605, 5
Stații autobuz aprox. 497 m
tram-station
Maguricea
Stații tramvai aprox. 546 m
metro-station
Metrorex. Stația Aurel Vlaicu (M2)(1987)
Stații metrou aprox. 884 m
Școală
kindergarten
Grădinița Mary Poppins
Gradinițe aprox. 218 m
kindergarten
Grădinița Pentru Hipoacuzici NR. 65
Gradinițe aprox. 370 m
school
Scoala generala nr.12
Școli aprox. 562 m
university
Școala Superioară de Aviație Civilă - S.S.Av.C.
Universități aprox. 1540 m
Recreere
supermarket
ART Business Center 5
Supermarket aprox. 133 m
park
Parcul Scoala Herastrau
Parcuri aprox. 148 m
sports-ground
Teren sportiv
Terenuri sport aprox. 505 m
public-square
Piata Montreal
Piețe publice aprox. 1755 m

Proprietăți recomandate

Detalii de contact

TERRA PREST ESTATE

Viorel Stoean Broker Owner

TERRA PREST ESTATE
PRO

Abonează-te la newsletter să fii primul care primește cele mai noi recomandări de proprietăți și sfaturi de la experți.

CONTACT

Creează alertă

Salvează căutarea ca să primești pe email ultimele anunțuri publicate

Penthouses cu 4+ camere de vânzare în zona Șoseaua Nordului, Sector 1