Fizicienilor Penthouse 3 camere 85 mp + terasa 84 mp

247.931 € + TVA

Fizicienilor, București

Nr. cam.:
3
Sup. utilă:
168,95 mp
Etaj:
3 / 3
An constr.:
2024 (În construcție)
  • • Comision 0%
  • • Locație aproximativă

Descriere apartament

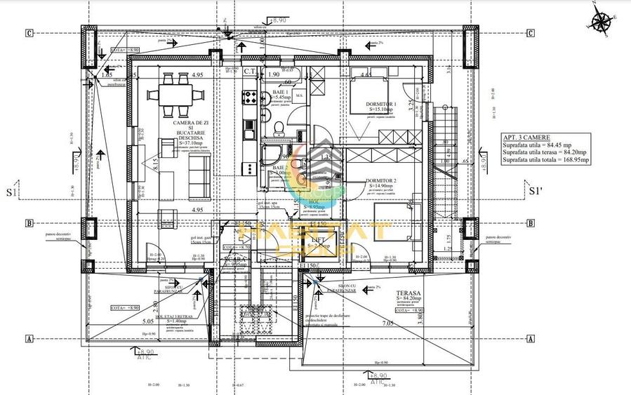
Habitat Grup Imobiliare va prezinta spre vanzare un apartament de 3 camere premium tip Penthouse avand o suprafata utila totala de 168.95 mp din care suprafata utila de 84,45 mp + terasa generoasa cu suprafata de 84,2mp, situat intr-un bloc Boutique, pozitionat excelent in sectorul 3, in zona Fizicienilor-Vitan. Pret : 300.000 Eur TVA inclus. Apartamentul tip Penthouse are ACTE GATA DE MUTARE cu finisaje la alegere !!!!!! Apartamentul este situat la etajul 3 din 3 intr-un bloc tip Boutique avand terasa suplimentara circulabila pe toata suprafata aprtamentului. Accesul pe acoperis, se face pe scara amplasata pe terasa exterioara din apropierea dormitorului matrimonial. Lift cu acces direct din parcarea subterana in apartament, pe baza de cheie electronica. Este situat pe o strada cu case, extrem de linistita din zona Vitan. Ansamblul este construit din beton armat, cu grinzi de beton si compartimentari interioare din caramida tip Porotherm. Apartamentul dispune de centrala termica proprie pe gaz in condensatie de 24Kw cu incalzire in pardoseala. Finisajele interioare Premium (parchet, gresie, faianta, usi interioare), toate la alegere in functie de preferinte. Zona dispune de multiple facilitati precum: Parcul Delta Vacaresti (pentru iubitorii de natura), scoli, gradinite, piata de legume Bobocica(10 min) , Bucuresti Mall, si tot ce este necesar pentru confortul unei familii. Acces facil la doar 2 minute de mers pe jos stb bus: 102, 123, 135, N111. Separat se pot achizitiona 2 locuri de parcare subterane la 12.000 euro fara TVA contra cost. Locatie birou vanzari dezvoltator : strada Postasului nr.29 , Sector 3 Waze: Habitat Group Estate Program vizionari: Luni - Vineri : 10:00 - 18:00 si Sambata : 10:00 - 14:00 Recomand vizionare Bogdan Mavrogheorghe .
Citește mai mult Citește mai puțin
Confort 1 Decomandat Nemobilat Curte Aer condiționat Centrală proprie Încălzire prin pardoseală

Detalii apartament

ID anunț: XCIQ209N6 Copiat! 275354604 Copiat!
Actualizat în: 26 Martie 2026
Suprafață construită: 205 mp
Nr. bucătării: 1
Nr. băi: 2
Structură rezistență: Beton
Tip imobil: Bloc de apartamente
Regim înălțime: D+P+3E
Nr. terase: 1

Utilități

Destinație
Rezidențial
Pereți
Faianță Vopsea lavabilă
Podele
Gresie Parchet
Ușă intrare
Metal
Uși interior
Celulare
Izolații termice
Exterior
Contorizare
Apometre Contor gaz
Alte spații utile
WC Serviciu Terasă
Facilități imobil
Interfon Lift
Utilități
Curent Apă Canalizare CATV Gaze Telefon Telefon internațional
Internet
Cablu
Amenajare străzi
Iluminat stradal Mijloace de transport în comun Asfaltate
Comision
0%

Vecinătăți:

- autobuz 102 , 123 , 135
- supermarket LIDL
- supermarket Profi
- supermarket Kaufland

Disponibilitate proprietate:

Imediat

Puncte de interes

Mijloace transport
bus-station
Statia Icemenerg, linia 123
Stații autobuz aprox. 86 m
bus-station
Statia CET Sud, linia 123,135
Stații autobuz aprox. 223 m
tram-station
Fizicienilor
Stații tramvai aprox. 972 m
metro-station
Metrorex. Stația Nicolae Grigorescu 1 /2(M1),(M3)(1981)
Stații metrou aprox. 1271 m
Școală
school
Liceul Teoretic "Decebal"
Școli aprox. 175 m
university
Universitatea "Gheorghe Cristea"
Universități aprox. 354 m
school
Grup scolar de constructii-montaj "Elie Radu"
Școli aprox. 399 m
kindergarten
Gradinita Nr 24
Gradinițe aprox. 444 m
Recreere
park
Parc
Parcuri aprox. 169 m
supermarket
Lidl Fizicienilor
Supermarket aprox. 574 m
sports-ground
Teren sportiv
Terenuri sport aprox. 849 m
restaurant
Cetatea Berarilor
Restaurant aprox. 1036 m

Detalii despre preț și costuri

Prețul pe piață

Preț cerut: 247.931 €

Preț min. zonă 104.900 €
Preț max. zonă 298.500 €

90% dintre proprietățile similare ca zonă și nr. camere au prețul cerut mai mare. mai multe...

Bine de știut: prețul unei proprietăți este influențat și de alte caracteristici, cum ar fi: vechime, localizare, vecinătăți, suprafață, compartimentare, amenajări, dotări, etc. mai puțin...

Costuri cu achiziția

Fără credit
13.200 RON
Credit ipotecar
15.586 RON
Noua casă
1.669 RON+ taxe notariale

i

Costuri adiționale mai puțin știute la achiziție: taxe notariale, comisioane etc.

Proprietăți similare

Penthouse cu 4 camere decomandat în Theodor Pallady
239.700 € + TVA
București, Theodor Pallady
4 camere
130,5 mp
Etaj 11 / 12
Penthouse cu 4 camere decomandat în Theodor Pallady
238.000 €
București, Theodor Pallady
4 camere
236 mp
Etaj 5
Penthouse cu 3 camere decomandat în Ozana
224.000 € + TVA
București, Ozana
3 camere
140,2 mp
Etaj 3 / 4

Detalii de contact

HABITAT GROUP ESTATE

Bogdan M Reprezentant Dezvoltator

4.80(5 review-uri)

HABITAT GROUP ESTATE
PRO

Abonează-te la newsletter să fii primul care primește cele mai noi recomandări de proprietăți și sfaturi de la experți.

CONTACT

Creează alertă

Salvează căutarea ca să primești pe email ultimele anunțuri publicate

Penthouses cu 3 camere de vânzare în zona Fizicienilor, Sector 3