Penthouse 4 camere - 93.90 mp si terasa de 80.90 mp - Selimbar

180.000 €

Șelimbăr, Județul Sibiu

Nr. cam.:
4
Sup. utilă:
93,9 mp
Etaj:
3 / 3
An constr.:
2025 (În construcție)
  • • Locație aproximativă

Descriere apartament

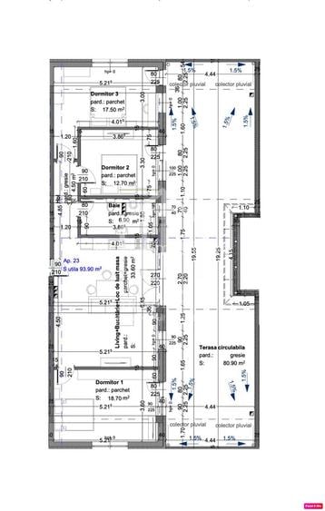
Va propunem spre vanzare un penthouse cu 4 camere, cu o suprafata utila de 93.90 mp si terasa de 80.90 mp, amplasat in Selimbar, zona Pictor Brana. Compartimentare: - hol; - living cu bucatarie + loc de luat masa (33.60 mp); - 3 dormitoare; - baie; - terasa. Avantaje: - ansamblu rezidential nou; - la numai cateva minute de Shopping City; - loc de parcare inclus in pret; - baie cu geam de aerisire; - izolatie cu vata bazaltica; - terasa de 80.90 mp. Penthouse-ul se va preda la stadiul de gri. Termenul de predare este primavara anului 2026. Iti doresti mai mult decat o simpla locuinta? Noi suntem aici pentru a-ți oferi cele mai bune soluții. Oferim servicii de DESIGN SI AMENAJARI INTERIOARE, PROPERTY MANAGEMENT, REGIM HOTELIER, HOME STAGING, VIRTUAL INVESTMENT, SERVICII DE CURATENIE.
Citește mai mult Citește mai puțin
Nedecomandat 1 Parcare

Detalii apartament

ID anunț: XDQ4102AC Copiat! 275288492 Copiat!
Actualizat în: 16 Martie 2026
Suprafață construită: 112.68 mp
Nr. bucătării: 1
Nr. băi: 1
Structură rezistență: Beton
Tip imobil: Bloc de apartamente
Regim înălțime: P+3E
Nr. terase: 1

Utilități

Destinație
Rezidențial
Alte spații utile
Terasă
Utilități
Curent Apă Canalizare CATV Gaze Telefon
Internet
Cablu
Amenajare străzi
Iluminat stradal Mijloace de transport în comun Asfaltate
Comision
standard

Disponibilitate proprietate:

Imediat

Puncte de interes

Mijloace transport
bus-station
Sibiu-Triaj (Sud)
Stații autobuz aprox. 634 m
bus-station
Statia Sibiu Grupa Selimbar
Stații autobuz aprox. 1016 m
bus-station
Irmes 2
Stații autobuz aprox. 1487 m
bus-station
Indepententa 2
Stații autobuz aprox. 1507 m
Școală
school
Scoala Generala Nr. 24
Școli aprox. 1864 m
kindergarten
Gradinita Nr. 14
Gradinițe aprox. 1908 m
Recreere
sports-ground
Teren sportiv
Terenuri sport aprox. 1401 m
park
Parc
Parcuri aprox. 1502 m
supermarket
XXL
Supermarket aprox. 1563 m
cafe
Coffe House
Cafenea aprox. 1586 m

Detalii despre preț și costuri

Costuri cu achiziția

Fără credit
9.081 RON
Credit ipotecar
10.958 RON
Noua casă
1.057 RON+ taxe notariale

i

Costuri adiționale mai puțin știute la achiziție: taxe notariale, comisioane etc.

Proprietăți similare

Penthouse cu 3 camere semidecomandat în Șelimbăr
178.100 € + TVA
Județul Sibiu, Șelimbăr
3 camere
84,92 mp
Etaj 10 / 10
Penthouse cu 3 camere decomandat, mobilat în Șelimbăr
179.000 €
Județul Sibiu, Șelimbăr
3 camere
95 mp
Etaj 3 / 3
Penthouse cu 4 camere decomandat în Șelimbăr
180.000 €
Județul Sibiu, Șelimbăr
4 camere
93 mp
Etaj 3

Detalii de contact

Virtual Imobiliare

Popa Sergiu Manager

Virtual Imobiliare

Abonează-te la newsletter să fii primul care primește cele mai noi recomandări de proprietăți și sfaturi de la experți.

CONTACT

Creează alertă

Salvează căutarea ca să primești pe email ultimele anunțuri publicate

Penthouses cu 4+ camere de vânzare în Șelimbăr, Județul Sibiu