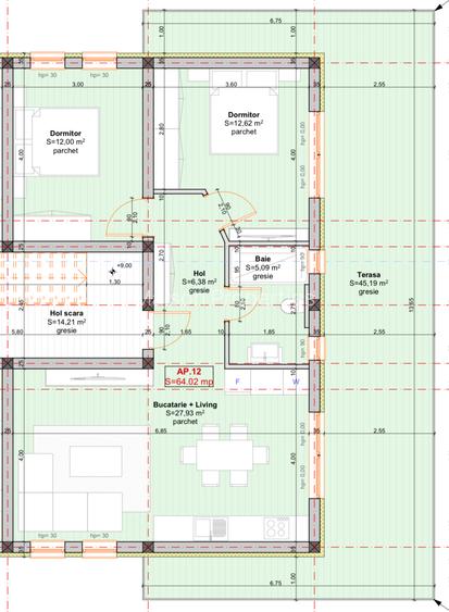
De vanzare apartament cu 3 camere tip-penthouse, confort 1, avand o suprafata utila:-64 mp + 45.19 mp - terasa, situat intr-un bloc nou in Braytim.
Este compartimentat astfel:
-hol acces
-bucatarie
-living
-dormitor 1
-dormitor 2
-baie
-terasa - 45.19 mp
+ 1 loc de parcare inclus in pret
Incalzirea se realieaza prin pardoseala cu ajutorul centralei proprii pe gaz.
Au fost selectionate cele mai bune materiale astfel incat rezultatul final sa fie unu durabil, care sa incurajeze o investitie pe termen lung.
-perete exterior - caramida 30 cm|POROTHERM
-perete interior - caramida 25 cm|PORTOHERM
-termoizolare cu polistiren - 12 cm
-tecuiala mecanizata
-glet mecanizat
-vopsea lavabila
-geamuri 3 sticle, 5 camere - culoare antracit|SALAMANDER
-usi interior - MDF|maner negru|PORTA DOORS
-gresie - faianta |TEMPINI
-wc suspendat
-centrala proprie pe gaz|ARISTON
-video interon|ELECTRA
Se vinde nemobilat, dar va putem oferi un pachet personalizat de amenajare cu design - mobilier|electrocasnice la un pret foarte accesibil care poate fi inclus in pretul de achizitie cu credit.
Pret: 124.900 euro | TVA 21% inclus in pret
Citește mai mult
Citește mai puțin
Confort 1
Decomandat
1 Balcon / Terasă / Logie
Centrală proprie
Încălzire prin pardoseală
1 Parcare
Bine întreținut (Bună)
65%dintre proprietățile similare ca zonă și nr. camere au prețul cerutmai mic.
mai multe...
Bine de știut: prețul unei proprietăți este influențat și de alte caracteristici, cum ar fi: vechime, localizare, vecinătăți, suprafață, compartimentare, amenajări, dotări, etc.
mai puțin...
Costuri cu achiziția
Fără credit
7.189 RON
Credit ipotecar
8.832 RON
Noua casă
776 RON+ taxe notariale
i
Costuri adiționale mai puțin știute la achiziție: taxe notariale, comisioane etc.
Calculul ipotecarului
Proprietăți recomandate
Pornind de la căutarea ta îți recomandăm următoarele anunțuri
Sediul central - Timișoara
Bulevardul Victor Babeș nr. 2, 300230, Timișoara, România
Tel: +40.374.40.44.98 / Fax: +40.256.401.179
Email: suport@imobiliare.ro
Luni - Vineri 08:00 - 20:00
Punct de lucru - București: Iride Business Park, Bld. Dimitrie
Pompeiu 9-9A, Clădirea B2B,
020335, Sector 2, București, România
CONTACT
Sediul central - Timișoara
Bulevardul Victor Babeș nr. 2, 300230, Timișoara, România
Tel: +40.374.40.44.98 / Fax: +40.256.401.179
Email: suport@imobiliare.ro
Luni - Vineri 08:00 - 20:00
Punct de lucru - București: Iride Business Park, Bld. Dimitrie
Pompeiu 9-9A, Clădirea B2B,
020335, Sector 2, București, România
Sună acum și cere detalii sau programează o vizionare.
Cere detalii prin email
*
*
*
*
Stații autobuz
Stații troleibuz
Stații tramvai
Gradinițe
Școli
Universități
Supermarket
Parcări
Parcuri
Terenuri sport
Farmacie
Spital
Restaurant
Bar
Pub
Bancă
Venus
aprox.
1227 m
Apicultorilor
aprox.
1259 m
Statie Apicultorilor E3
aprox.
1265 m
Bulevardul Sudului
aprox.
1318 m
Statie Muzicescu E3
aprox.
1345 m
Bulevardul Sudului
aprox.
1382 m
Statie Piata Gheorghe Domasneanu E2
aprox.
1402 m
Electrotimis
aprox.
1448 m
Piata Gheorghe Domasnean
aprox.
1452 m
Mures
aprox.
1494 m
Mures
aprox.
1535 m
Statie Mures E3
aprox.
1541 m
Bucla Versului
aprox.
1557 m
Statie Cvartal Sudului T16, E2
aprox.
1591 m
Giroceana
aprox.
1600 m
Statie Sudului bucla T16
aprox.
1323 m
Statie Maresal C-tin Prezan bucla T15, T19
aprox.
1566 m
Statie Maresal C-tin Prezan T15, T19
aprox.
1678 m
Statie B-dul Sudului T16
aprox.
1768 m
Statie I.O.T. Tv4
aprox.
1462 m
Statie Grup Scolar Electrotimis Tv4
aprox.
1475 m
Statie Piata Gheorghe Domasneanu Tv9
aprox.
1542 m
Statie Ghe. Domasneanu Tv4, Tv8
aprox.
1591 m
Statie Ciarda Rosie Tv4
aprox.
1593 m
Statie Spumotim Tv4, Tv8
aprox.
1840 m
Bulevardul Sudului
aprox.
1858 m
Statie B-dul Sudului Tv9
aprox.
1870 m
Bulevardul Sudului
aprox.
1877 m
Piticii din Vest
aprox.
1061 m
Gradinita Goghita
aprox.
1227 m
Gradinita Program Prelungit nr.38
aprox.
1230 m
Gradinita Program Normal Nr. 19
aprox.
1250 m
Gradinita Program Normal Nr. 6
aprox.
1394 m
Gradinita Broscuta Fermecata
aprox.
1688 m
Gradinita Program Prelungit Nr. 11
aprox.
1712 m
Gradinita nr. 11
aprox.
1890 m
Gradinita Program Prelungit Nr. 1
aprox.
1967 m
Campus scolar Colegiul Tehnic Electrotimis
aprox.
1309 m
Liceul Electrotimiș
aprox.
1346 m
Colegiul Tehnic Electrotimis
aprox.
1371 m
Scoala Generala 20
aprox.
1388 m
Scoala Gimnaziala nr. 20
aprox.
1394 m
Scoala Gimnaziala nr. 30
aprox.
1465 m
SCOALA GIMNAZIALĂ NR.30
aprox.
1476 m
Scoala generala nr. 30
aprox.
1478 m
COLEGIUL TEHNIC "ELECTROTIMIS"
aprox.
1579 m
Liceul Waldorf - atelier practic
aprox.
1607 m
Gradinita lui Larisa
aprox.
1886 m
Colegiul Tehnic Azur
aprox.
1912 m
COLEGIUL TEHNIC "AZUR"
aprox.
1920 m
Campus scolar Colegiul Tehnic Azur
aprox.
1951 m
CENTRU REGIONALDE PREGATIRE PROFESIONALA PENTRU MAGISTRATI, GIROC, tIMISOARA
aprox.
1314 m
Institutul de Cercetari pentru Energii Regenerabile
aprox.
1531 m
Profi
aprox.
1398 m
Nova Tim
aprox.
1410 m
Profi City
aprox.
1499 m
Lidl
aprox.
1583 m
Lidl
aprox.
1624 m
Carrefour Market
aprox.
1654 m
Profi
aprox.
1868 m
Billa
aprox.
1873 m
Parcare pentru clienti cu plata
aprox.
932 m
Parcare privata
aprox.
1025 m
Parcare privata
aprox.
1104 m
Parcare
aprox.
1181 m
Parcare
aprox.
1187 m
Parcare cu plata
aprox.
1193 m
Parcare
aprox.
1210 m
Parcare
aprox.
1224 m
Parcare
aprox.
1225 m
Parcare
aprox.
1228 m
Parcare
aprox.
1232 m
Parcare
aprox.
1243 m
Parcare
aprox.
1254 m
Parcare
aprox.
1276 m
Parcare privata
aprox.
1318 m
Viitor Parc Braytim
aprox.
853 m
Parc
aprox.
1090 m
Parcul Ciarda Rosie
aprox.
1134 m
Parc
aprox.
1145 m
Parcul de Sculptura, Fundatia Interart Triade
aprox.
1470 m
Parcul Triade
aprox.
1476 m
Parcul Sudului
aprox.
1535 m
Parcul Sudului
aprox.
1535 m
Parcul Padurice
aprox.
1552 m
Parc
aprox.
1563 m
Parc
aprox.
1572 m
Parcul Lidia
aprox.
1616 m
Baza de agrement Davia-Sport
aprox.
1727 m
Arena Ciarda Rosie
aprox.
1100 m
Teren sportiv
aprox.
1153 m
Teren sportiv
aprox.
1159 m
Teren sportiv
aprox.
1159 m
Teren sportiv
aprox.
1160 m
Teren sportiv
aprox.
1288 m
Teren sportiv
aprox.
1291 m
Teren sportiv
aprox.
1310 m
Teren sportiv
aprox.
1453 m
Teren sportiv
aprox.
1453 m
Teren sportiv
aprox.
1488 m
Teren sportiv
aprox.
1503 m
Teren sportiv
aprox.
1632 m
Teren sportiv
aprox.
1706 m
Teren sportiv
aprox.
1739 m
Imedas
aprox.
1216 m
Catena
aprox.
1391 m
Apothecaria
aprox.
1404 m
Help Net
aprox.
1407 m
Help Net
aprox.
1520 m
Farmacia Dona
aprox.
1920 m
Farmacia HelpNet
aprox.
1923 m
Farmacia Dona
aprox.
1975 m
Farmacia Catena
aprox.
1977 m
Telescan
aprox.
1366 m
Dispensar Giratoriu Buziasului. Centru de permanenta
aprox.
1404 m
CLINICA DE ORTODONTIE DR. OGODESCU
aprox.
1991 m
Arizona
aprox.
1069 m
Hotel Alexandra Timisoara (en)
aprox.
1102 m
Restaurant Valery 1
aprox.
1177 m
Il Peperoncino
aprox.
1531 m
Enjoy
aprox.
1558 m
Zet Fast Food
aprox.
1568 m
Beraria Timisoreana
aprox.
1588 m
Restaurant Regent
aprox.
1627 m
Thalia - Restaurant, blocks nr. 10-14 (en)
aprox.
1669 m
Cantina La Dama (en)
aprox.
1787 m
Cantina DORNA
aprox.
1900 m
Restaurant Dorna
aprox.
1909 m
Mateo Cafe
aprox.
1179 m
Cafe Saloon
aprox.
1269 m
Zone Cafe
aprox.
1351 m
Club As
aprox.
1353 m
Charlie's Pub
aprox.
1859 m
BRD
aprox.
1407 m
BCR
aprox.
1410 m
BRD
aprox.
1648 m
Banca Transilvania
aprox.
1929 m
BRD
aprox.
1938 m
Piraeus Bank
aprox.
1955 m
BCR
aprox.
1986 m
Două dintre principalele artere de circulație din această zonă a Timișoarei sunt străzile Mureș și Musicescu Gavril, ce străbat cartierul pe aproape toată lățimea sa, făcând legătura, la vest, cu Girocului și ajungând, la est, aproape de Buziașului și, respectiv, Ciarda Roșie. Acestora li se adaugă, desigur, Strada Mareșal Constantin Prezan (ce marchează "granița" cu Soarelui), dar și Calea Martirilor 1989 (la limita cu Girocului). Dat fiind faptul că este un cartier aflat încă în dezvoltare, Braytim este destul de deficitar la capitolul mijloace de transport în comun; de menționat la acest capitol este, totuși, autobuzul E31, care circulă pe Calea Martirilor 1989 și face legătura cu Gara de Nord (și Universitatea de Vest).
În ceea ce privește ciclul de educație preșcolar, de menționat ar fi, totuși, Grădinița "Mini Kids" (situată pe Strada Vasile Mioc, nr. 6), dar și Grădinița lui Goghiță (de pe Strada Aida, nr. 25). Pentru celelalte cicluri de învățământ, părinții din această zonă a Timișoarei se pot orienta spre oportunitățile oferite de cartierele învecinate, cum ar fi Școala Gimnazială Nr. 30, din Soarelui (de pe Strada Aștrilor, nr. 13), Colegiul Tehnic Electrotimiș, din Buziașului (de pe Strada Matei Millo, nr. 2A), dar și Colegiul Tehnic Azur, din Girocului (de pe Strada Calea Martirilor 1989, nr. 64). Mai jos poți vedea în detaliu ce unități de învățământ există în zonă:
La categoria supermarketuri, de menționat sunt două unități comerciale afiliate unor rețele internaționale de retail, anume Penny Market (pe Strada Mareșal Constantin Prezan, nr. 108-110) și Carrefour Market (pe Strada Mureș, nr. 188-190). De precizat ar fi și că în Girocului, foarte aproape de linia de demarcație cu Braytim, se găsește și un magazin Lidl (pe Calea Martirilor 1989, nr. 98). Având în vedere că Braytim este o zonă tânără a Timișoarei, aflată încă în plină dezvoltare, nu este de mirare că aici nu se găsește niciun centru comercial de mari dimensiuni, cum ar fi un mall sau un hipermarket.
Pentru posesorii de mașină, găsirea unui loc de parcare nu ar trebui să reprezinte o problemă "“ cartierul fiind, în general vorbind, unul destul de "aerisit". Având în vedere, însă, că zona s-ar putea aglomera în timp, cumpărătorii de apartamente noi ar trebui, totuși, să se intereseze la dezvoltator cu privire la achiziția unui loc de parcare în cadrul ansamblului rezidențial vizat pentru achiziție.
Datorită multitudinii zonelor de vegetație, Braytim poate fi considerat, fără îndoială, un cartier destul de "verde". Cu toate acestea, fiind încă destul de tânăr, acesta nu stă foarte bine la capitolul parcuri publice, amenajate de către autorități "“ Parcul Triade (aflat la limita cu zona Girocului) fiind, practic, singurul demn de menționat la acest capitol. Tot aici se află Galeria de Artă Jecza "“ locație de referință a orașului în plan artistic. În proximitatea zonei Soarelui, poți găsi Parcul Pădurice (fostul "Lidia"), chiar la limita cu Braytim. Pentru pasionații de sport, o importantă oportunitate de relaxare în aer liber este oferită de un centru profesionist de paintball; amplasat în sudul cartierului, pe Strada Ecoului. Află, mai jos, ce alte opțiuni de petrecere a timpului liber mai ai în Braytim:
Timișorenii din Braytim au la dispoziție o unitate medicală importantă, anume Policlinica Boia, specializată în pediatrie și neonatologie (situată pe Strada Gospodarilor, nr. 42). Un avantaj important este dat de proximitatea zonei Girocului, unde se află Spitalul Clinic Județean de Urgență Timișoara; amplasat în partea de nord a cartierului, pe Bulevardul Liviu Rebreanu, nr. 156, acesta este deschis 24 de ore din 24. În apropiere se află Serviciul Județean de Ambulanță Timiș, dar și Clinica de Chirurgie Plastică din Timișoara (secție a Spitalului Clinic Județean de Urgență). Pe harta de mai jos găsești localizarea exactă a spitalelor și clinicilor din zonă:
În ceea ce privește restaurantele, Braytim dispune de localuri răsfirate în cartier. Pe lângă fast food-urile și pizzeriile de cartier aveți posibilitatea să alegeți între restaurantul Pensiunii La Fayette (de pe strada Mureș, nr. 145) și restaurantul Hotelului Arizona (de pe strada Gavril Musicescu nr.168). În cazul în care sunteți un gurmand și doriți să descoperiți restaurante și localurile populare ale orașului, va trebui să recurgeți la un mijloc de transport și să vă îndreptați spre localurile din complexul universitar, sau chiar spre centrul orașului, în Piața Unirii sau Piața Operei.
În ceea ce privește sectorul bancar, zona este slab reprezentată. Totuși, găsești un bancomat Alpha Bank în zona magazinelor, pe strada Arieș. Pentru mai multe ATM-uri și sucursale bancare va trebui să te deplasezi în cartierele învecinate. Consultă harta și află unde sunt localizate și alte bănci sau ATM-uri în zona de care ești interesat.
Înainte să pleci...
Ești sigur că ai văzut și aceste proprietăți?
134.900 €
Timișoara, Braytim
3 camere
73 mp
Etaj 3 / 3
150.000 €
Timișoara, Braytim
3 camere
70 mp
Etaj 3 / 3
134.900 €
Timișoara, Braytim
3 camere
76 mp
Etaj 3
121.990 €
Timișoara, Girocului
3 camere
83 mp
Etaj 3 / 3
160.000 € + TVA
Timișoara, Torontalului
3 camere
85 mp
Etaj 3
150.000 €
Timișoara, Braytim
3 camere
70 mp
Etaj 3 / 3
Creează alertă
Salvează căutarea ca să primești pe email ultimele anunțuri publicate
Penthouses noi cu 3 camere de vânzare în zona Braytim, Timișoara
Cere detalii prin email
*
*
*
*
Detaliile tale de contact vor fi partajate cu Maison Properties
Statistici proprietate
Penthouses 3 camere de vânzare
- Timișoara
- Zona Braytim
Asigurare de viață/lună Costul este variabil. În funcție de banca aleasă, procentul variază între 0.0259% și 0.035% din soldul creditului.
Costuri cu achiziția8.832 RON
Comision agenție Întreabă agenţia
Onorariu notarial6.235 RON
Taxă întabulare OCPI954 RON
Autentificare contract credit1.643 RON
Preț de achiziție636.328 RON
Preț locuință636.328 RON
TVA 0%Inclus în prețul cerut
Preț de achiziție636.328 RON
Preț locuință636.328 RON
TVA 0%
Inclus în prețul cerut
Avans minim30.059 RON
Credit pe 30 de ani606.269 RON
Cost achitat în prima lună
Taxa evaluare imobil(până la)
575 RON
Rata lunară (variabilă)4.260 RON
Depozit colateral12.780 RON
Comision de garantare FNGCIMM53 RON
Asigurare anuală imobil636 RON
Poliță PAD130 RON
Tarif arhivă electronică102 RON
Costuri adiționale776 RON + taxe notariale
Asigurare viață și complexă (opțională)Costul este variabil. În funcție de banca aleasă, procentul variază între 0.0259% și 0.035% din soldul creditului
Onorariu notarialconform tarif notarial
Taxă întabulare OCPI776 RON
i
Toate valorile de mai sus sunt estimative și nu reprezintă în mod obligatoriu costurile exacte pe care le veți primi de la companiile/instituțiile prin care veți încheia tranzacția.